头部背景图 头部背景图
关爱版

当前位置:首页业务频道国土空间规划规划公示

规划公示
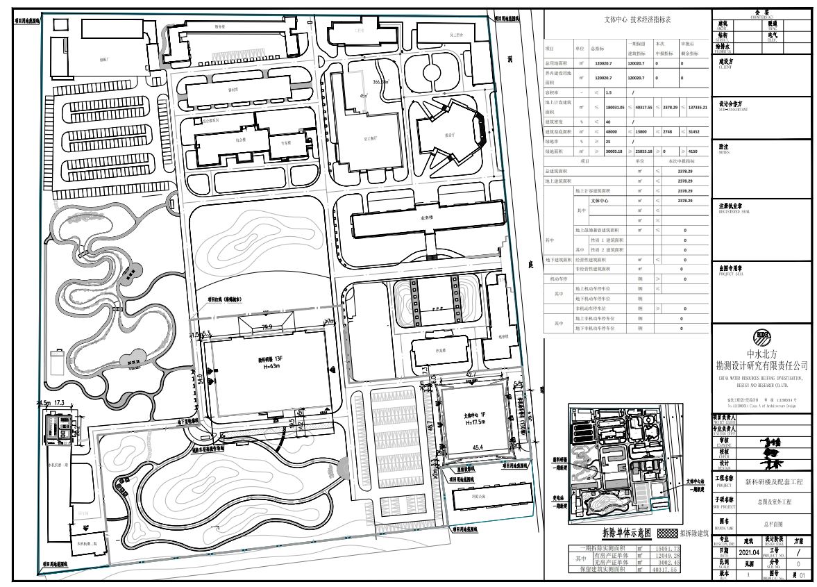
(河西区)关于中水北方勘测设计研究有限责任公司文体中心项目建设工程设计方案总平面图的公示
来源:天津市规划和自然资源局河西分局 时间:2023-03-23 17:19

如有意见,请于2023年4月3日前反馈,逾期视为无意见。

联系方式:

天津市规划和自然资源局河西分局

电话:28287020

邮箱:hxqghzrzyj@tj.gov.cn

地址:天津市河西区洞庭路20号


附件下载:

相关新闻:

友情链接:
党政机关

关于本站| 版权信息| 网站地图| 使用帮助| 联系我们

主办单位:天津市规划和自然资源局 地址:天津市和平区曲阜道84号 邮编:300042

网站标识码:1200000077 备案编号:津ICP备19001981号 徽标  津公网安备12010102000518号

版权所有:天津市规划和自然资源局

关于本站|版权信息|网站地图|使用帮助|联系我们

主办单位:天津市规划和自然资源局

地址:天津市和平区曲阜道84号

网站标识码:1200000077

备案编号:津ICP备19001981号 版权所有:天津市规划和自然资源局

徽标津公网安备12010102000518号

党政机关