规划公布
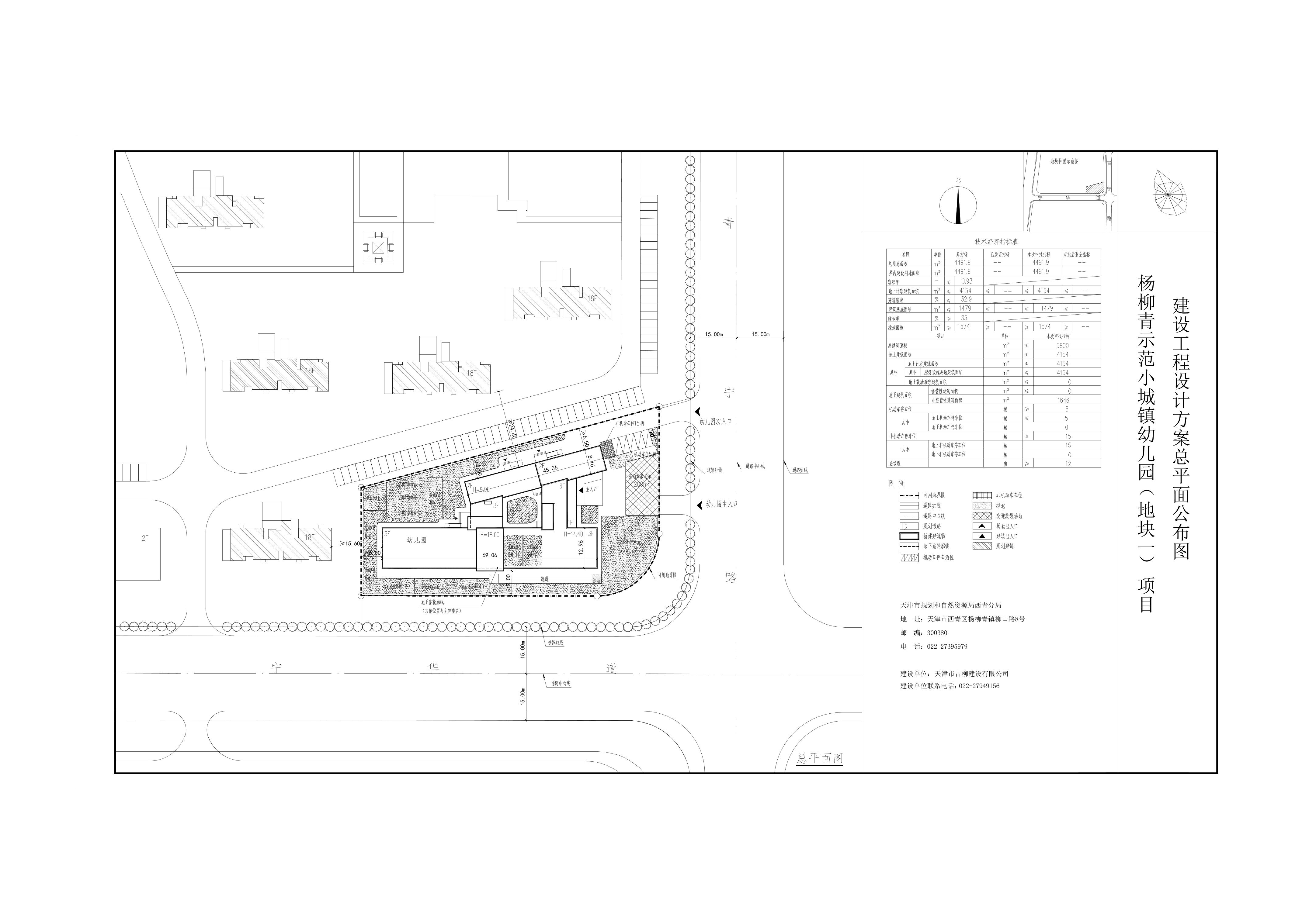
(西青区)关于公布杨柳青示范小城镇幼儿园(地块一)建设工程设计方案总平面图的通知
杨柳青示范小城镇幼儿园(地块一)建设工程规划方案总平面图已审批,审批时间为2026年2月14日,证书编号为2020西青建证0068。按照《中华人民共和国城乡规划法》《天津市城乡规划条例》的要求,现将上述工程总平面图予以公布。
通讯地址:天津市西青区柳口路8号
联系电话:022-27395979
邮政编码:300380
天津市规划和自然资源局西青分局
2026年2月24日

附件下载:





津公网安备12010102000518号