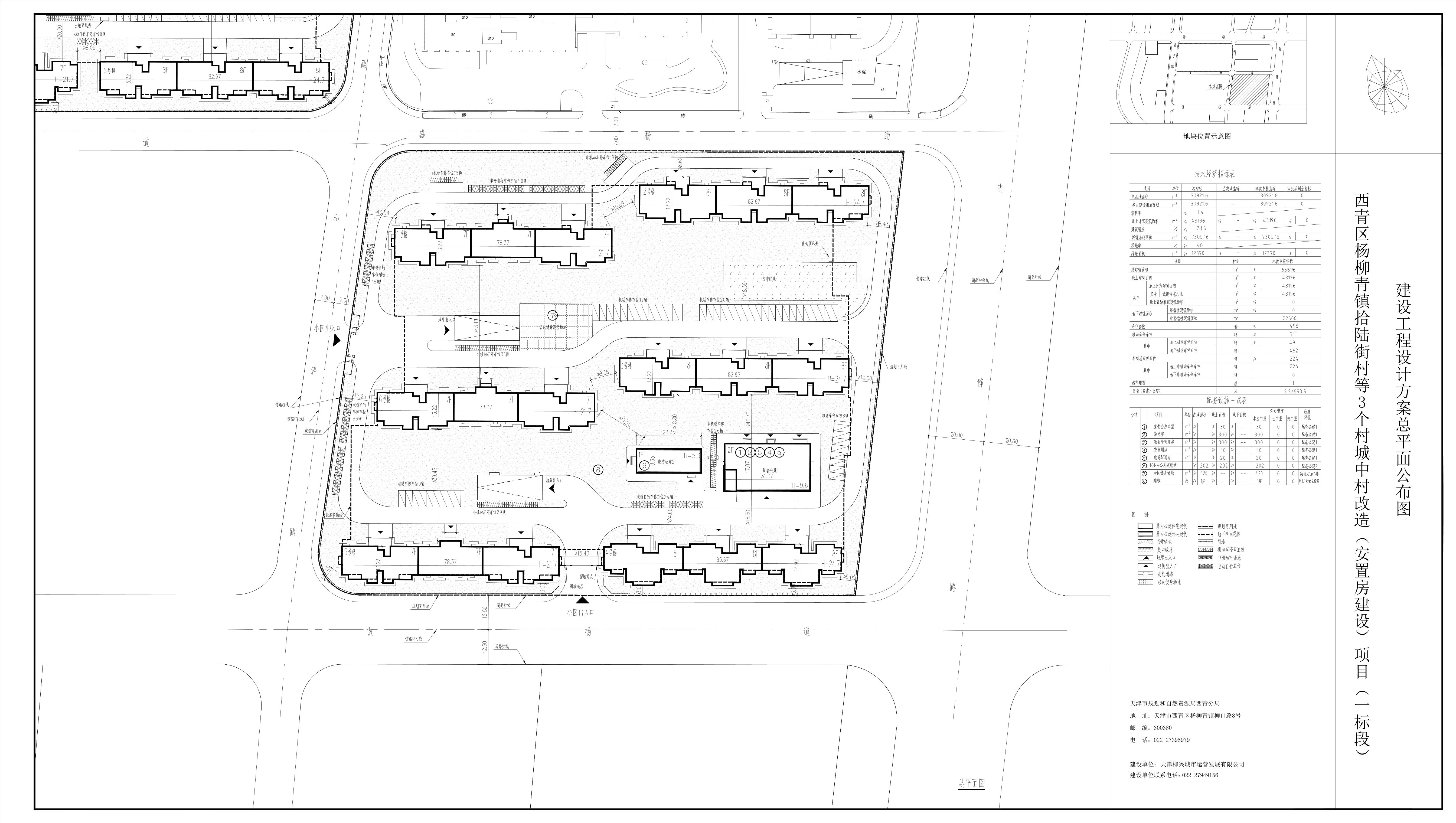
西青区杨柳青镇拾陆街村等3个村城中村改造(安置房建设)项目(一标段)建设工程规划方案总平面图已审批,审批时间为2025年2月13日,证书编号为2026西青建证0008。按照《中华人民共和国城乡规划法》《天津市城乡规划条例》的要求,现将上述工程总平面图予以公布。
通讯地址:天津市西青区柳口路8号
联系电话:022-27395979
邮政编码:300380
天津市规划和自然资源局西青分局
2025年2月24日

西青区杨柳青镇拾陆街村等3个村城中村改造(安置房建设)项目(一标段)建设工程规划方案总平面图已审批,审批时间为2025年2月13日,证书编号为2026西青建证0008。按照《中华人民共和国城乡规划法》《天津市城乡规划条例》的要求,现将上述工程总平面图予以公布。
通讯地址:天津市西青区柳口路8号
联系电话:022-27395979
邮政编码:300380
天津市规划和自然资源局西青分局
2025年2月24日

国务院相关部委
政府机关
局属单位网站
主办单位:天津市规划和自然资源局 地址:天津市和平区曲阜道84号 邮编:300042
网站标识码:1200000077 备案编号:津ICP备19001981号
津公网安备12010102000518号
版权所有:天津市规划和自然资源局