规划公布
(蓟州区)荣威商务酒店项目建设工程规划许可证设计方案公布通知
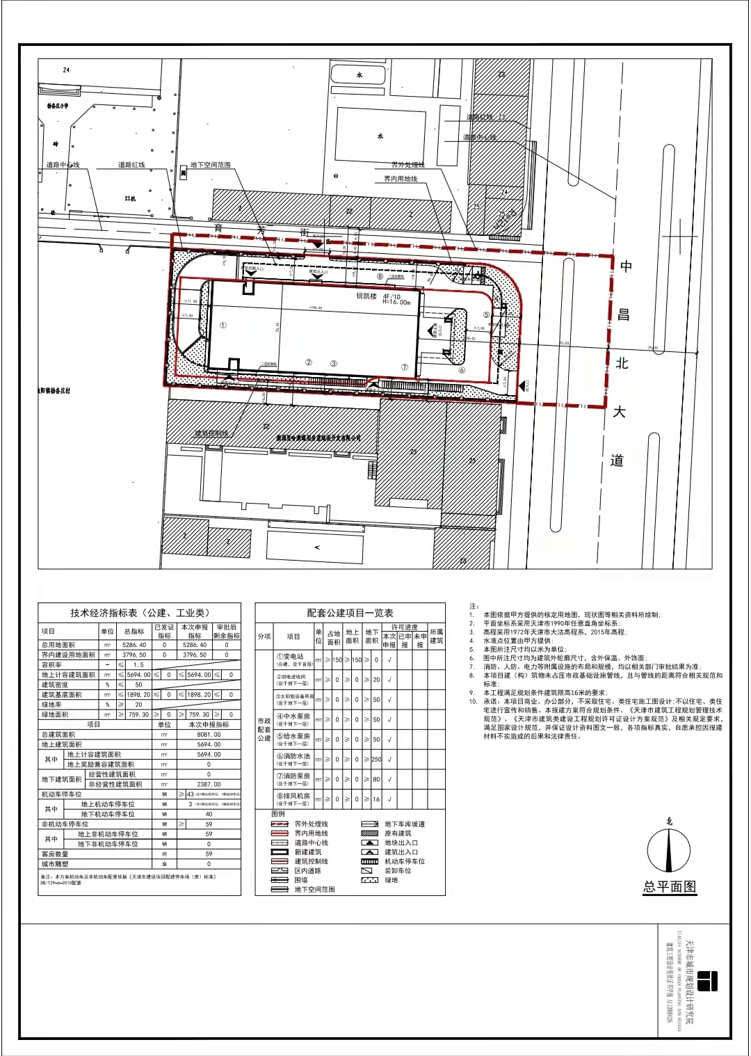
天津市规划和自然资源局蓟州分局于2022年3月22日审定了荣威商务酒店项目建设工程规划许可证设计方案,依据《中华人民共和国城乡规划法》和住房和城乡建设部《关于城乡规划公示公开的规定》的有关要求,现将该项目建设工程规划许可证设计方案总平面图公布,公布时间至项目规划验收合格。
天津市规划和自然资源局蓟州分局
2022年3月22日

附件下载:
1
、
公布图.pdf





津公网安备12010102000518号