规划公布
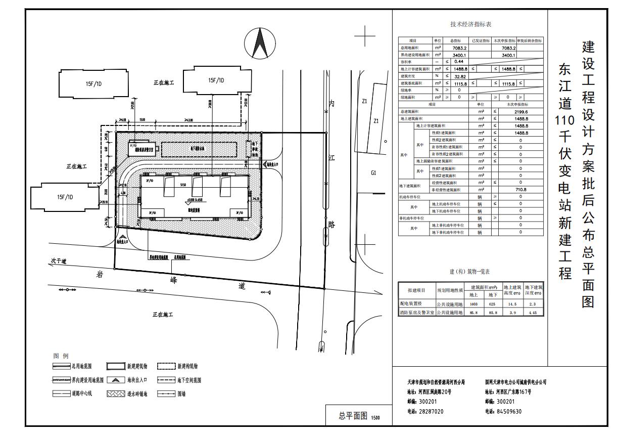
(河西区)关于国网天津市电力公司城南供电分公司东江道110千伏变电站新建工程项目建设工程设计方案总平面图的公示

建设工程规划许可证编号:2021河西建证0024
天津市规划和自然资源局河西分局
2021年9月10日

建设工程规划许可证编号:2021河西建证0024
天津市规划和自然资源局河西分局
2021年9月10日
国务院相关部委
政府机关
局属单位网站
主办单位:天津市规划和自然资源局 地址:天津市和平区曲阜道84号 邮编:300042
网站标识码:1200000077 备案编号:津ICP备19001981号
津公网安备12010102000518号
版权所有:天津市规划和自然资源局