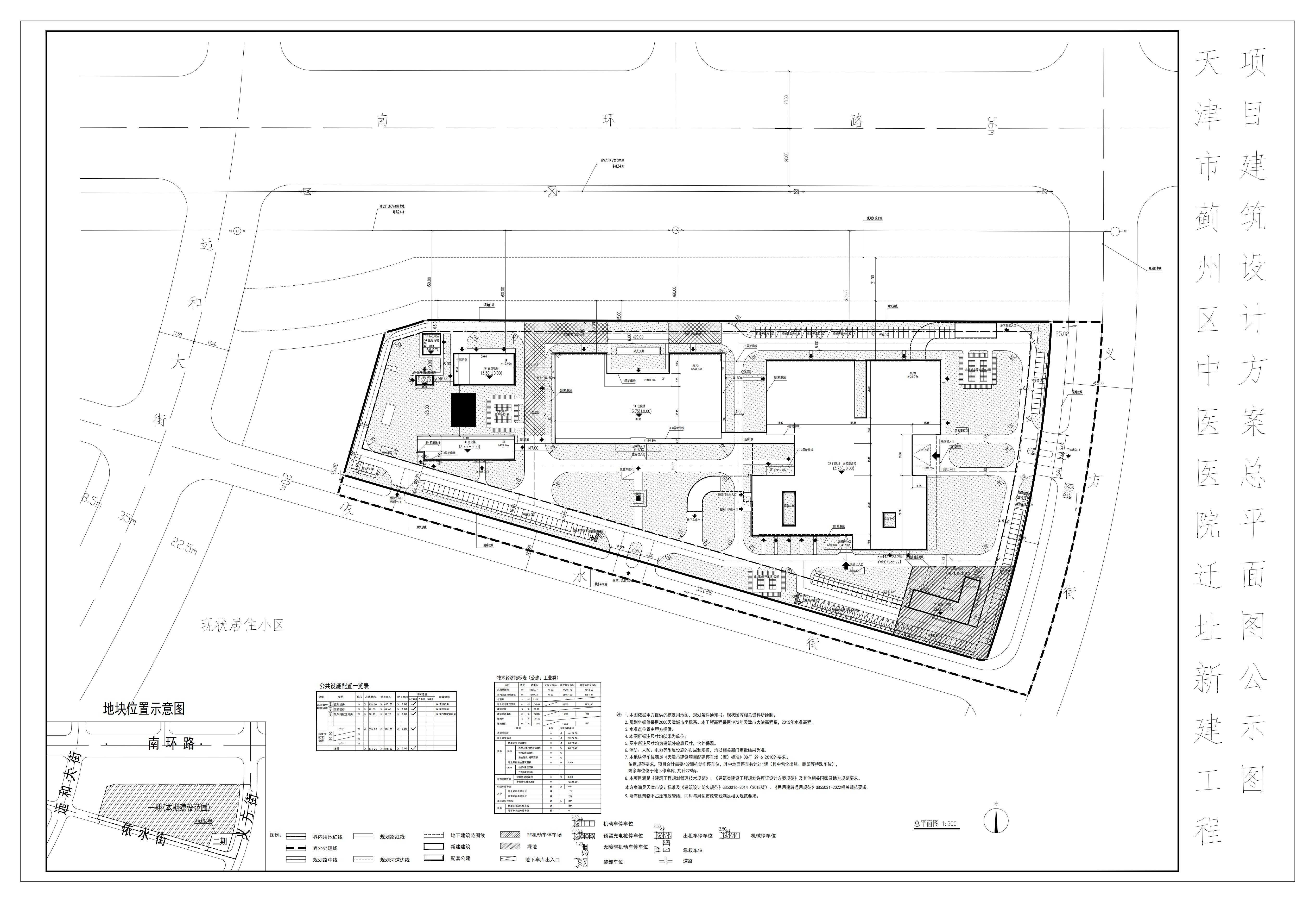
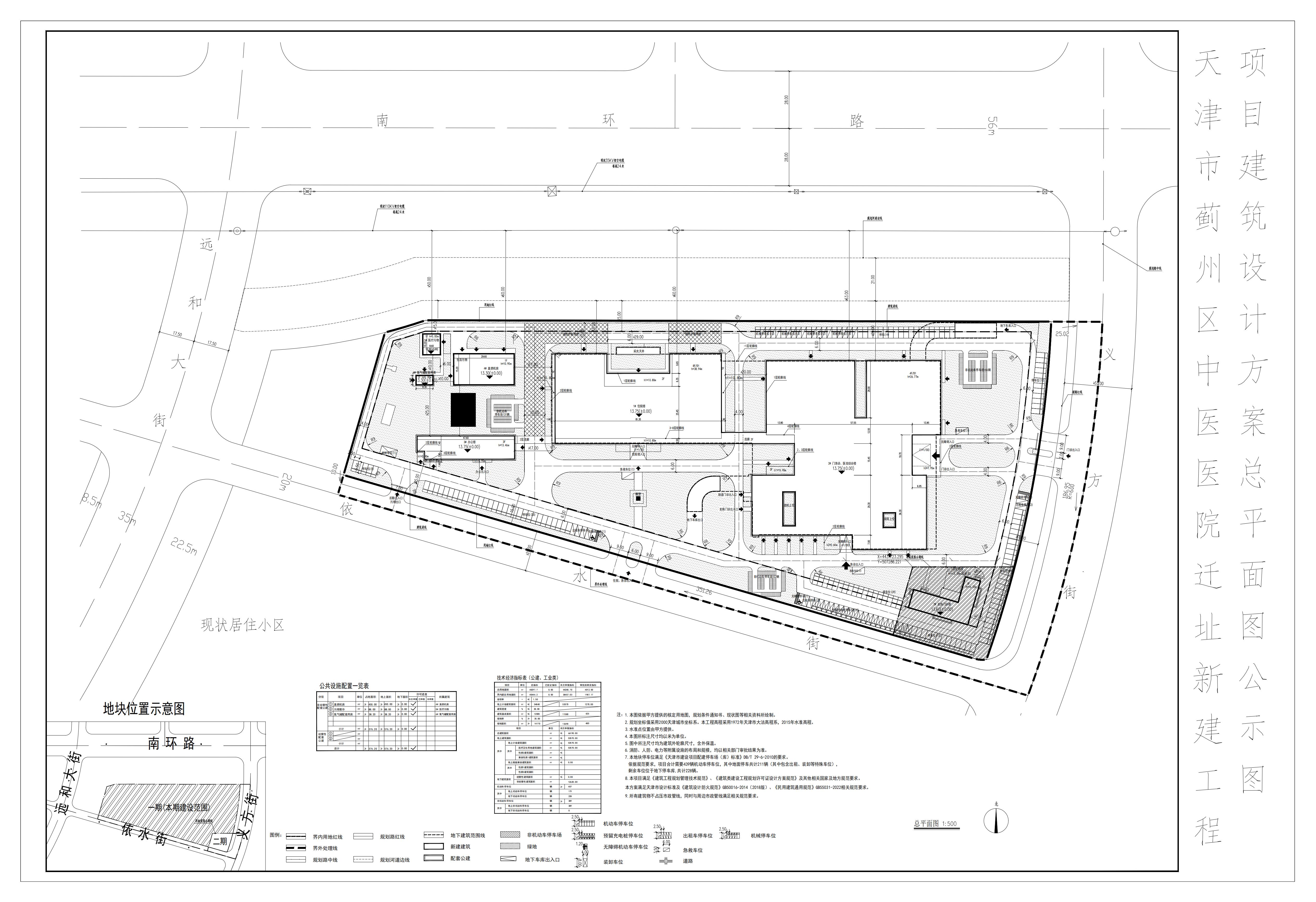
根据《中华人民共和国城乡规划法》、《中华人民共和国行政许可法》,经审核,现将天津市蓟州区中医医院位于天津市蓟州区义方街1号天津市蓟州区中医医院迁址新建工程项目建设工程设计方案调整草案予以批前公示,公示期为7工作日,自2025年7月4日至2025年7月14日为止。本次仅将原建设工程规划许可证进行分证,规划布局、配套设施均未发生改变。如对本设计方案草案不同意见,请于2025年7月14日之前以书面形式将反映情况寄(送)到建设单位、设计单位、天津市规划和自然资源局蓟州分局。单位反映情况请加盖公章,个人反映情况请签署真实姓名和工作单位,并留下联系电话、地址、邮编,以便及时与您联系。
|
来信请寄 |
建设单位 |
设计单位 |
天津市规划和自然资源局蓟州分局 |
|
地址 |
天津市蓟州区渔阳南路19号 |
天津市和平区大沽北路2号 |
蓟州区渔阳镇迎宾大街18号 |
|
邮编 |
301900 |
300041 |
301900 |
|
电话 |
29191001 |
16622391998 |
22870887 |
天津市规划和自然资源局蓟州分局
2025年7月4日






津公网安备12010102000518号