依据《中华人民共和国城乡规划法》和住房和城乡建设部《关于城乡规划公开公示的规定》的有关要求,现将中国(北方)商用车产业供应一站式服务中心建设项目-起步区建设施工(二标段)建筑设计方案总平面图进行公示。
公示时间为2025年6月25日至2025年7月3日,为期七个工作日。
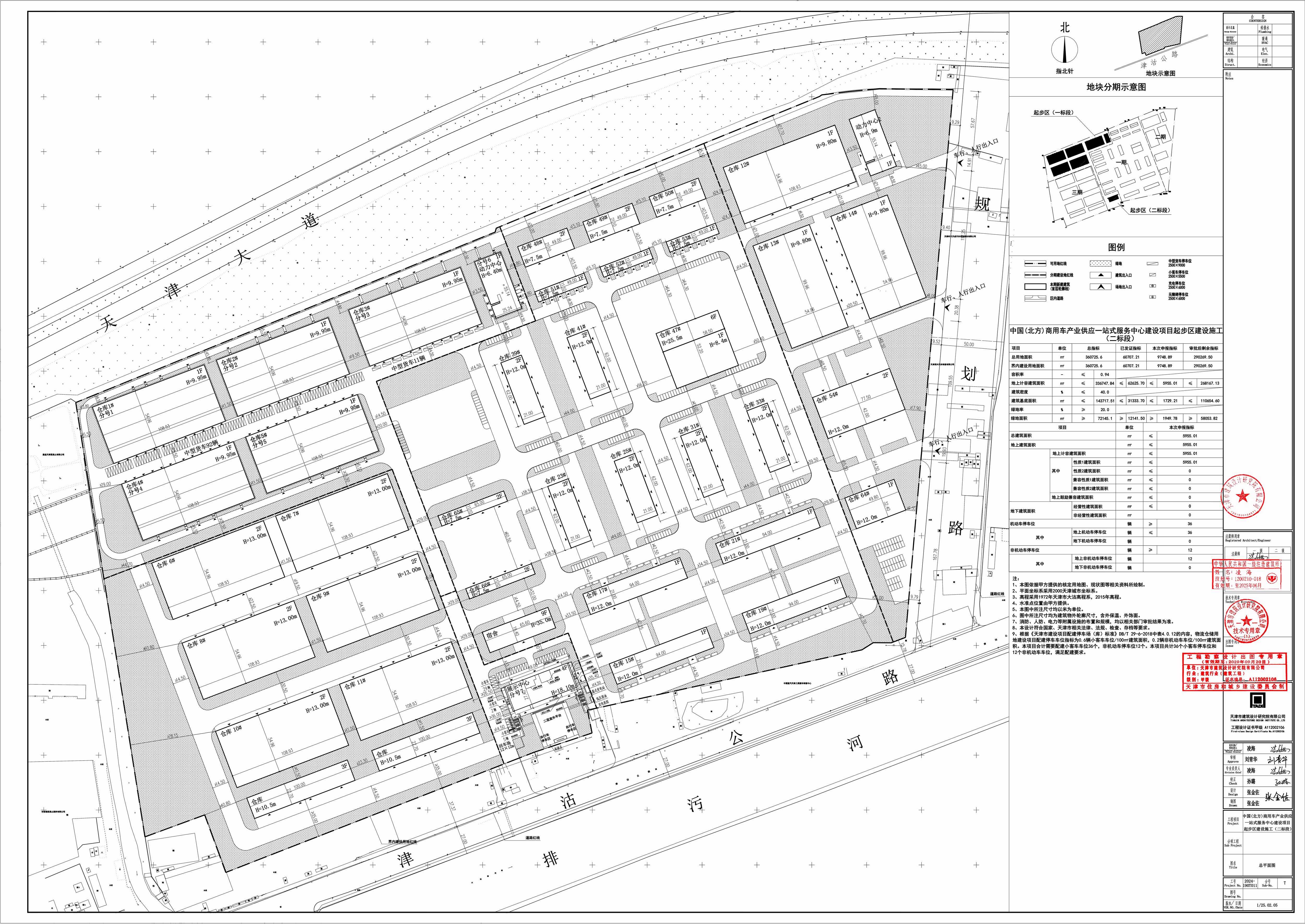
项目名称:中国(北方)商用车产业供应一站式服务中心建设项目-起步区建设施工(二标段)
项目位置:天津市滨海新区天津大道以南、河南路以西、津沽公路以北
建设单位:天津华戎实业有限公司
设计单位:天津市建筑设计研究院有限公司
项目简介:本期建设起步区(二标段)占地面积为9748.89平方米,建筑面积5955.01平方米;包括展示中心。
公示期间,周边单位及个人如对公示内容发表意见,请以电子邮件或电话方式反馈。
信函请寄:滨海新区于家堡融和路681号宝策大厦裙房行政许可服务中心
邮编:300450
联系人:徐艺桐
联系电话:022-66897974 (接听时间为 8:30—12:00,13:30-17:30)
邮 箱:gzjbhxqgs@163.com
天津市规划和自然资源局滨海新区分局
2025年6月25日
附图:建筑设计方案总平面图






津公网安备12010102000518号