依据《中华人民共和国城乡规划法》和住房和城乡建设部《关于城乡规划公开公示的规定》的有关要求,现将滨城体育中心建筑设计方案总平面图进行公示。
公示时间为2025年3月17日至2025年3月25日,为期七个工作日。
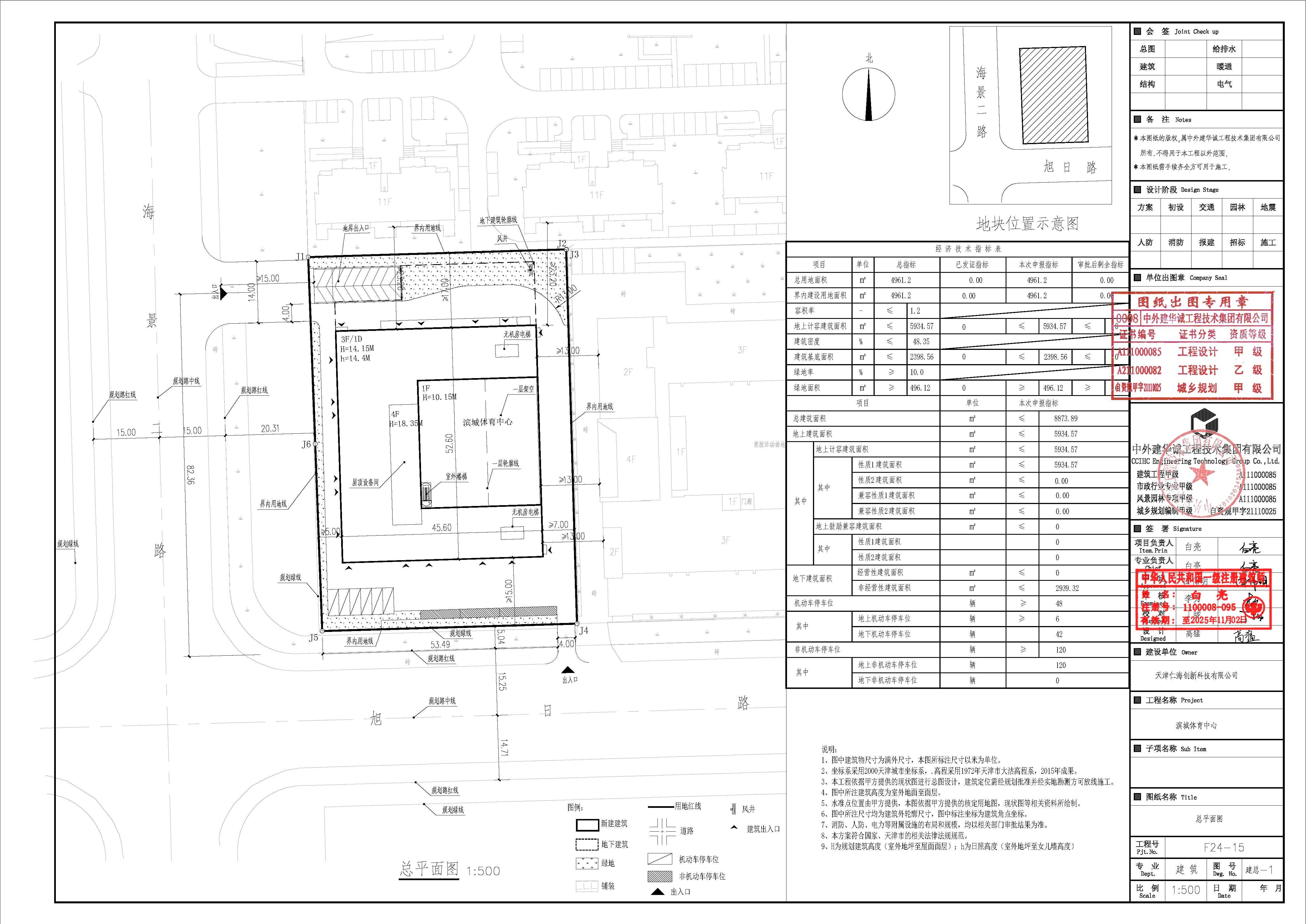
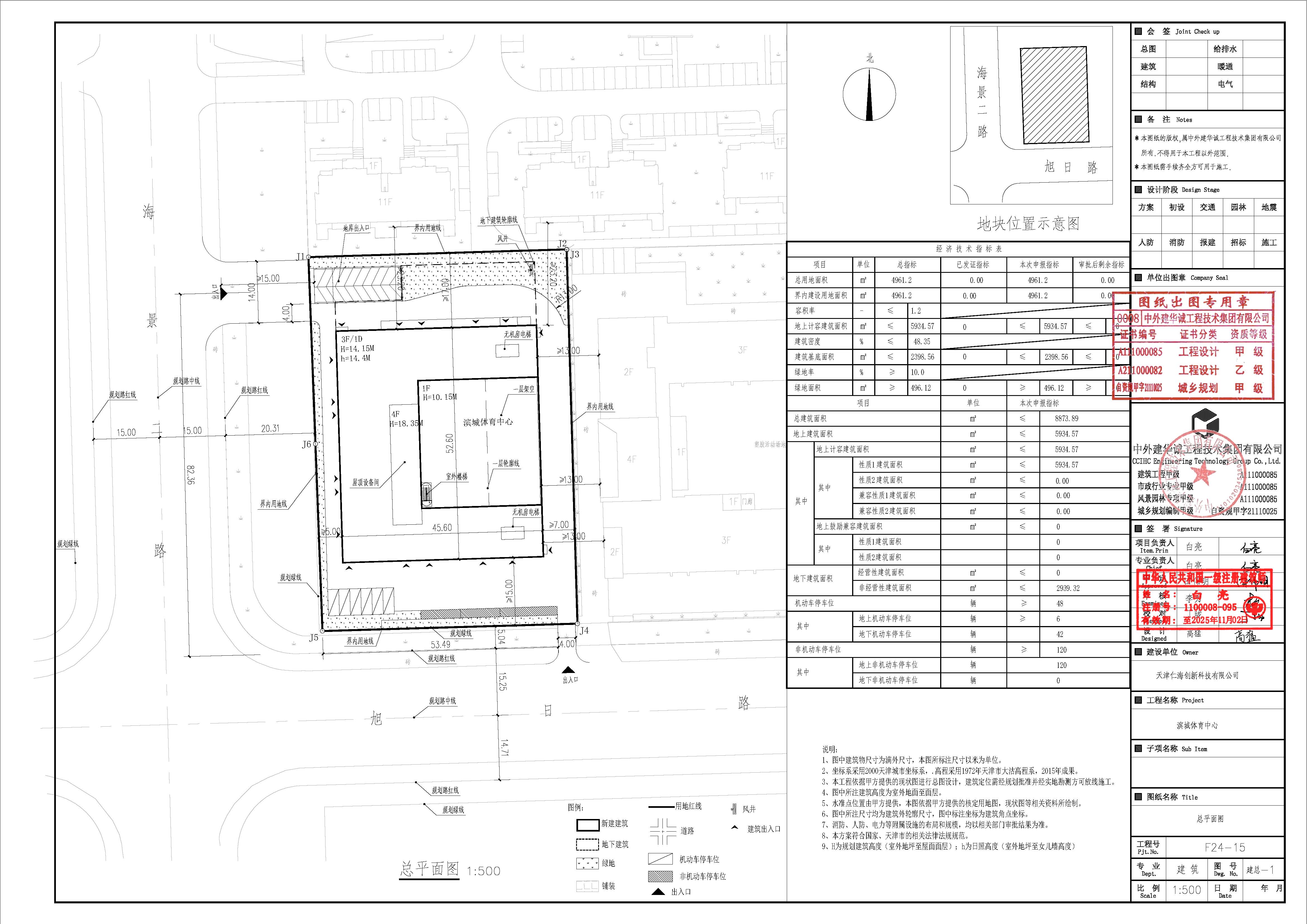
项目名称:滨城体育中心
项目位置:滨海新区海景二路以东、旭日路以北
建设单位:天津仁海创新科技有限公司
设计单位:中外建华诚工程技术集团有限公司
项目简介:滨城体育中心位于滨海新区海景二路以东、旭日路以北,项目占地面积4961.2平方米,总建筑面积约为8873.89平方米。
公示期间,周边单位及个人如对公示内容发表意见,请以电子邮件或电话方式反馈。
信函请寄:滨海新区于家堡融和路681号宝策大厦裙房行政许可服务中心
邮编:300450
联系人:邢燕
联系电话:022-66897974 (接听时间为 8:30—12:00,13:30-17:30)
邮 箱:gzjbhxqgs@163.com
天津市规划和自然资源局滨海新区分局
2025年3月17日
附图:建筑设计方案总平面图






津公网安备12010102000518号