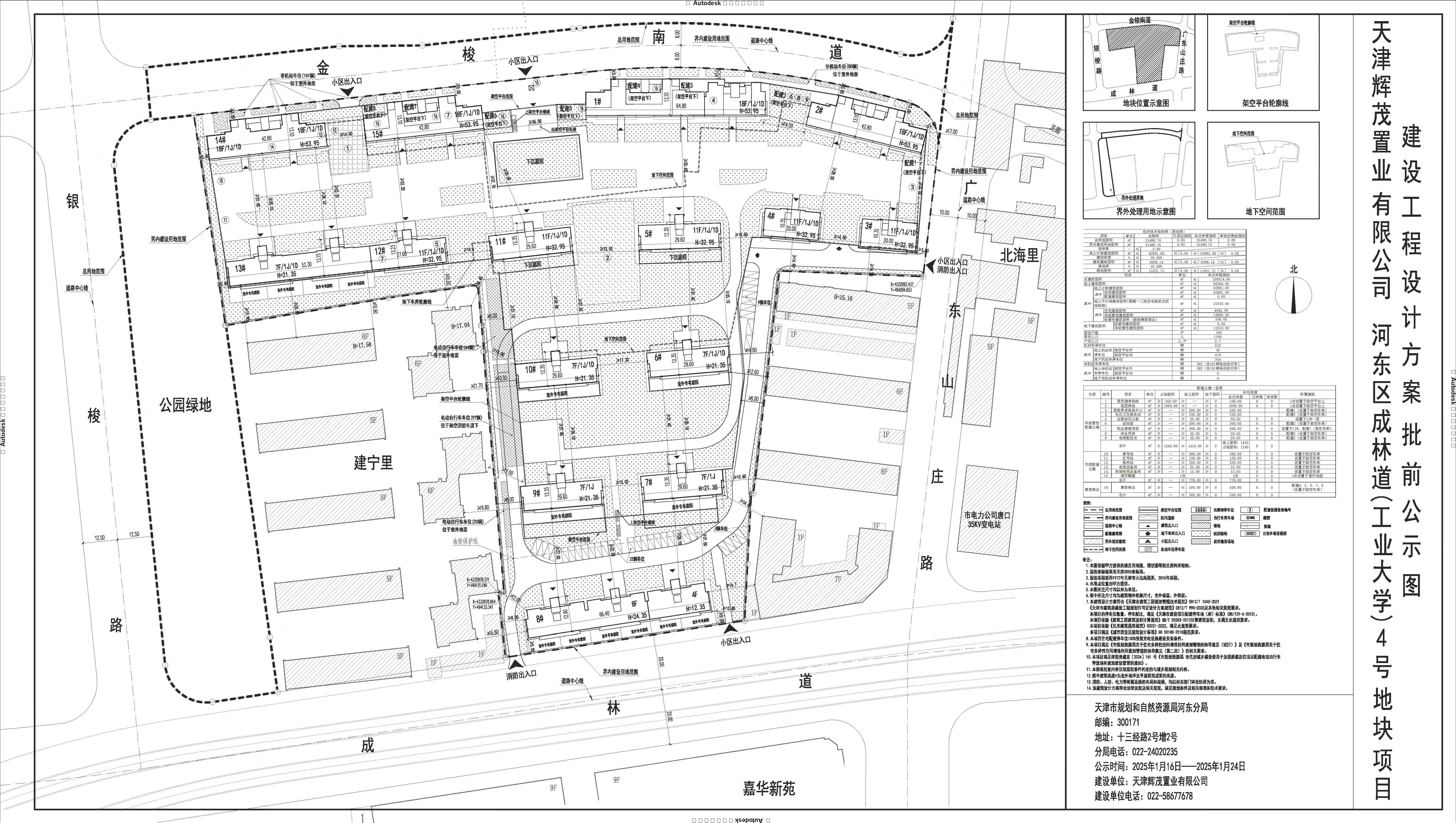
依据《中华人民共和国城乡规划法》与住房和城乡建设部《关于城乡规划公开公示的规定》的有关要求,现将该项目建设工程设计方案总平面图公示,公示时间为7日。
联系电话:24020235
天津市规划和自然资源局河东分局
2025年1月15日

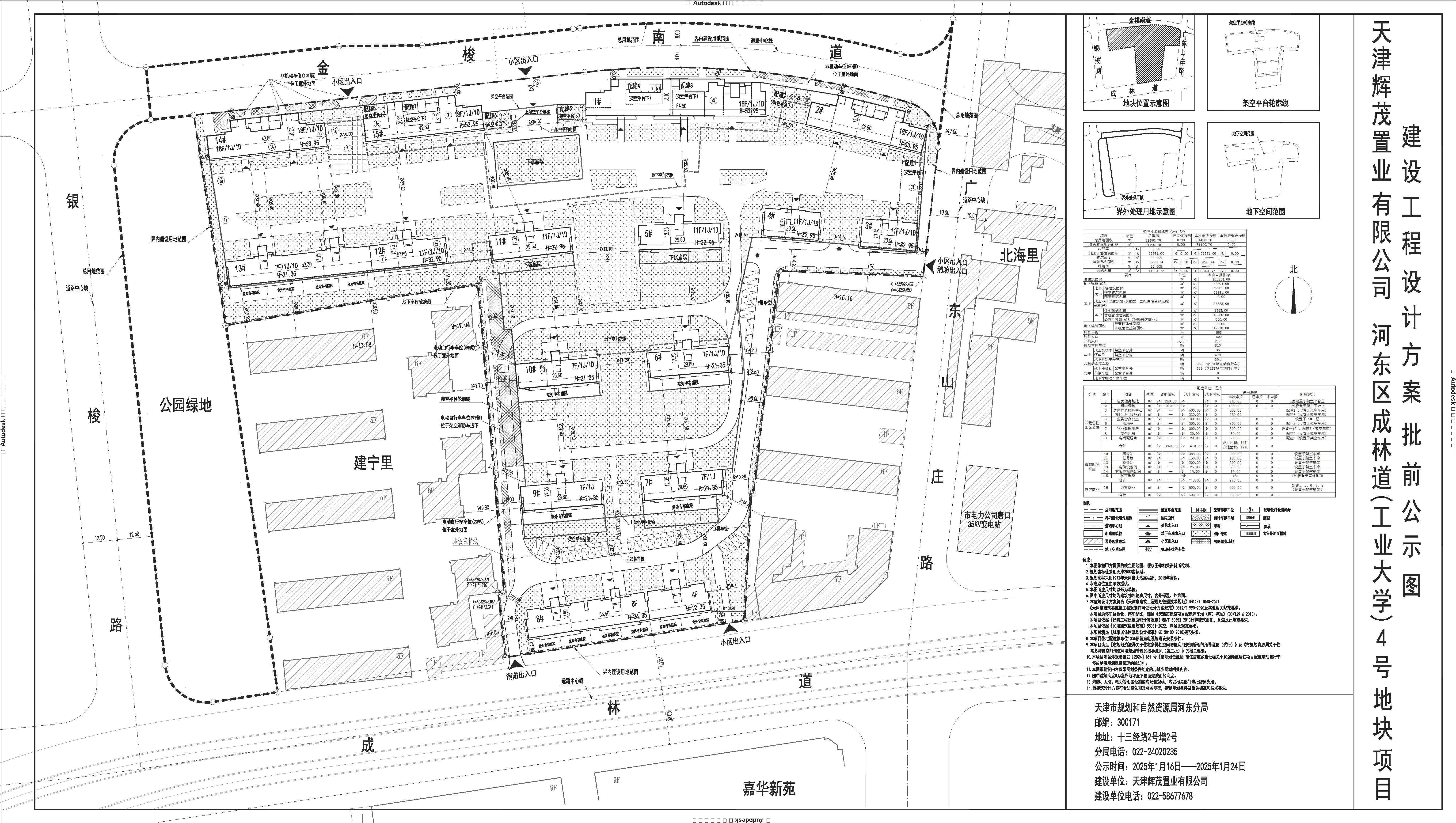
依据《中华人民共和国城乡规划法》与住房和城乡建设部《关于城乡规划公开公示的规定》的有关要求,现将该项目建设工程设计方案总平面图公示,公示时间为7日。
联系电话:24020235
天津市规划和自然资源局河东分局
2025年1月15日

国务院相关部委
政府机关
局属单位网站
主办单位:天津市规划和自然资源局 地址:天津市和平区曲阜道84号 邮编:300042
网站标识码:1200000077 备案编号:津ICP备19001981号
津公网安备12010102000518号
版权所有:天津市规划和自然资源局