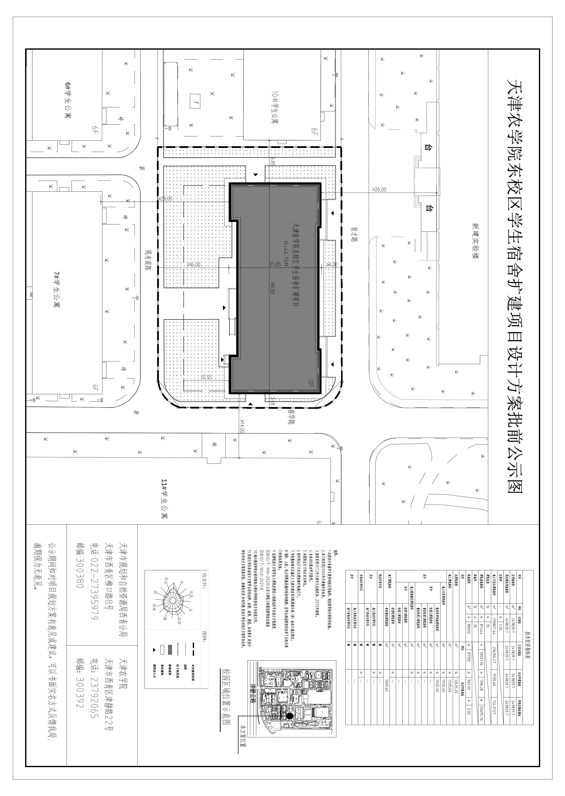
为进一步提高规划设计和管理水平,增加规划审批的科学性、民主性、公开性及透明度,争取社会各界对规划管理工作的理解、支持、监督和指导,加强全社会的城市规划意识,更好地为城市建设、经济发展和社会进步服务,根据有关规定,现将天津农学院东校区学生宿舍扩建项目设计方案总平面图进行公示,公示时间为7个工作日(2024年12月27日至2024年1月7日)。公示期间,如对项目规划方案有意见或建议,可以书面实名方式反馈我局或自公示之日起5个工作日内向我局提出书面听证申请,逾期视为无意见。
通讯地址:天津市西青区柳口路8号
联系电话:022-27395979
邮政编码:300380
天津市规划和自然资源局西青分局
2024年12月27日






津公网安备12010102000518号