依据《中华人民共和国城乡规划法》和住房和城乡建设部《关于城乡规划公开公示的规定》的有关要求,现将新建乐乐菜市场项目建筑设计方案总平面图进行公示。
公示时间为2024年11月1日至2024年11月11日,为期七个工作日。
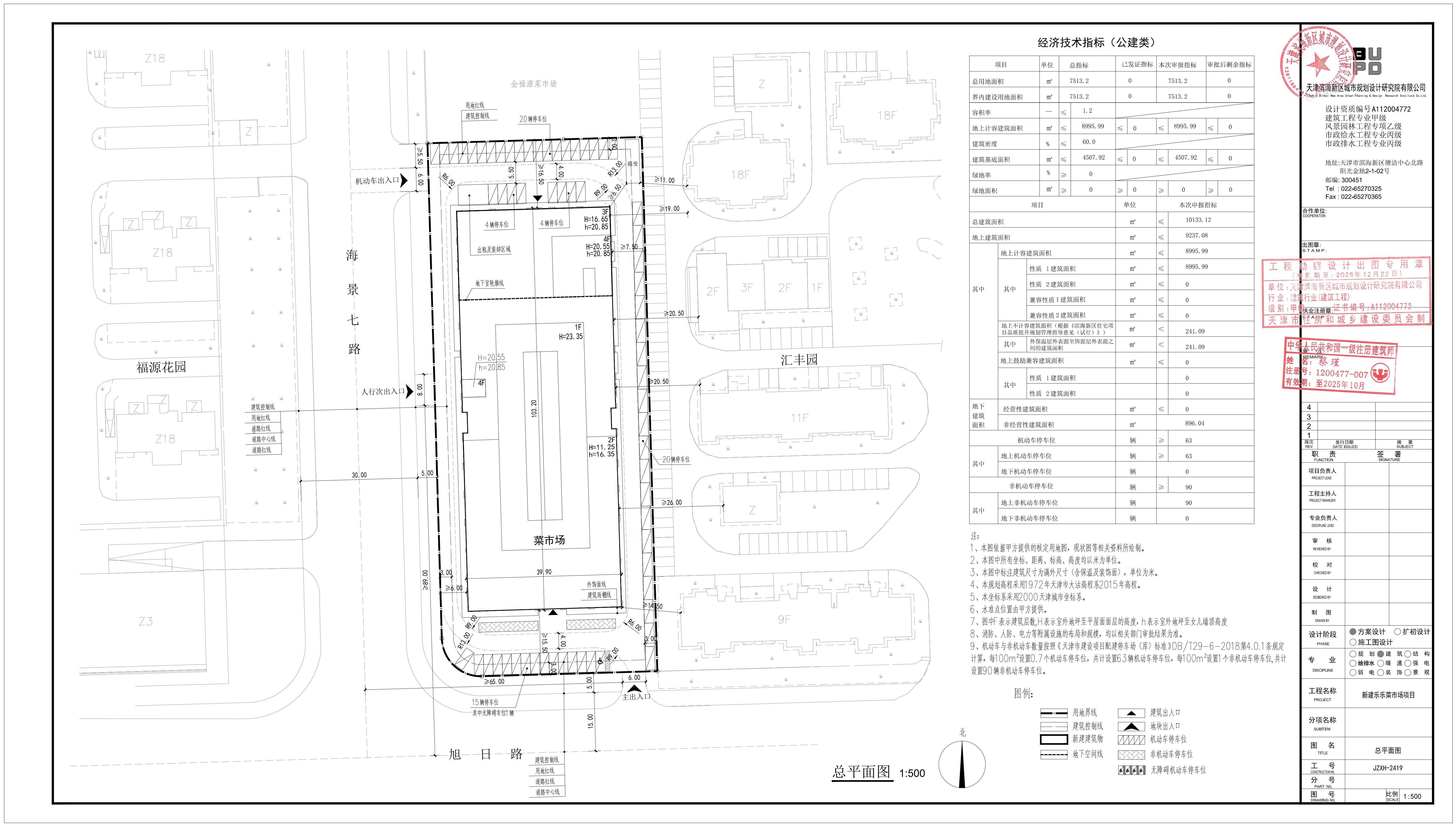
项目名称:新建乐乐菜市场项目
项目位置:天津市滨海新区大港海景七路以东、旭日路以北
建设单位:天津市乐创置业有限公司
设计单位:天津滨海新区城市规划设计研究院有限公司
项目简介:项目总用地面积7513.2平方米,总建筑面积约10133.12平方米,其中地上建筑面积约9237.08平方米,地下建筑面积约896.04平方米。主要建设内容为一座菜市场,总建筑面积约10133.12平方米,其中地上建筑面积约9237.08平方米,地下建筑面积约896.04平方米。
公示期间,周边单位及个人如对公示内容发表意见,请以电子邮件或电话方式反馈。
信函请寄:滨海新区于家堡融和路681号宝策大厦裙房行政许可服务中心
邮编:300450
联系人:邢燕
联系电话:022-66897974 (接听时间为 8:30—12:00,13:30-17:30)
邮 箱:gzjbhxqgs@163.com
天津市规划和自然资源局滨海新区分局
2024年11月1日
附图:建筑设计方案总平面图






津公网安备12010102000518号