依据《中华人民共和国城乡规划法》和住房和城乡建设部《关于城乡规划公开公示的规定》的有关要求,现将国电电力天津滨海新区大港板桥农场“渔光互补”光伏发电项目110kV升压站项目建筑设计方案总平面图进行公示。
公示时间为2024年9月27日至2024年10月11日,为期七个工作日。
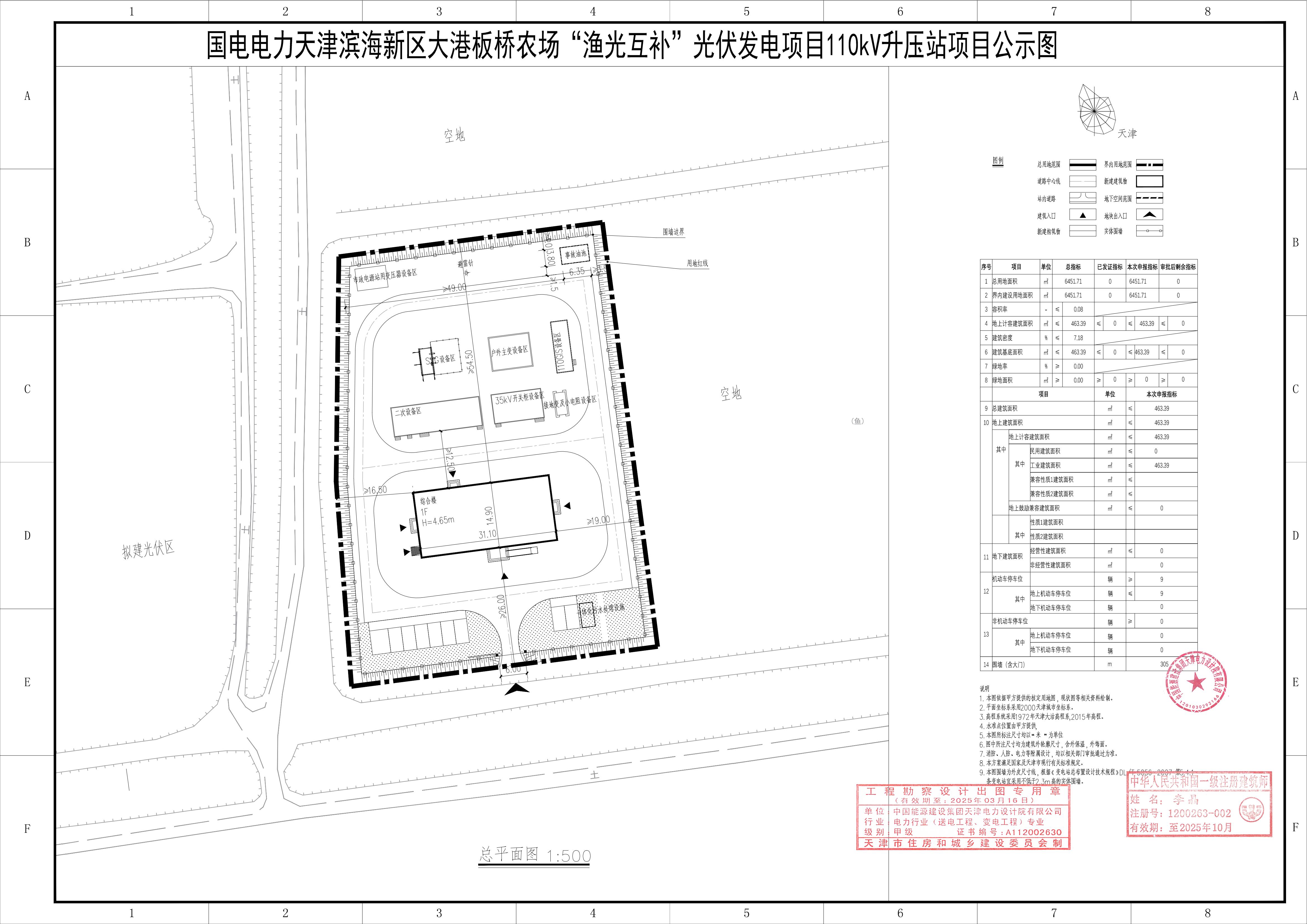
项目名称:国电电力天津滨海新区大港板桥农场“渔光互补”光伏发电项目110kV升压站项目
项目位置:天津滨海新区大港板桥农场
建设单位:天津国电津能港电新能源有限公司
设计单位:中国能源建设集团天津电力设计院有限公司
项目简介:国电电力天津滨海新区大港板桥农场“渔光互补”光伏发电项目110kV升压站程位于天津市滨海新区新北大港站南侧,汉港线路西侧了约600m处。
本工程总用地面积6451.7㎡,总平面布置结合站区总体规划及工艺要求,布局紧凑,节省土地。
本次设计按照变电站的规划规模进行总平面布置,土建按规划本期一次建成。
站区南侧设置一个永久出入口。
站内设置综合楼一座。现地形为鱼塘填埋场地平坦,竖向布置方式为平坡型。
公示期间,周边单位及个人如对公示内容发表意见,请以电子邮件或电话方式反馈。
信函请寄:滨海新区于家堡融和路681号宝策大厦裙房行政许可服务中心
邮编:300450
联系人:王森
联系电话:022-66897754 (接听时间为 8:30—12:00,13:30-17:30)
邮 箱:gzjbhxqgs@163.com
天津市规划和自然资源局滨海新区分局
2024年9月27日
附图:建筑设计方案总平面图






津公网安备12010102000518号