依据《中华人民共和国城乡规划法》和住房和城乡建设部《关于城乡规划公开公示的规定》的有关要求,现将天津市滨海新区中部新城北起步区金座•壹号商业广场项目建筑设计方案总平面图进行公示。
公示时间为2024年9月3日至2024年9月11日,为期七个工作日。
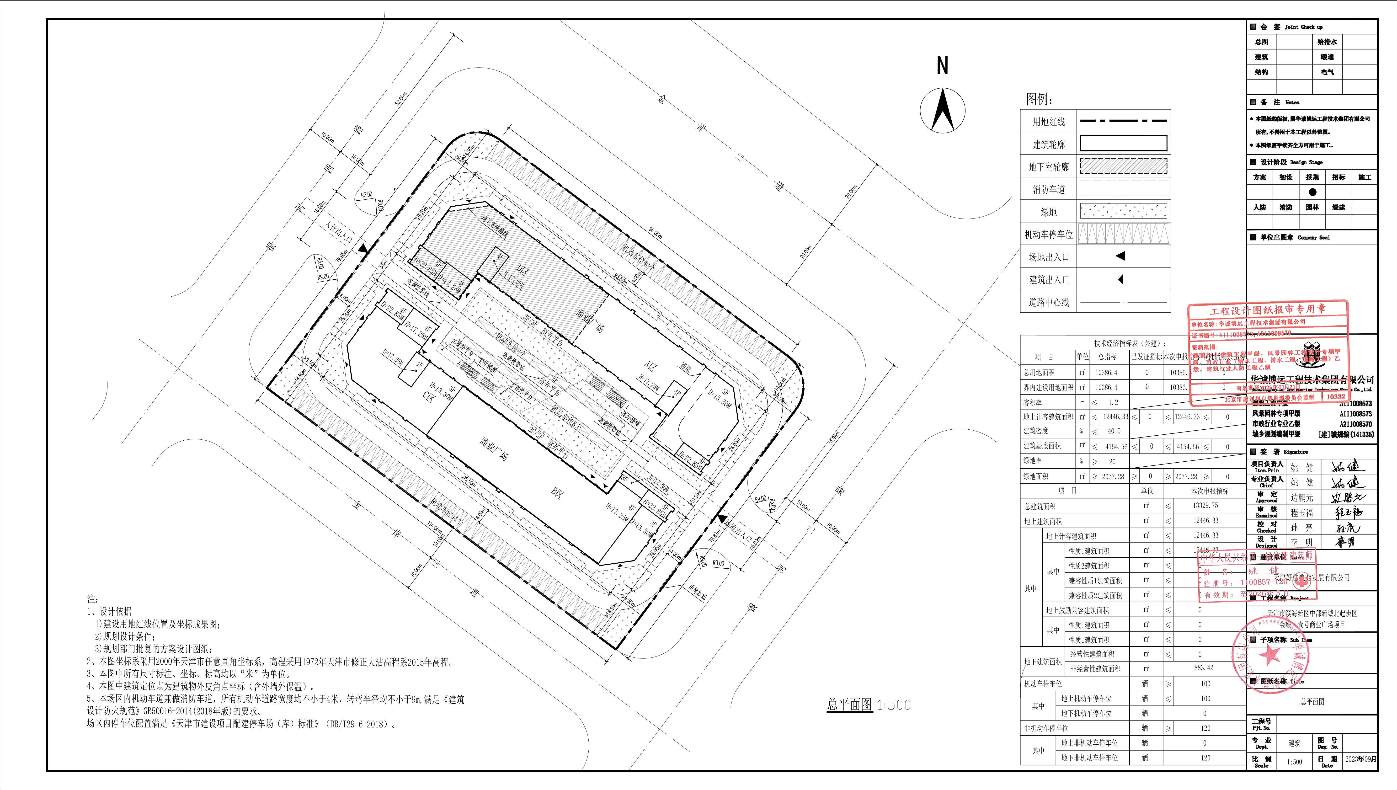
项目名称:天津市滨海新区中部新城北起步区金座•壹号商业广场项目
项目位置:东至银河二路、南至金岸三道、西至银河四路、北至金岸二道
建设单位:天津好佳置业发展有限公司
设计单位:华诚博远工程技术集团有限公司
项目简介(变更说明):本项目位于天津滨海新区中部新城北起步区,总用地面积:10386.4平方米,总建筑面积:13329.75平方米,因扶梯建设在户外,考虑运行中存在安全隐患,故取消室外两部扶梯,A区B区东侧店铺C区D区西侧店铺外檐棕色金属漆变为棕色涂料,根据后期使用要求,在12-13轴,H-G轴局部墙面开设洞口,地块在东、西侧银河四路开口尺寸调整为16米,绿化面积由2081.67平方米调整为2077.28平方米。
公示期间,周边单位及个人如对公示内容发表意见,请以电子邮件或电话方式反馈。
信函请寄:滨海新区于家堡融和路681号宝策大厦裙房行政许可服务中心
邮编:300450
联系人:许冬雪
联系电话:022-66897974 (接听时间为 8:30—12:00,13:30-17:30)
邮 箱:gzjbhxqgs@163.com
天津市规划和自然资源局滨海新区分局
2024年9月3日
附图:建筑设计方案总平面图






津公网安备12010102000518号