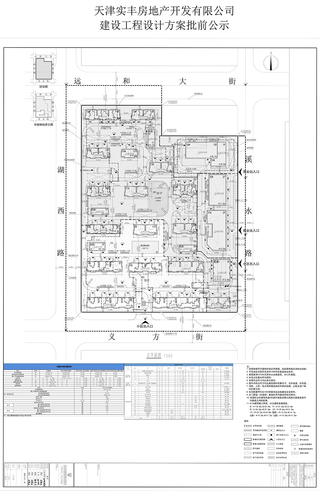
常春园(住宅)二期项目建设工程设计方案调整草案
根据《中华人民共和国城乡规划法》、《中华人民共和国行政许可法》,经审核,现将天津实丰房地产开发有限公司位于蓟州区溪水路西侧,义方街北侧常春园(住宅)二期项目建设工程设计方案调整草案予以批前公示,公示期为7工作日,自2024年6月18日至2024年6月26日为止。本次仅将原建设工程规划许可证进行分证,规划布局、配套设施均未发生改变。如对本设计方案草案不同意见,请于2024年6月26日之前以书面形式将反映情况寄(送)到建设单位、设计单位、天津市规划和自然资源局蓟州分局。单位反映情况请加盖公章,个人反映情况请签署真实姓名和工作单位,并留下联系电话、地址、邮编,以便及时与您联系。
|
来信请寄 |
建设单位 |
设计单位 |
天津市规划和自然资源局蓟州分局 |
|
地址 |
蓟州区溪水路西侧,义方街北侧 |
南开区长江道与南开三马路交口金融街中心C座11层 |
蓟州区渔阳镇迎宾大街18号 |
|
邮编 |
301900 |
300000 |
301900 |
|
电话 |
59137777 |
58626902 |
22870887 |
天津市规划和自然资源局蓟州分局
2024年6月18日






津公网安备12010102000518号