依据《中华人民共和国城乡规划法》和住房和城乡建设部《关于城乡规划公开公示的规定》的有关要求,现将天津医科大学临床医学院3号宿舍楼建筑设计方案总平面图进行公示。
公示时间为2024年5月28日至2024年6月5日,为期七个工作日。
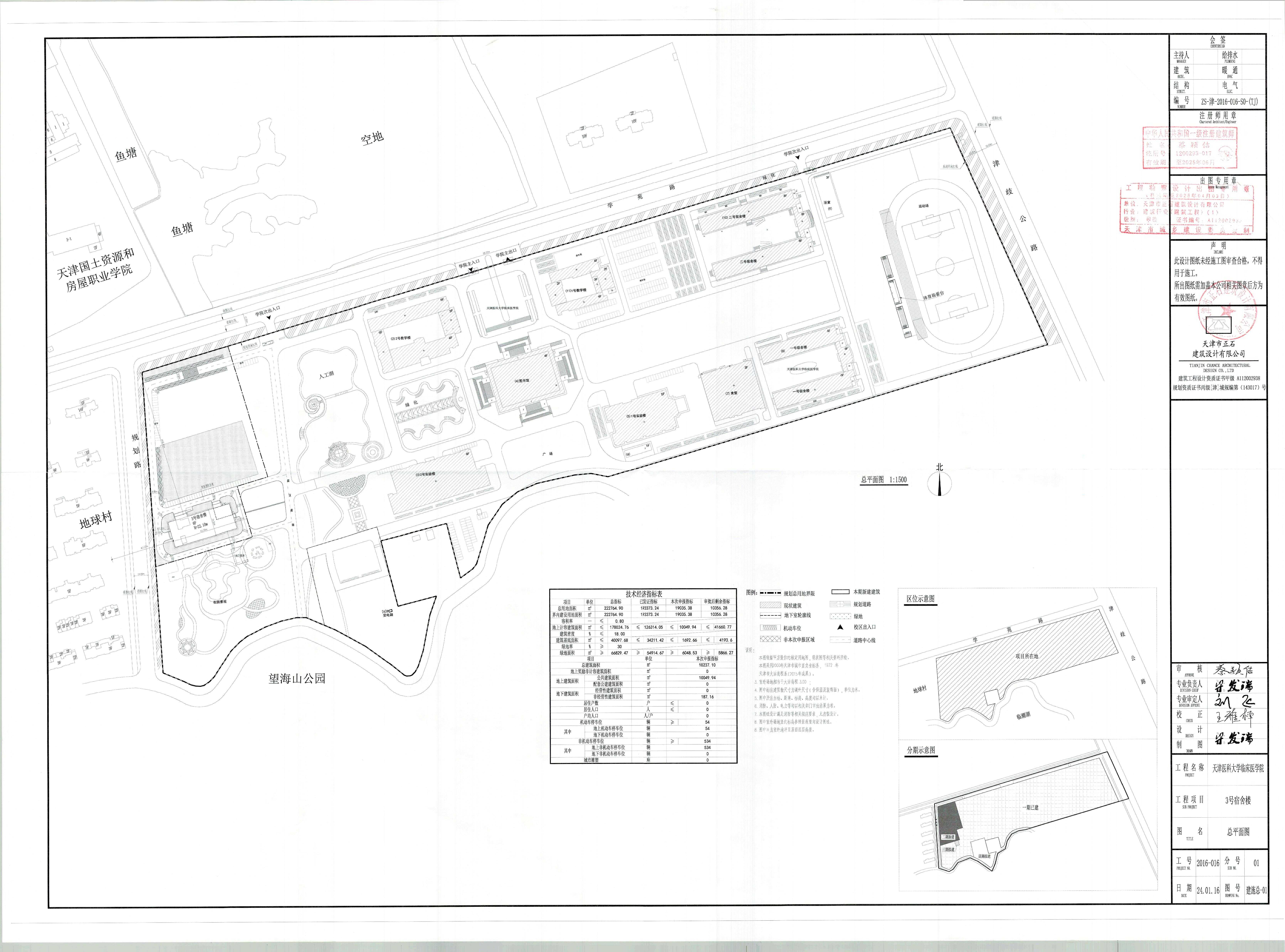
项目名称:天津医科大学临床医学院3号宿舍楼
项目位置:天津市滨海新区大港学苑路167号
建设单位:天津医科大学临床医学院
设计单位:天津市正石建筑设计有限公司
项目简介(变更说明):一、宿舍楼外立面造型及颜色调整
1. 宿舍楼北面外墙线脚及颜色调;取消窗下部分空调板及护栏;室内楼梯外墙窗顶挑槽调整;窗井形式调整;室内外高调整,三步改两步;外墙线脚及颜色调整。
2. 宿舍楼南面窗样式调整;外墙线脚及颜色调整;取消窗下部分空调板及护栏;南侧女儿墙颜色调整;落地线脚取消;空调板与线脚尺寸关系调整;多一处雨棚挑板。
3. 宿舍楼东面屋顶框架位置尺寸调整;屋顶框架颜色调整;墙体线条颜色调整;窗样式调整;首层门雨棚取消;室内外高差调整。三步改两步。
4. 宿舍楼西面屋顶墙体颜色及线条调整;屋顶楼梯间、储藏间增加门上雨棚;墙体线条颜色调整;突出构造护栏下砌墙样式;连接南北侧墙体线条;室内外高差调整,三步改两步。
二、总平面图布置调整
1. 用地范围分期地界线调整。原规划批复的总平图没有明确3号宿舍楼的分期地界,3号宿舍楼和已建建筑划为一期,本次增加3号宿舍楼地界,并调整经济技术指标表。
2.停车位调整。原规划批复的总平面中仅有总机动车位及非机动车位,本次在二期(3号宿舍楼)范围内设机动车位54辆,非机动车位534辆。
公示期间,周边单位及个人如对公示内容发表意见,请以电子邮件或电话方式反馈。
信函请寄:滨海新区于家堡融和路681号宝策大厦裙房行政许可服务中心
邮编:300450
联系人:王森
联系电话:022-66897754 (接听时间为 8:30—12:00,13:30-17:30)
邮 箱:gzjbhxqgs@163.com
天津市规划和自然资源局滨海新区分局
2024年5月28日
附图:建筑设计方案总平面图






津公网安备12010102000518号