依据《中华人民共和国城乡规划法》和住房和城乡建设部《关于城乡规划公开公示的规定》的有关要求,现将天津医科大学临床医学院3号宿舍楼(消防泵房及水池)建筑设计方案总平面图进行公示。
公示时间为2024年5月28日至2024年6月5日,为期七个工作日。
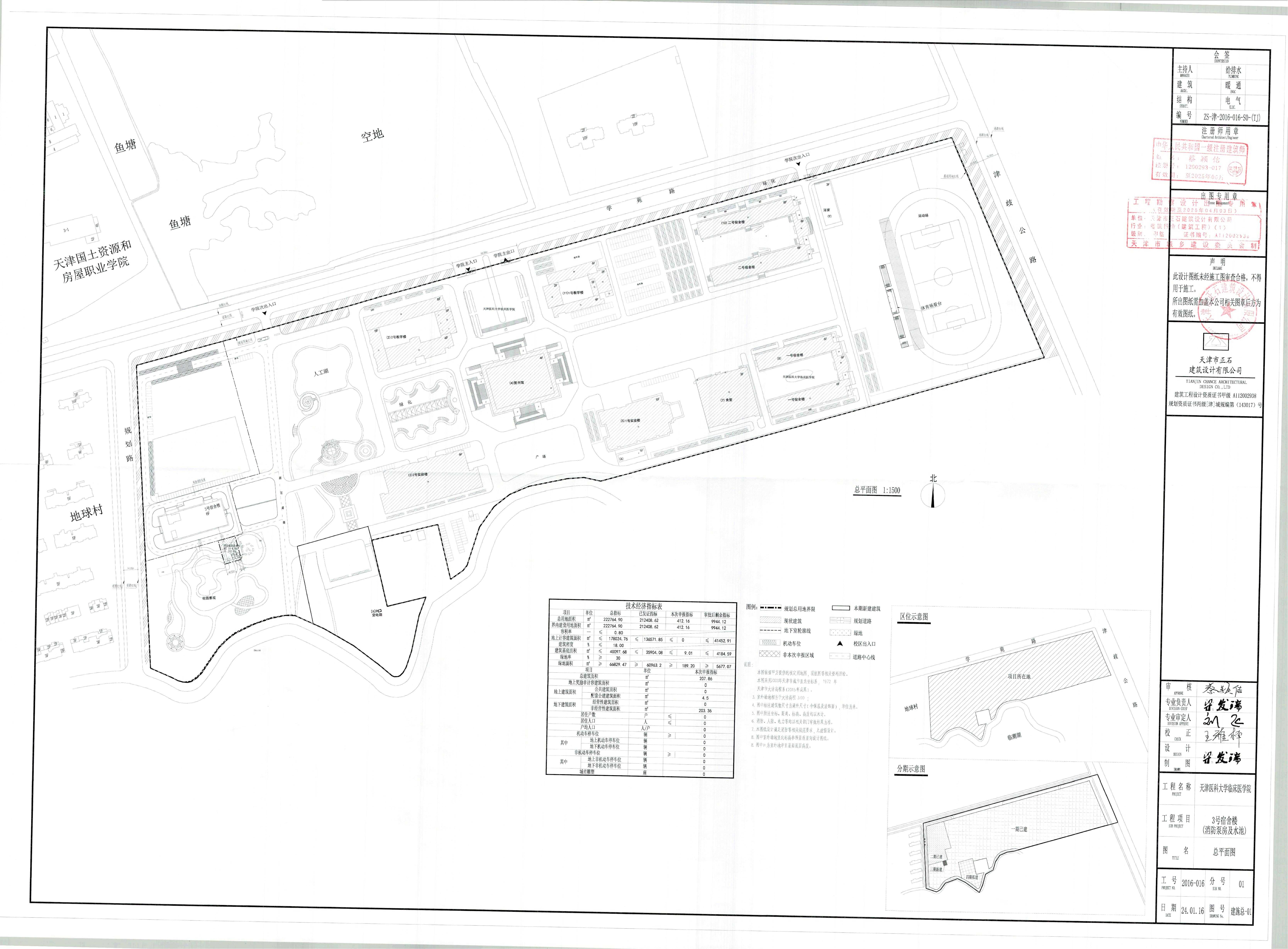
项目名称:天津医科大学临床医学院3号宿舍楼(消防泵房及水池)
项目位置:天津市滨海新区大港学苑路167号
建设单位:天津医科大学临床医学院
设计单位:天津市正石建筑设计有限公司
项目简介(变更说明):调整消防水池及泵房外墙及线脚颜色。
公示期间,周边单位及个人如对公示内容发表意见,请以电子邮件或电话方式反馈。
信函请寄:滨海新区于家堡融和路681号宝策大厦裙房行政许可服务中心
邮编:300450
联系人:王森
联系电话:022-66897754 (接听时间为 8:30—12:00,13:30-17:30)
邮 箱:gzjbhxqgs@163.com
天津市规划和自然资源局滨海新区分局
2024年5月28日
附图:建筑设计方案总平面图






津公网安备12010102000518号