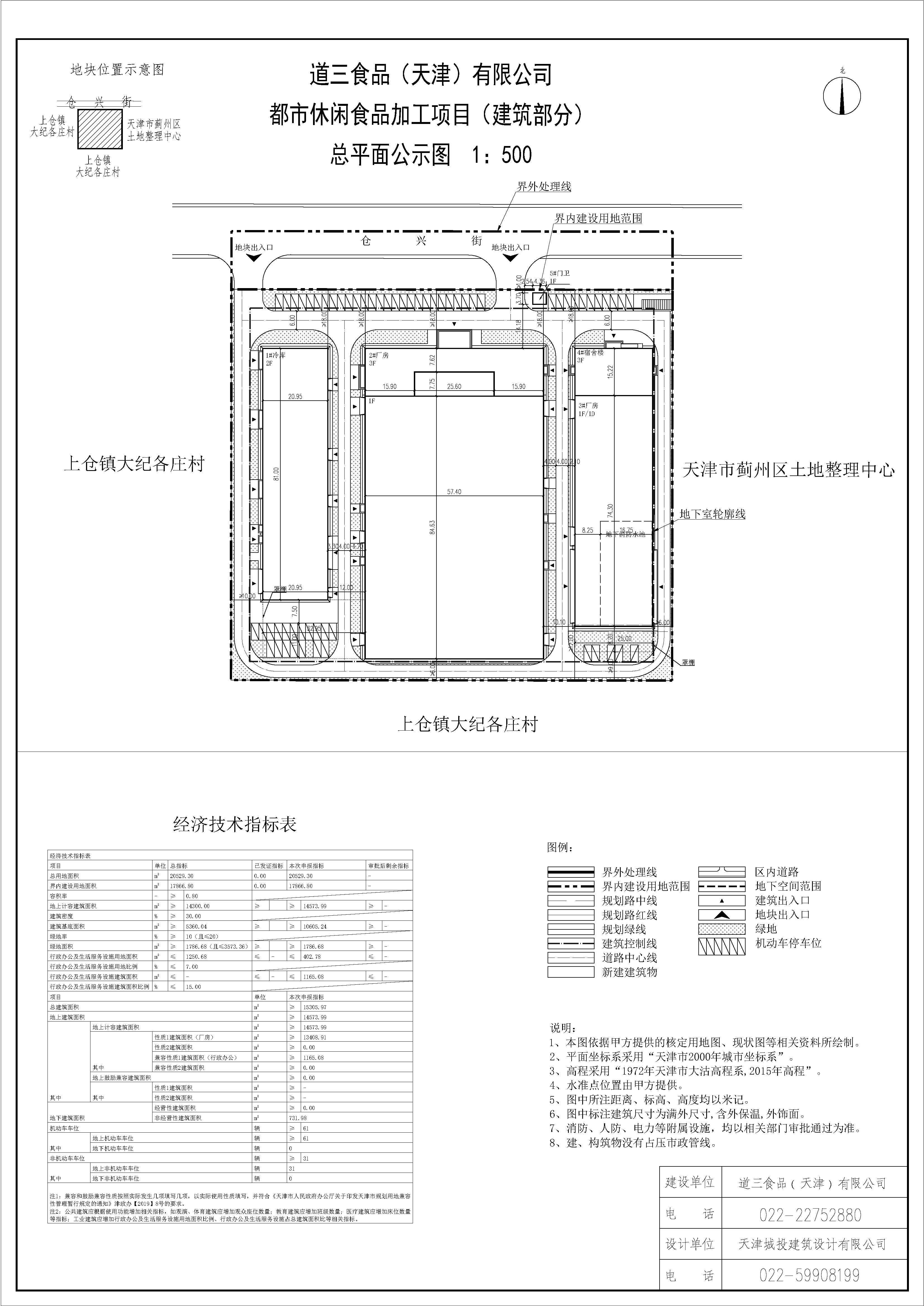
都市休闲食品加工项目(建筑部分)建设工程设计方案变更草案
根据《中华人民共和国城乡规划法》《中华人民共和国行政许可法》,经审核,现将道三食品(天津)有限公司位于天津市蓟州区(四至:北至仓兴街,南至上仓镇大纪各庄村用地界,东至天津市蓟州区土地整理中心用地界;西至上仓镇大纪各庄村用地界)的都市休闲食品加工项目(建筑部分)建设工程设计方案变更草案予以批前公示,公示期为7工作日,自2024年4月19日至2024年4月28日为止。如对本设计方案草案有不同意见,请于2024年4月28日之前以书面形式将反映情况寄(送)到建设单位、设计单位、天津市规划和自然资源局蓟州分局。单位反映情况请加盖公章,个人反映情况请签署真实姓名和工作单位,并留下联系电话、地址、邮编以便及时与您联系。
|
来信请寄 |
道三食品(天津)有限公司 |
天津城投建筑设计有限公司 |
天津市规划和自然资源局蓟州分局 |
|
地址 |
天津市蓟州区经济开发区仓兴街17号 |
天津南开区凌奥创意产业园三期F3栋5层 |
蓟州区渔阳镇迎宾大街18号 |
|
邮编 |
301900 |
300467 |
301900 |
|
电话 |
022-22752880 |
022-59908199 |
022-22870887 |
天津市规划和自然资源局蓟州分局
2024年4月19日






津公网安备12010102000518号