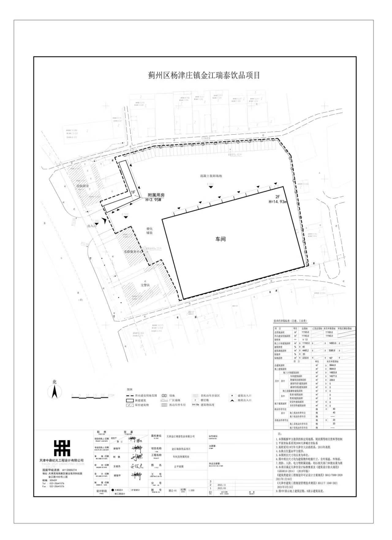
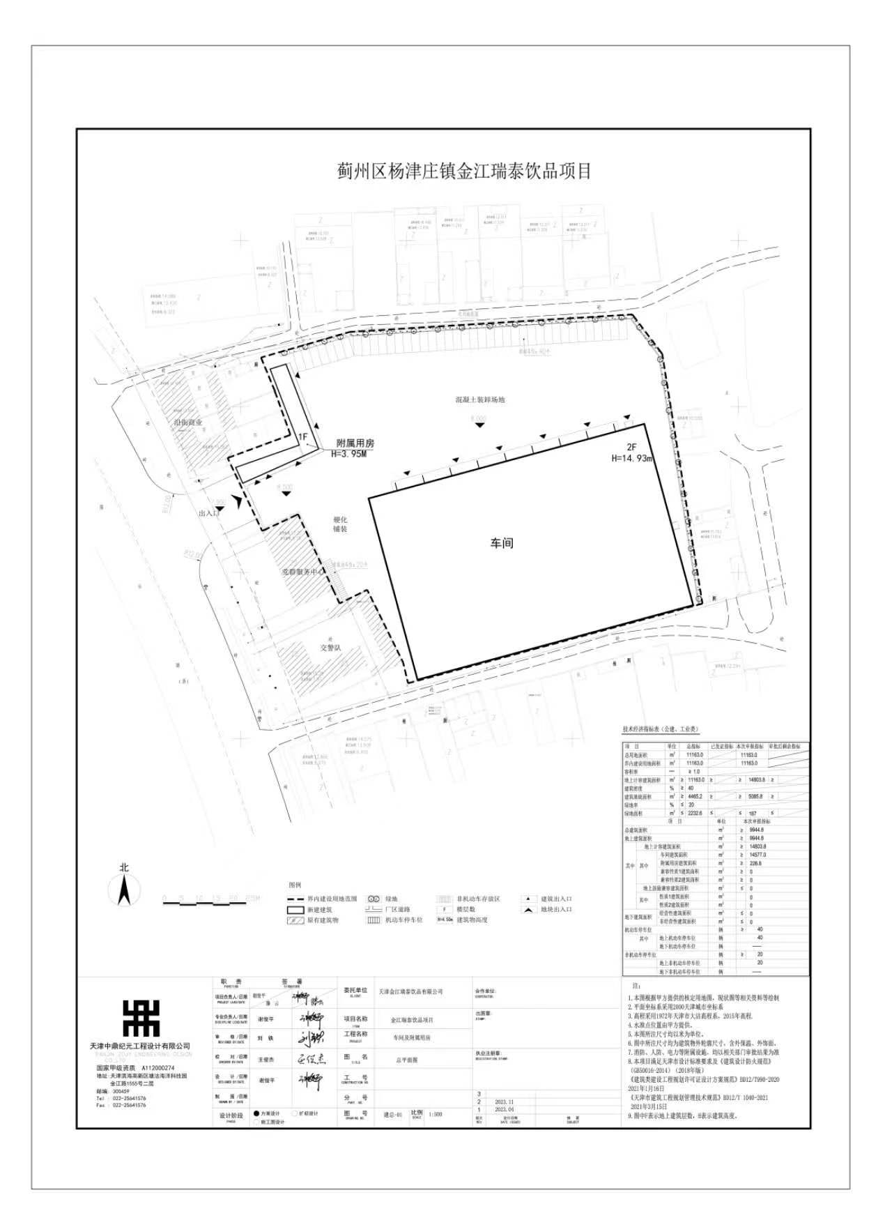
金江瑞泰饮品项目建设工程设计方案草案
根据《中华人民共和国城乡规划法》、《中华人民共和国行政许可法》,经审核,现将天津金江瑞泰饮品有限公司位于杨津庄村西侧、杨津庄镇幼儿园南侧金江瑞泰饮品项目建设工程设计方案草案予以批前公示,公示期为7工作日,自2024年1月9日至2024年1月17日为止。如对本设计方案草案有不同意见,请于2024年1月17日之前以书面形式将反映情况寄(送)到建设单位、设计单位、天津市规划和自然资源局蓟州分局。单位反映情况请加盖公章,个人反映情况请签署真实姓名和工作单位,并留下联系电话、地址、邮编,以便及时与您联系。
|
来信请寄 |
建设单位:天津金江瑞泰饮品有限公司 |
设计单位:天津中鼎纪元工程设计有限公司 |
天津市规划和自然资源局蓟州分局 |
|
地址 |
蓟州区杨津庄镇杨津庄村西20米 |
滨海新区金江路1555号203室 |
蓟州区渔阳镇迎宾大街18号 |
|
邮编 |
301906 |
300450 |
301900 |
|
电话 |
18802223317 |
13820920827 |
29188155 |
2023年1月9 日






津公网安备12010102000518号