依据《中华人民共和国城乡规划法》和住房和城乡建设部《关于城乡规划公开公示的规定》的有关要求,现将滨海新区轨道交通Z4线一期工程 航母公园站建筑设计方案总平面图进行公示。
公示时间为2023年12月18日至2023年12月26日,为期七个工作日。
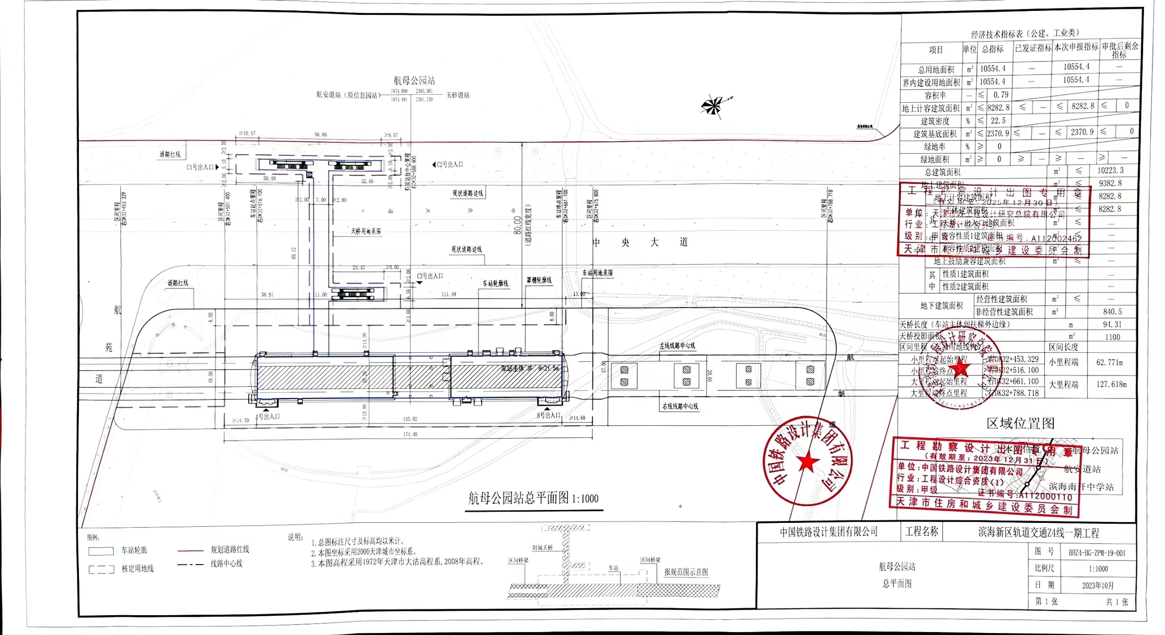
项目名称:滨海新区轨道交通Z4线一期工程 航母公园站
项目位置:航母公园站位于滨海新区中新生态城
建设单位:天津泰达城市轨道投资发展有限公司
设计单位:中国铁路设计集团有限公司
项目简介:本工程为滨海新区轨道交通Z4线一期工程的第十九座车站。本站为路侧高架三层岛式车站。车站位于滨海新区中央大道和航苑道交叉口北侧,沿中央大道呈南-北向布置。本站共设置3个出入口,A号出入口位于车站南侧,B号出入口位于车站北侧,C号出入口位于车站西侧。
本站部分管理用房及设备用房在车站主体建筑内布置。车站主体长145m,站台宽11m,站台长145m,建筑高度为21.5m。
航母公园站车站主体建筑面积9123.3㎡, C出入口及过街天桥建筑面积1100㎡,本次申报总建筑面积为10223.3㎡。
公示期间,周边单位及个人如对公示内容发表意见,请以电子邮件或电话方式反馈。
信函请寄:滨海新区于家堡融和路681号宝策大厦裙房行政许可服务中心
邮编:300450
联系人:张蛟
联系电话:022-66897929 (接听时间为 8:30—12:00,13:00-17:00)
邮 箱:gzjbhxqgs@163.com
天津市规划和自然资源局滨海新区分局
2023年12月18日
附图:建筑设计方案总平面图






津公网安备12010102000518号