依据《中华人民共和国城乡规划法》和住房和城乡建设部《关于城乡规划公开公示的规定》的有关要求,现将新建工业游接待处工程建筑设计方案总平面图进行公示。
公示时间为2023年12月4日至2023年12月12日,为期七个工作日。
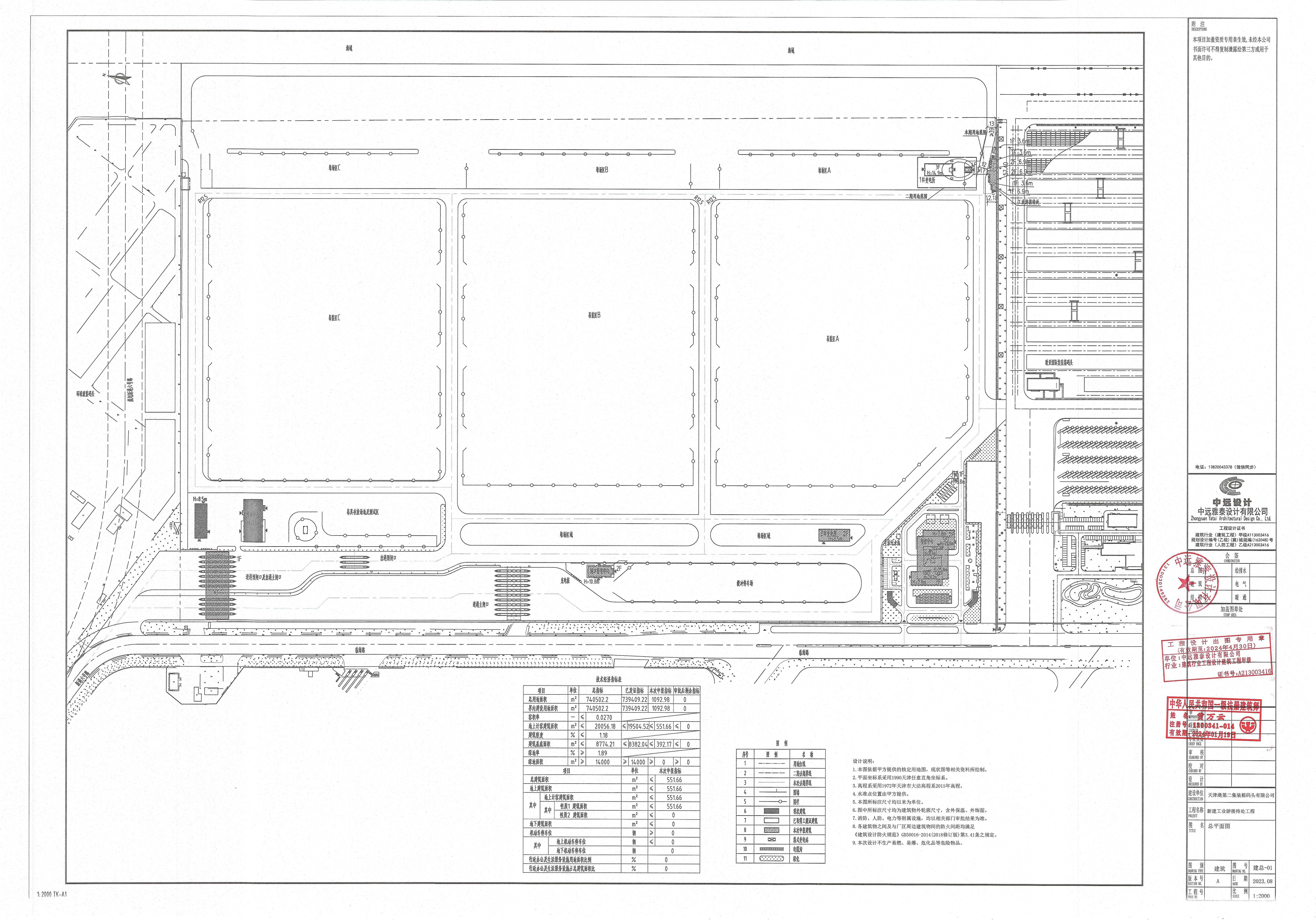
项目名称:新建工业游接待处工程
项目位置:天津市滨海北疆港区临海路1772号
建设单位:天津港第二集装箱码头有限公司
设计单位:中远雅泰设计有限公司
项目简介:本工程为新建工业游接待处工程,本次申报用地面积740502.2m2,建筑面积24223m2,建筑基底面积7304.98m2。
公示期间,周边单位及个人如对公示内容发表意见,请以电子邮件或电话方式反馈。
信函请寄:滨海新区于家堡融和路681号宝策大厦裙房行政许可服务中心
邮编:300450
联系人:许冬雪
联系电话:022-66897905 (接听时间为 8:30—12:00,13:30-17:30)
邮 箱:gzjbhxqgs@163.com
天津市规划和自然资源局滨海新区分局
2023年12月4日
附图:建筑设计方案总平面图






津公网安备12010102000518号