依据《中华人民共和国城乡规划法》和建设部《关于城乡规划公开公示的规定》等相关规定要求,该项目的建设工程规划许可证总平面图进行批前公示,公示时间为7个工作日。
建设单位名称:天津天中福建材有限公司
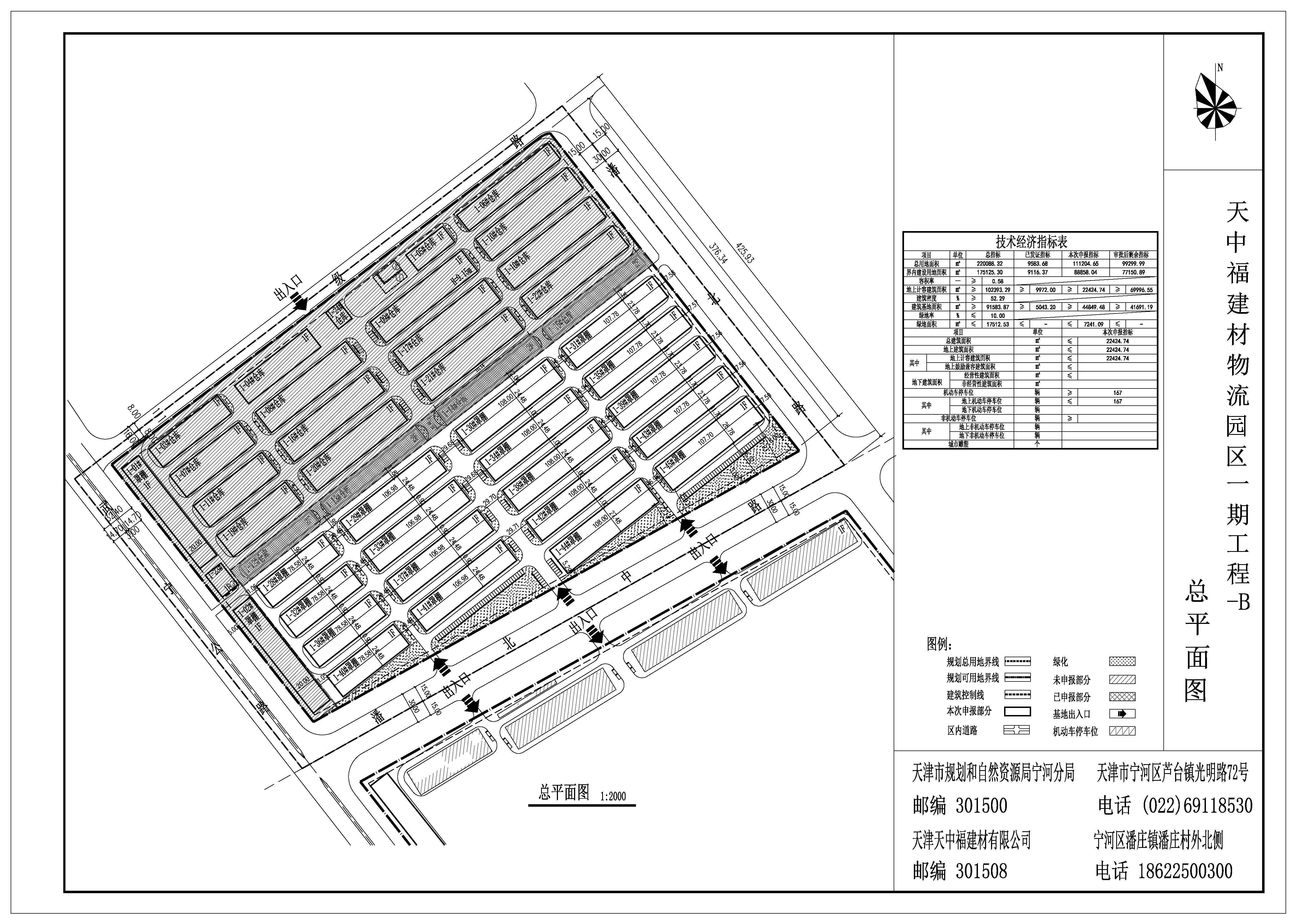
工程项目名称:天中福建材物流园区一期工程-B项目
建设规模:22424.74㎡(地上部分)0㎡(地下部分)
公示日期:2023年11月20日——2023年11月28日(7个工作日)
公示部门:天津市规划和自然资源局宁河分局
地址: 天津市宁河区芦台镇光明路72号
邮编: 301500
联系方式:69118530






津公网安备12010102000518号