依据《中华人民共和国城乡规划法》、住房和城乡建设部《关于城乡规划公开公示的规定》等相关规定要求,现将该项目建设工程设计方案总平面图进行公示,内容如下:
项目名称:津南500千伏输变电工程津南站
建设单位:国网天津市电力公司
公示时间:2023年11月15日至2023年11月23日(7个工作日)
公示地点:项目现场、市规划资源局网站、津南区人民政府网站
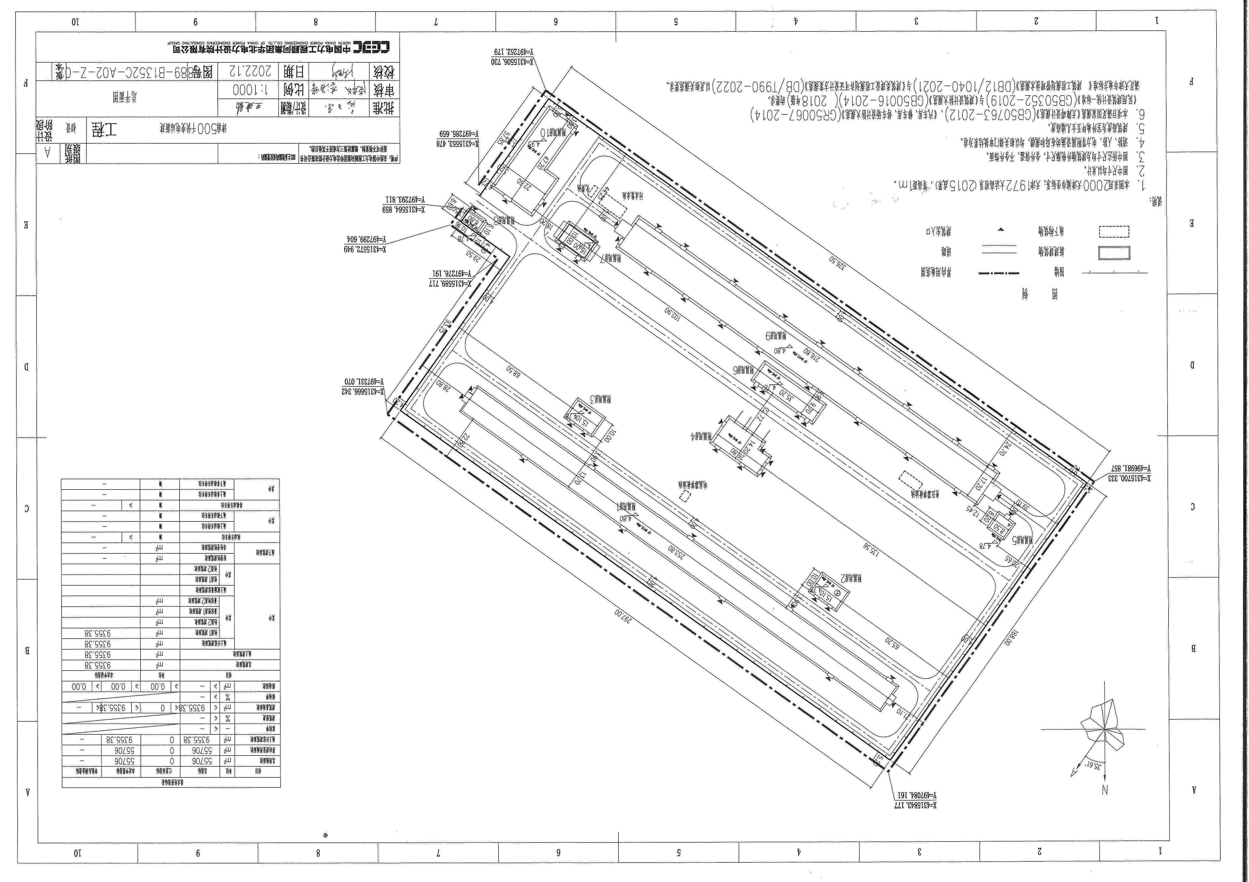
公示内容:建设工程设计方案总平面图
组织单位:天津市规划和自然资源局津南分局
(天津市津南区咸水沽镇南环路3号)
联系部门:建设项目管理科
联系电话:022-88510862
2023年11月15日
公示期间,欢迎广大群众提出宝贵意见,逾期视为无意见。
备注:最终总平面图以核发建设工程规划许可证附图为准。






津公网安备12010102000518号