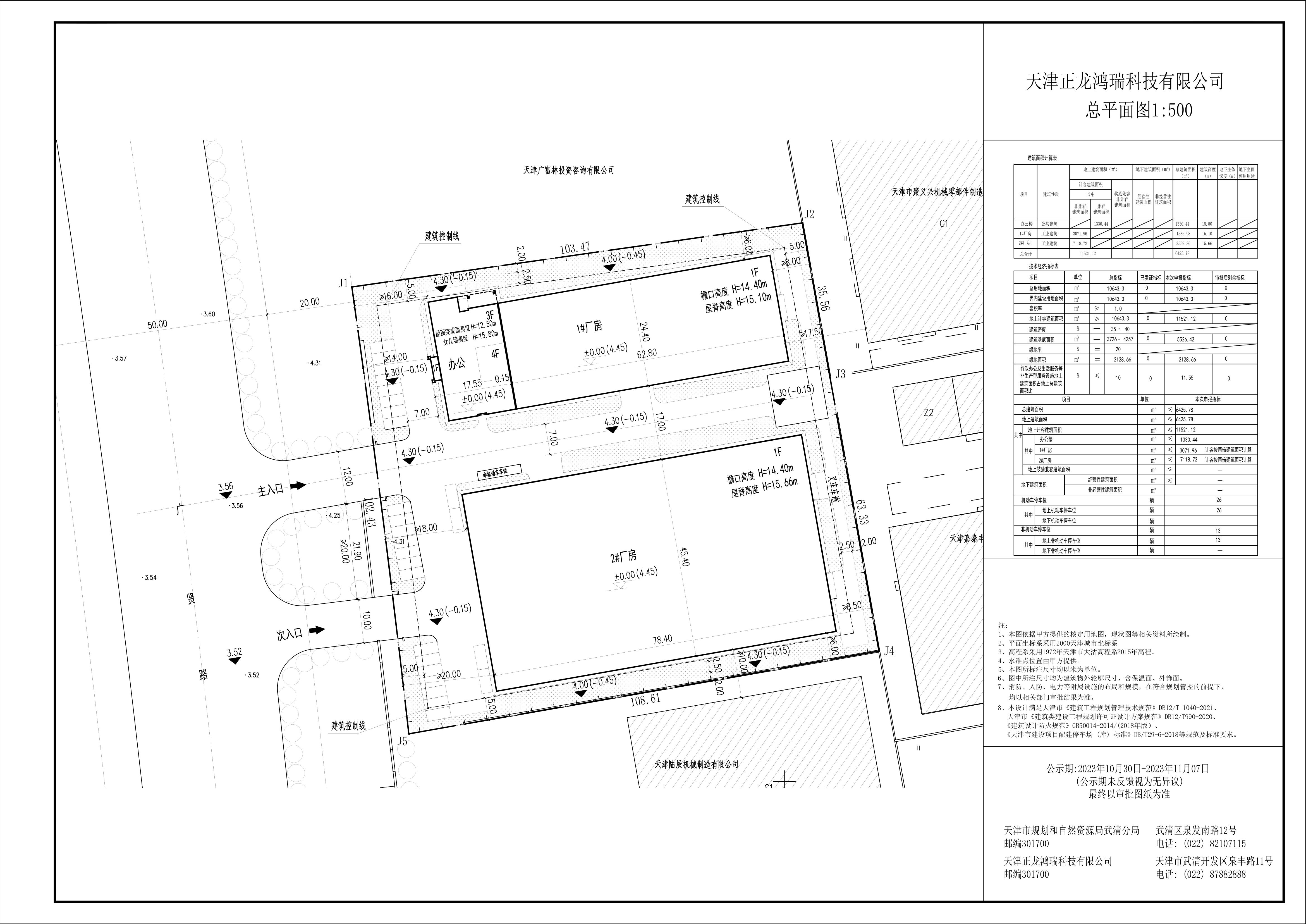
天津市规划和自然资源局武清分局按照《关于城乡规划公开公示的规定》(建规[2013]166号)以及相关规定要求,现公示 天津正龙鸿瑞科技有限公司办公楼、1#、2#厂房、围墙大门项目 建设工程设计方案总平面图。公示期限自信息发布起7个工作日。
公示期间,公众可通过发送电子邮件、信函、电话的方式实名将意见建议反馈我局。
联系电话:022-82107115
电子邮箱:sgzj-wqfjjgk@tj.gov.cn
通讯地址:天津市武清区泉发南路12号(天津市规划和自然资源局武清分局)
反馈时请注明:对 天津正龙鸿瑞科技有限公司办公楼、1#、2#厂房、围墙大门项目 建设工程设计方案总平面图公示的意见。反馈的截止日期为公示期限最后一天(邮寄方式反馈的以邮戳日期为准),逾期未反馈的,视为无意见。

注:1.最终总平面图以核发建设工程规划许可证附图为准。
2.上述相关资料由外界所提供,并以行政许可申请人所提交的形式进行公开。上述资料和信息中如有错漏,使用上述信息和资料作为依据者自行承担责任。
市规划资源局武清分局
2023年10月30日





津公网安备12010102000518号