依据《中华人民共和国城乡规划法》和住房和城乡建设部《关于城乡规划公开公示的规定》的有关要求,现将滨海新区轨道交通Z4线一期工程中新生态城站(主体及B、C、D出入口及过街天桥)项目设计方案总平面图进行公示。
公示时间为2023年7月26日至2023年8月3日,为期七个工作日。
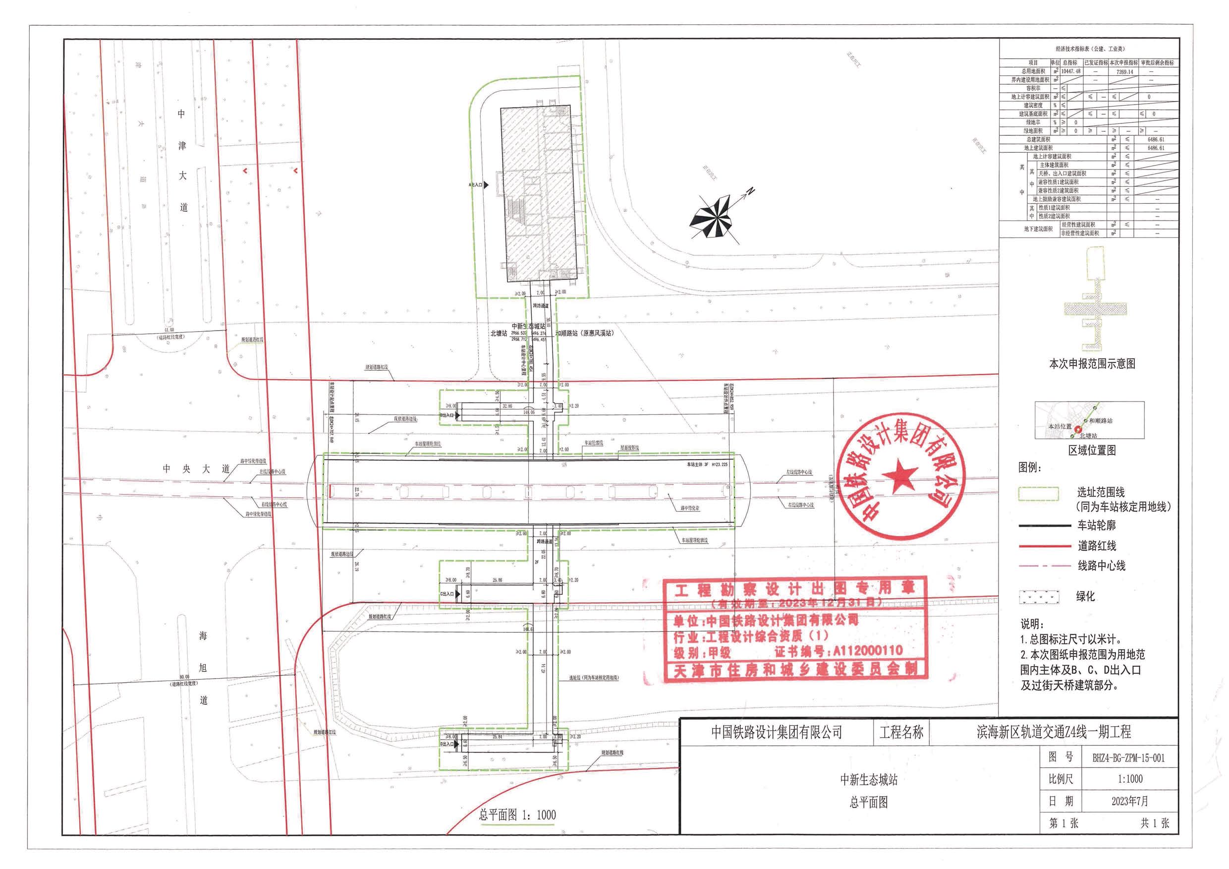
项目名称:滨海新区轨道交通Z4线一期工程中新生态城站(主体及B、C、D出入口及过街天桥)
项目位置:中新生态城站(主体及B、C、D出入口及过街天桥)位于滨海新区中新生态城
建设单位:天津泰达城市轨道投资发展有限公司
设计单位:中国铁路设计集团有限公司
项目简介:本工程为滨海新区轨道交通Z4线一期工程的第十五座车站。本站为路中高架三层侧式车站。车站位于滨海新区中新生态城中央大道和中津大道、海旭路交叉口北侧,沿中央大道呈西南-东北向布置。本站共设置4个出入口,A号出入口位于车站西侧附属用房内,B号出入口位于车站西侧,C号出入口位于车站东侧,D号出入口位于车站东侧安平路西侧。
本站部分管理用房及设备用房在车站主体建筑内布置。车站主体长144.672m,站台宽7.28m,站台长140m,建筑高度为23.225m,总建筑面积为6486.61㎡。
中新生态城站原建设工程规划许可证申报车站主体建筑面积6190㎡,本次申报调整增加B、C、D出入口及过街天桥,因此本次申报总建筑面积为6486.61㎡。其中车站主体建筑面积4912平方米,B、C、D出入口及过街天桥建筑面积1574.61平方米。
公示期间,周边单位及个人如对公示内容发表意见,请以电子邮件或电话方式反馈。
信函请寄:滨海新区于家堡融和路681号宝策大厦裙房行政许可服务中心
邮编:300450
联系人:张蛟
联系电话:022-66897929 (接听时间为 8:30—12:00,14:30-17:30)
邮 箱:gzjbhxqgs@163.com
天津市规划和自然资源局滨海新区分局
2023年7月26日
附图:建筑设计方案总平面图






津公网安备12010102000518号