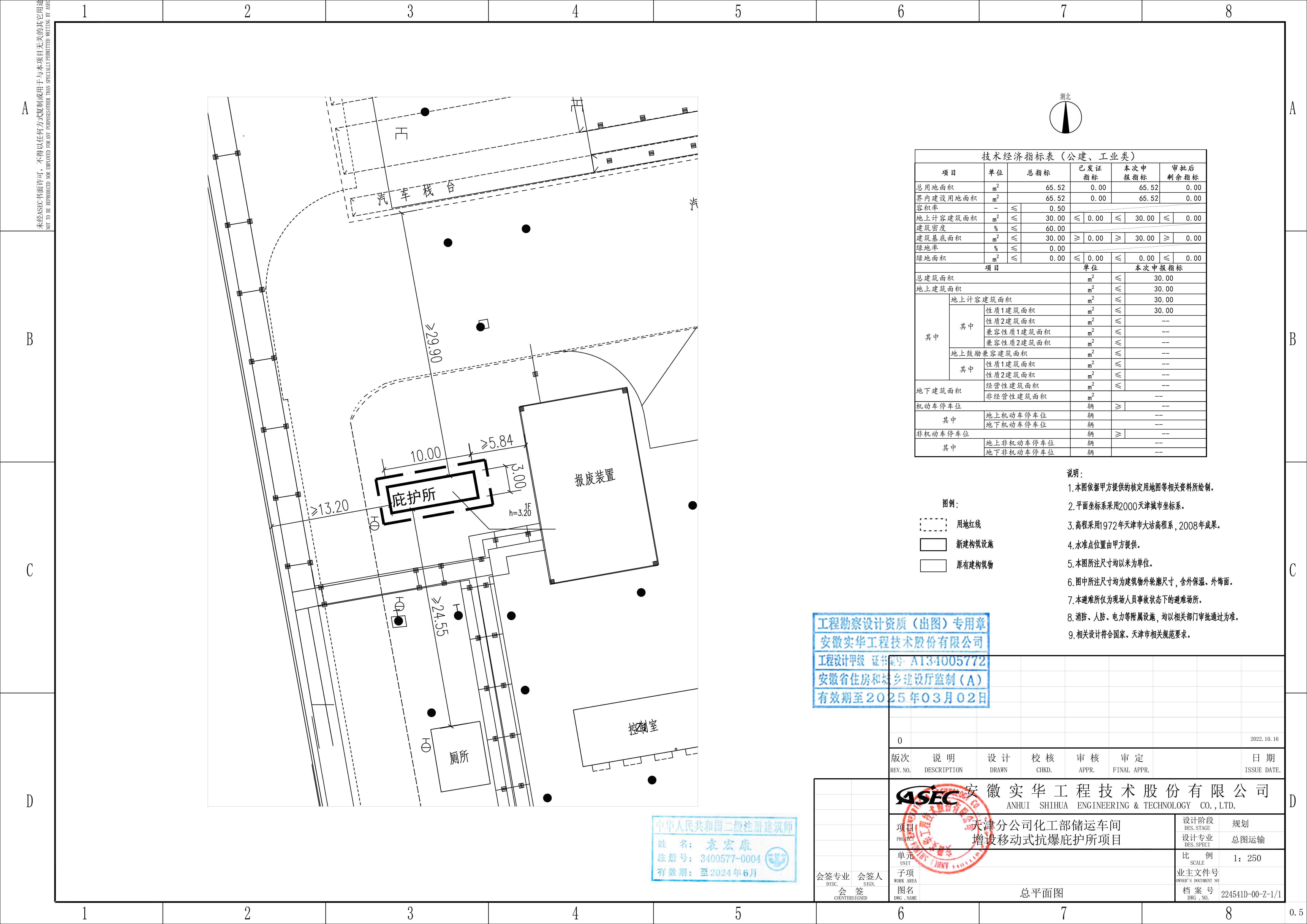
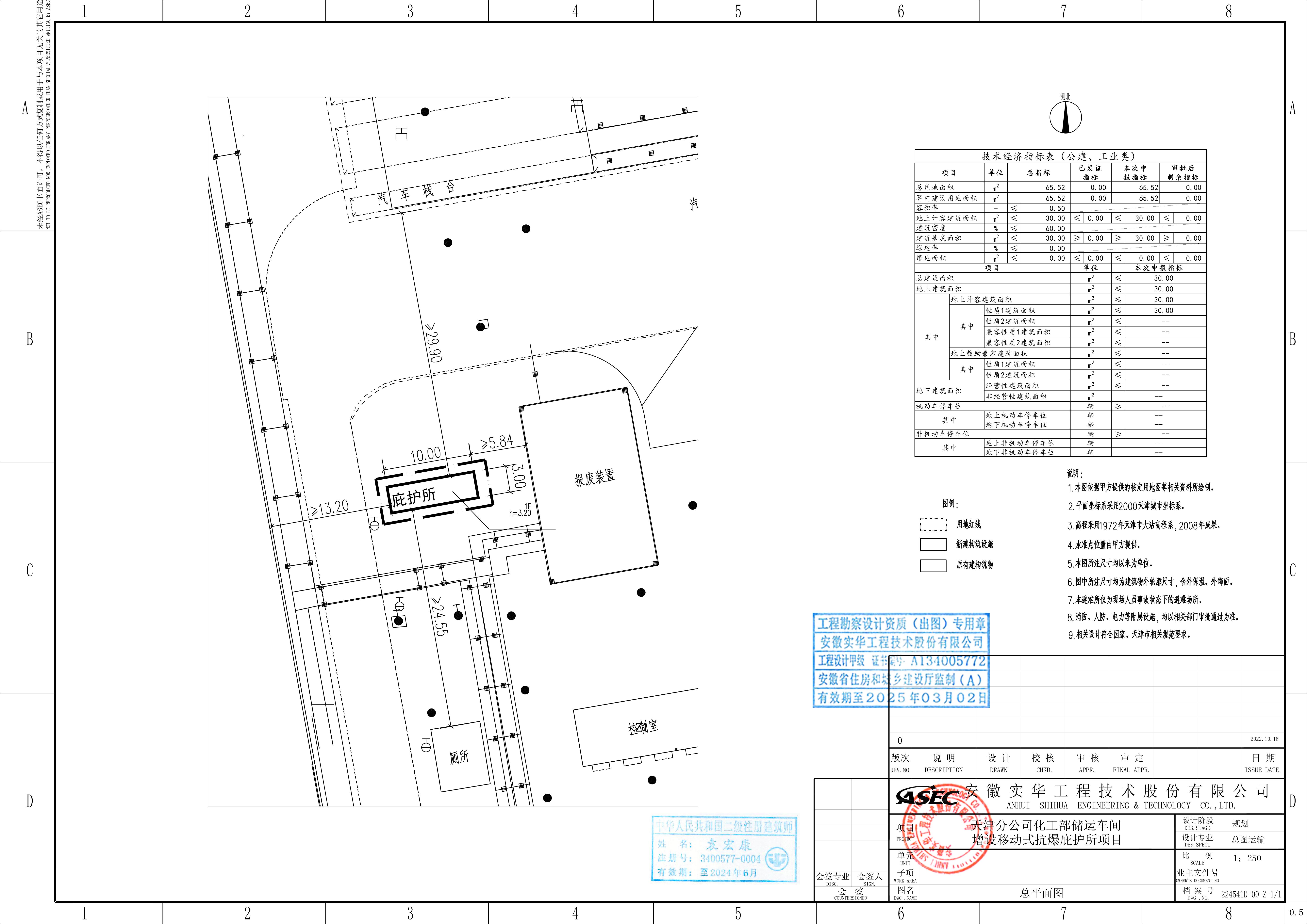
依据《中华人民共和国城乡规划法》和住房和城乡建设部《关于城乡规划公开公示的规定》的有关要求,现将天津分公司化工部储运车间增设移动式抗爆庇护所项目建筑设计方案总平面图进行公示。
公示时间为2023年5月23日至2023年5月31日,为期七个工作日。
项目名称:天津分公司化工部储运车间增设移动式抗爆庇护所项目
项目位置:滨海新区大港天津石化公司化工部
建设单位:中国石油化工股份有限公司天津分公司
设计单位:安徽实华工程技术股份有限公司
项目简介:天津分公司拟建一座移动式抗爆庇护所,高度3.2米,共占地面积30平方米,计容面积30平方米。
公示期间,周边单位及个人如对公示内容发表意见,请以电子邮件或电话方式反馈。
信函请寄:滨海新区于家堡融和路681号宝策大厦裙房行政许可服务中心
邮编:300450
联系人:王森
联系电话:022-66897754 (接听时间为 8:30—12:00,13:30-17:30)
邮 箱:gzjbhxqgs@163.com
天津市规划和自然资源局滨海新区分局
2023年5月23日
附图:建筑设计方案总平面图






津公网安备12010102000518号