依据《中华人民共和国城乡规划法》和建设部《关于城乡规划公开公示的规定》等相关规定要求,现将该项目建设工程设计方案总平面图进行公示,内容如下:
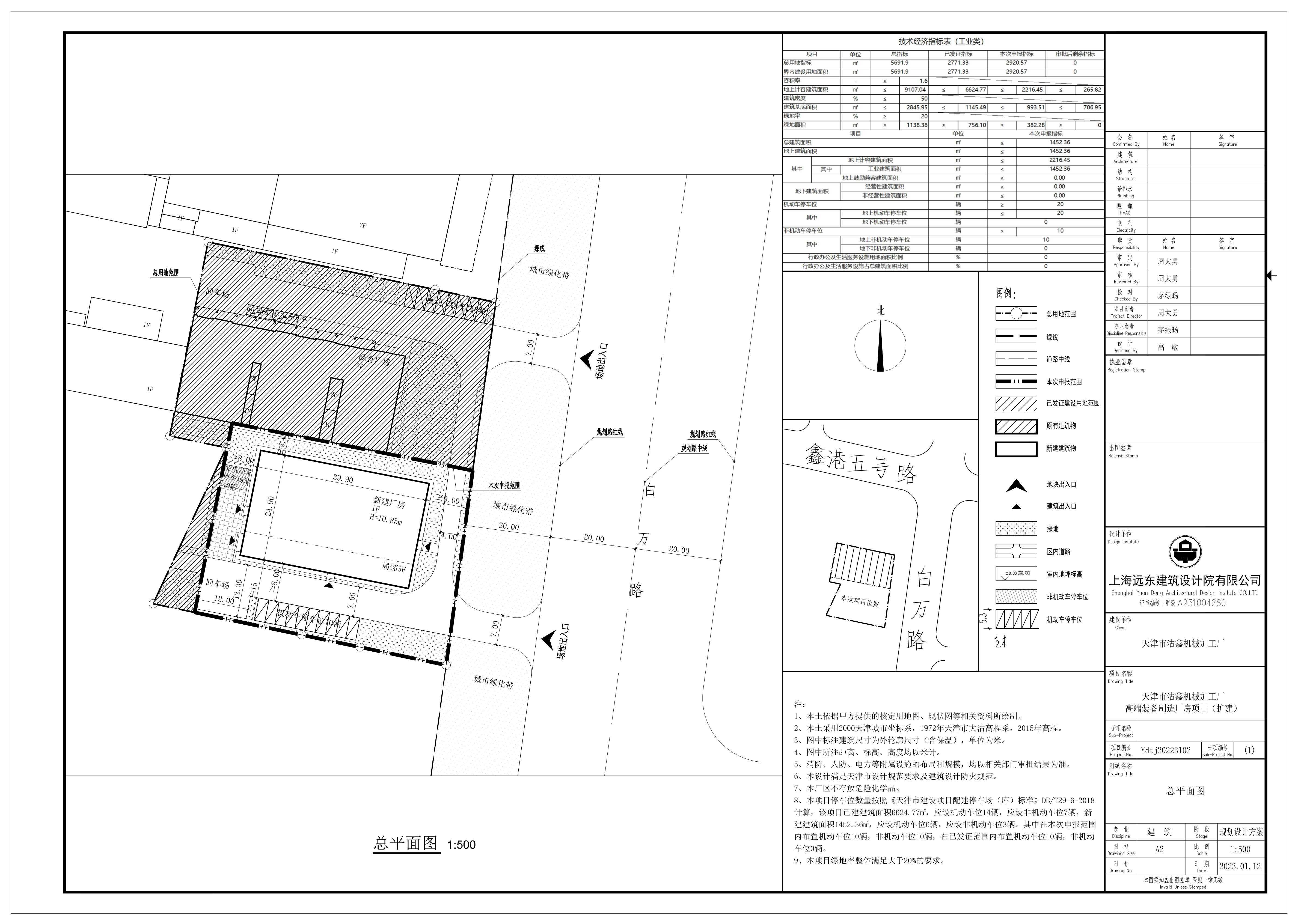
项目名称:天津市沽鑫机械加工厂高端装备制造厂房项目(扩建)
建设单位:天津市沽鑫机械加工厂
公示时间:2023年1月19日至2023年2月1日(7个工作日)
公示地点:网站及项目现场
公示内容:建设工程设计方案总平面图
组织单位:天津市规划和自然资源局津南分局
联 系 人:建设项目管理科高工 联系电话:88510862
天津市规划和自然资源局津南分局
2023年1月19日
公示期间,欢迎广大群众提出宝贵意见,逾期视为无意见。
备注:最终总平面图以核发建设工程规划许可证附图为准。






津公网安备12010102000518号