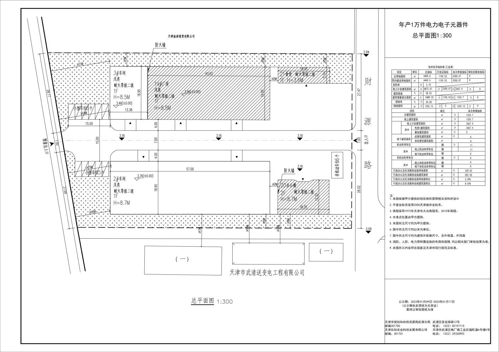
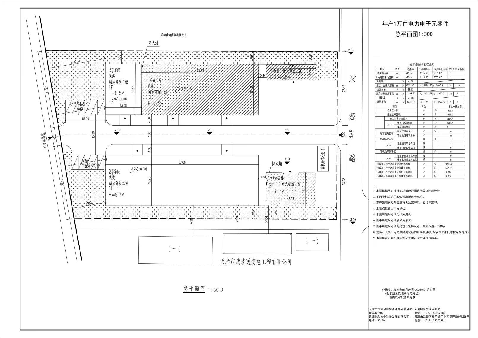
天津市规划和自然资源局武清分局按照住房城乡建设部印发的《关于城乡规划公开公示的规定》以及相关规定要求,公示建设项目 梅厂镇天津玖河农业科技发展有限公司新建车间项目 建筑设计方案。公示期限自信息发布起7个工作日。
公示期间,公众可以通过发送电子邮件、信函、电话反馈的方式提出意见。
电话:82107115
电子邮箱:sgzj-wqfjjgk@tj.gov.cn
地址:武清区杨村街泉发路南路12号
请在信封上注明:对 梅厂镇天津玖河农业科技发展有限公司新建车间项目 建筑设计方案公示的意见。

注1:上述相关资料由外界所提供、并以行政许可申请人所提交的形式进行公开。上述资料和信息中如有错漏,使用上述信息和资料作为依据者自行承担责任。
天津市规划和自然资源局武清分局
2023年1月9日





津公网安备12010102000518号