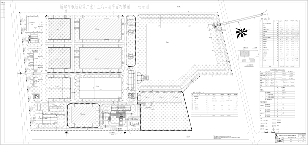
依据《中华人民共和国城乡规划法》和住房城乡建设部《关于城乡规划公开公示的规定》等相关规定要求,现将天津市泉达水务有限公司进水泵房及变配电间、净水间、送水泵房及10KV变配电间、排泥水处理车间、综合加药间、臭氧发生间、综合管理用房、机修间、仓库及厂区办公楼、传达室、餐厅及附属用房、营业大厅、进水前池、前臭氧接触池、排泥排水调节池、围墙项目建设工程设计方案总平面图公示,公示时间为7个工作日( 从2022年11月22日至2022年11月30日)。
建议意见反馈方式:可通过电子邮箱或信件反馈
电子邮箱gzjbdfjjgk@tj.gov.cn
邮寄地址:天津市宝坻区潮阳大道北侧(天津市规划和自然资源局宝坻分局)
邮政编码:301800
征求意见时间为7个工作日,逾期视为无意见。






津公网安备12010102000518号