规划公示
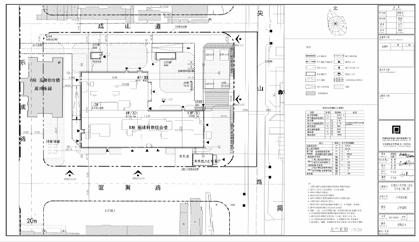
(河西区)关于天津医科大学第二医院改扩建三期工程建设工程设计方案总平面图的公示

如有意见,请于2022年8月19日前反馈,逾期视为无意见。
联系方式:
天津市规划和自然资源局河西分局
电话:28287020
地址:天津市河西区洞庭路20号
天津市规划和自然资源局河西分局
2022年8月10日
附件下载:

如有意见,请于2022年8月19日前反馈,逾期视为无意见。
联系方式:
天津市规划和自然资源局河西分局
电话:28287020
地址:天津市河西区洞庭路20号
天津市规划和自然资源局河西分局
2022年8月10日
国务院相关部委
政府机关
局属单位网站
主办单位:天津市规划和自然资源局 地址:天津市和平区曲阜道84号 邮编:300042
网站标识码:1200000077 备案编号:津ICP备19001981号
津公网安备12010102000518号
版权所有:天津市规划和自然资源局