依据《中华人民共和国城乡规划法》和住房和城乡建设部《关于城乡规划公开公示的规定》的有关要求,现将滨海新区大港港东新城(海滨园停车场)地块项目建筑设计方案总平面图进行公示。
公示时间为2022年05月20日至2022年05月30日,为期七个工作日。
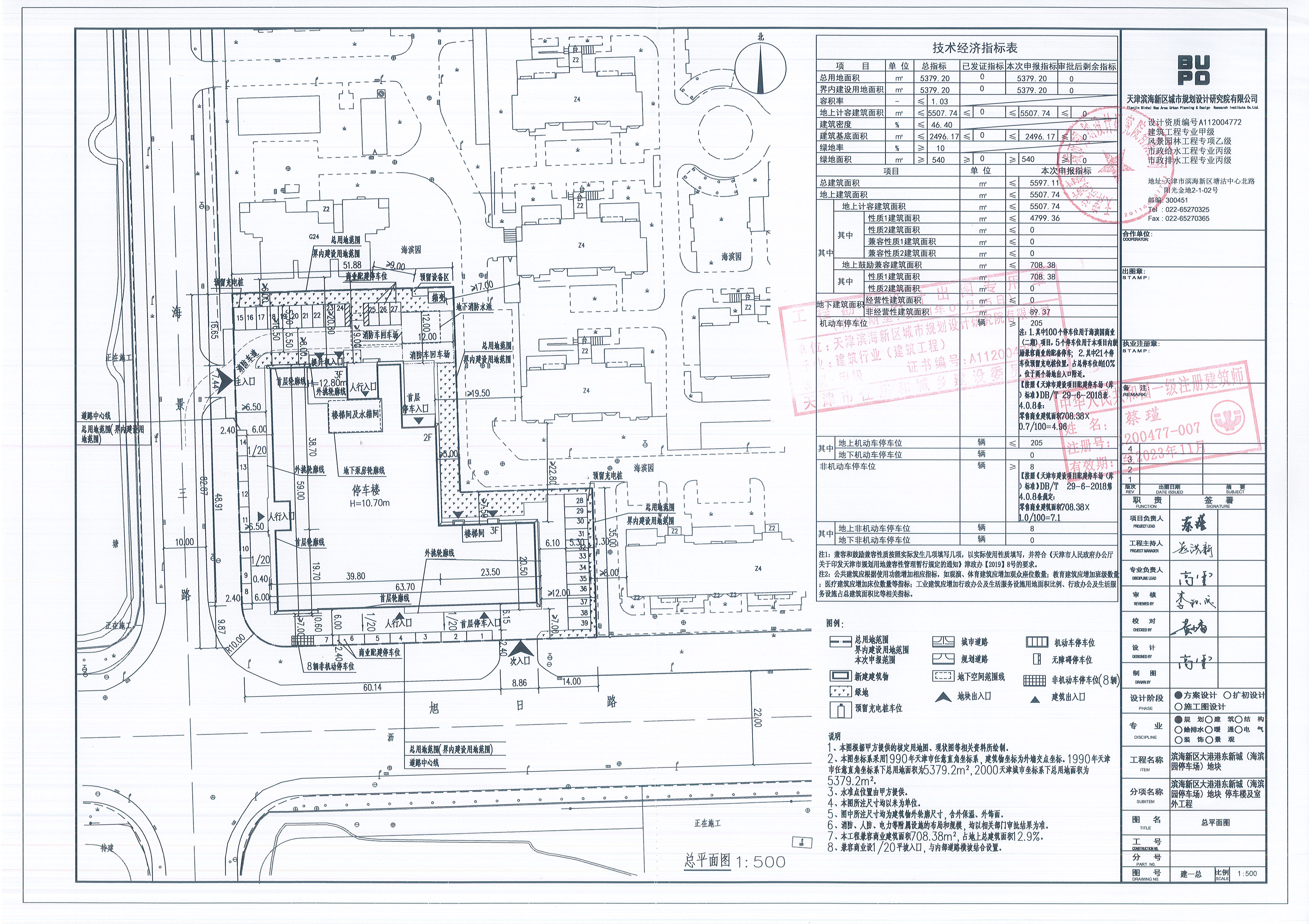
项目名称:滨海新区大港港东新城(海滨园停车场)地块项目
项目位置:天津市滨海新区大港港东新城内
建设单位:天津自贸区恒安金桥停车楼管理有限公司
设计单位:天津滨海新区城市规划设计研究院有限公司
项目简介(变更说明):项目坐落于港东新城海景三路与旭日路交口东北侧,项目占地5379.2平方米,建设205个机动车停车位,8个非机动车停车位。因停车楼使用要求,现对项目西侧出入口位置、箱式变电站和绿地布置进行相关调整内容如下:
1、箱式变电站与柴油发电机位置:将在海景三路一侧布置的箱式变电站与柴油发电机向东移至建设用地东北角处。
2、西侧出入口位置:项目西侧出入口向南移8米,该出入口距离旭日路道路红线仍满足大于70米。
3、停车位充电桩位置:原沿街停车位预留的充电桩移至总用地红线东侧停车位处。
4、绿地布置:依据现场使用要求,进行绿地布置优化。
公示期间,周边单位及个人如对公示内容发表意见,请以电子邮件或电话方式反馈。
信函请寄:滨海新区于家堡融和路681号宝策大厦裙房行政许可服务中心
邮编:300450
联系人:王森
联系电话:022-66897754 (接听时间为 8:30—12:00,13:00-17:00)
邮 箱:gzjbhxqgs@163.com
天津市规划和自然资源局滨海新区分局
2022年05月20日
附图:建筑设计方案总平面图






津公网安备12010102000518号