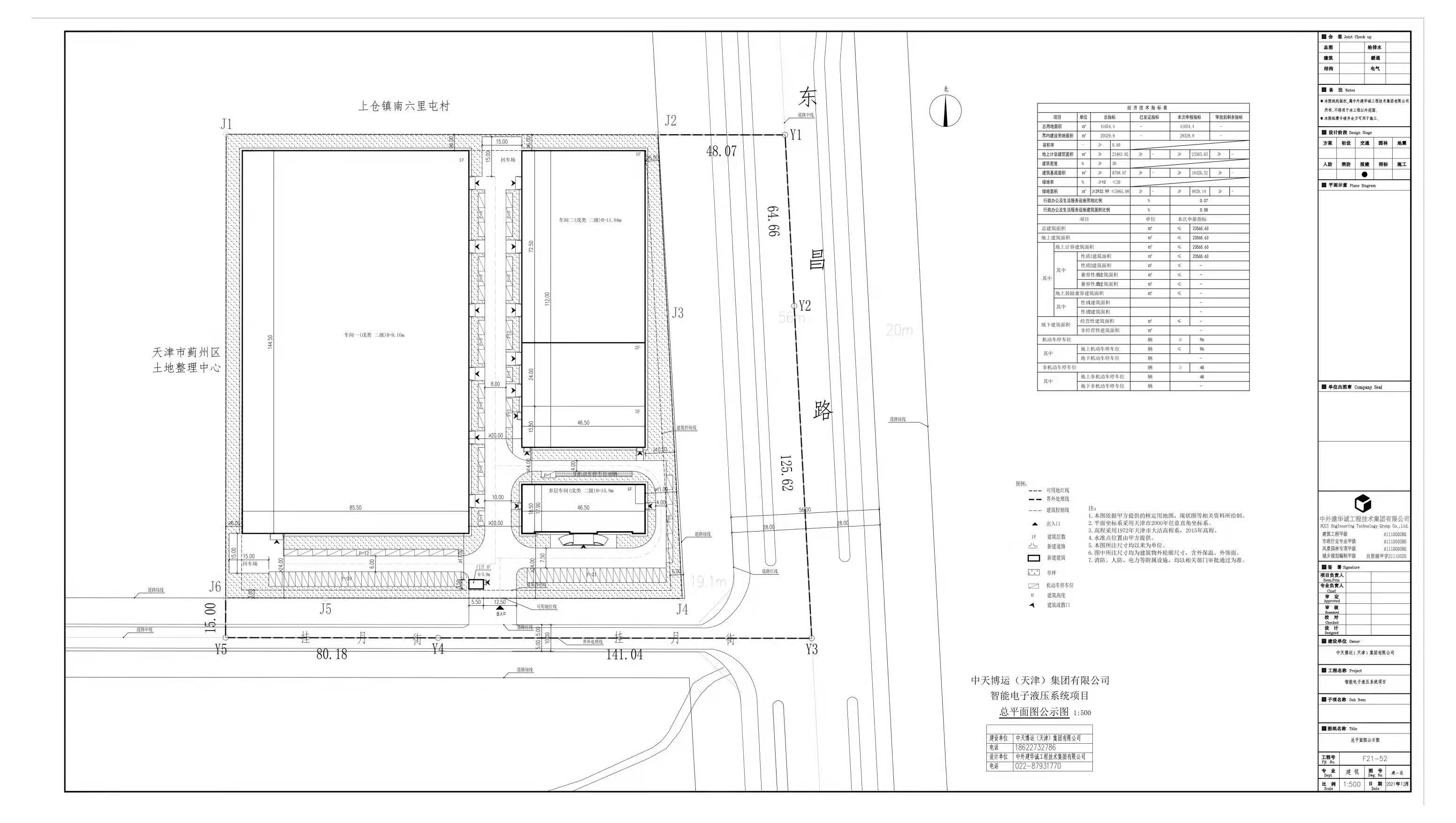
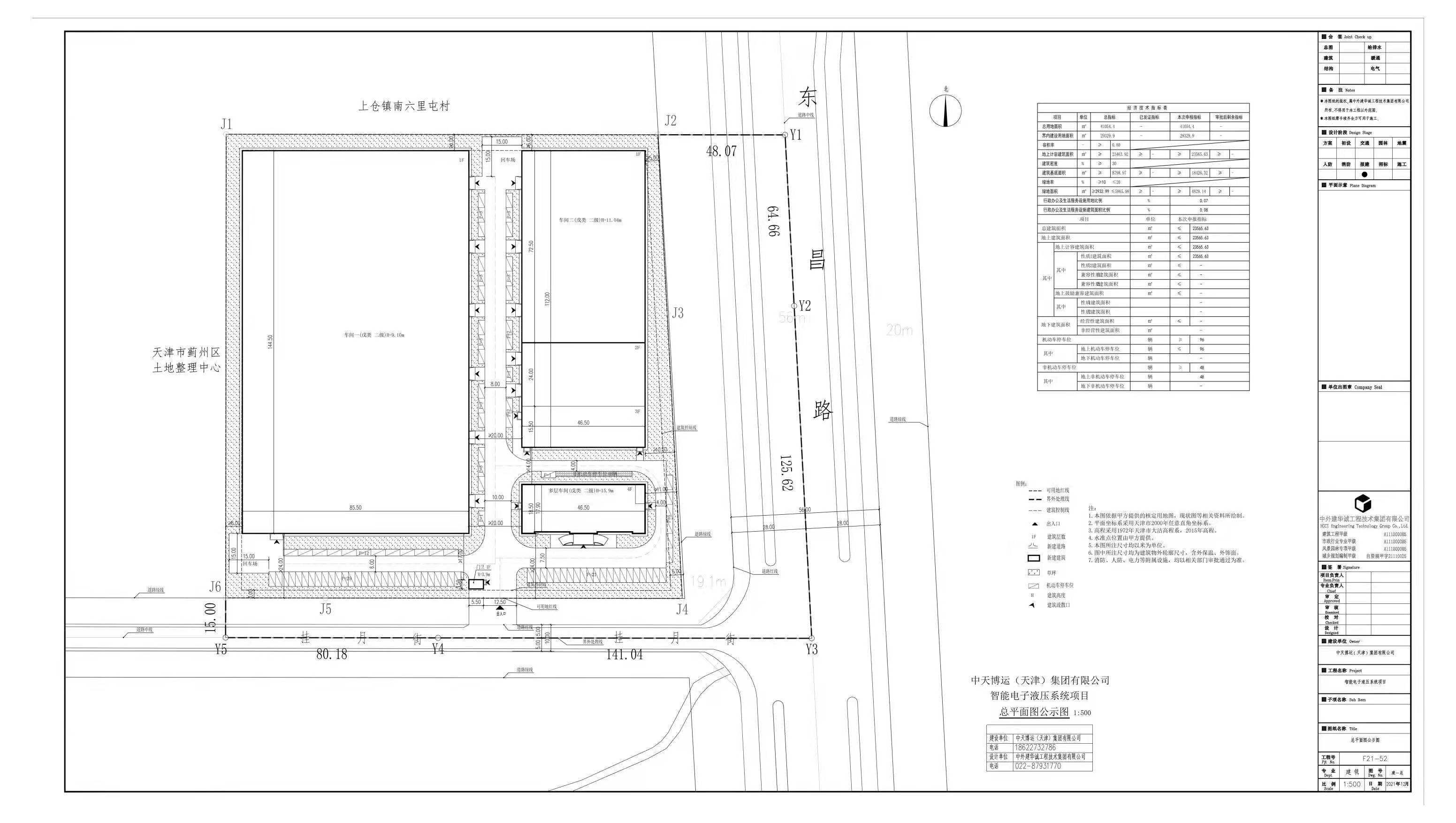
根据《中华人民共和国城乡规划法》、《中华人民共和国行政许可法》,经审核,现将中天博运(天津)集团有限公司在蓟州区东昌路西侧、挂月街北侧智能电子液压系统项目建设工程设计方案总平面草案予以批前公示,公示期为7工作日,自2021年12月29日至2022年1月7日为止。如对本设计方案草案有不同意见,请于2022年1月7日之前以书面形式将反映情况寄(送)到中天博运(天津)集团有限公司、中外建华诚工程技术集团有限公司、天津市规划和自然资源局蓟州分局。单位反映情况请加盖公章,个人反映情况请签署真实姓名和工作单位,并留下联系电话、地址、邮编,以便及时与您联系。
来信请寄 | 中天博运(天津)集团有限公司 | 中外建华诚工程技术集团有限公司 | 天津市规划和自然资源局蓟州分局 |
地址 | 蓟州区东昌路西侧、挂月街北侧 | 天津市西青区榕苑路天发科技园7-2-7 | 蓟州区迎宾路18号 |
邮编 | 301900 | 300384 | 301900 |
电话 | 15620068818 | 022-87931770 | 22870883 |
2021年 12月29日






津公网安备12010102000518号