头部背景图 头部背景图
关爱版

当前位置:首页业务频道国土空间规划规划公示

规划公示
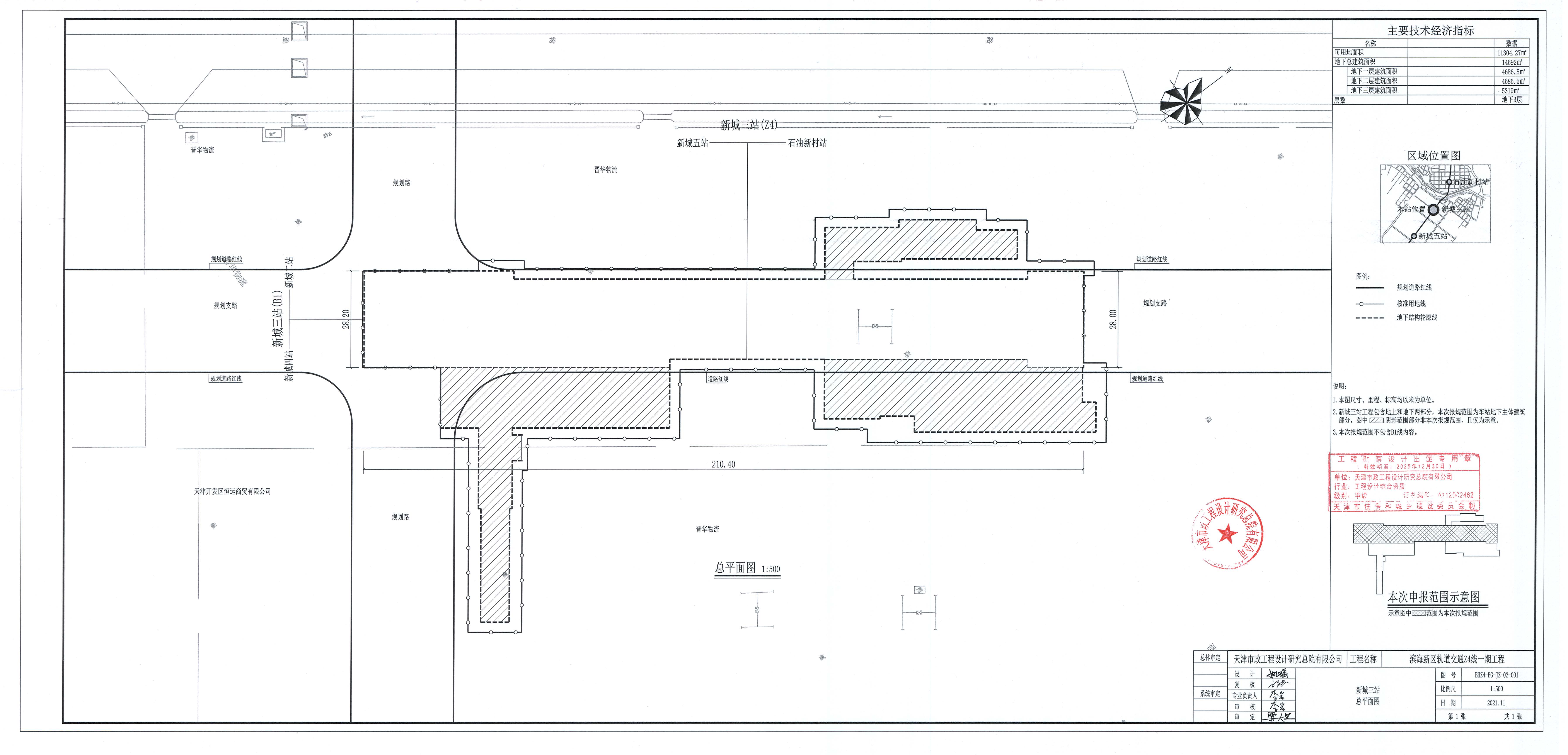
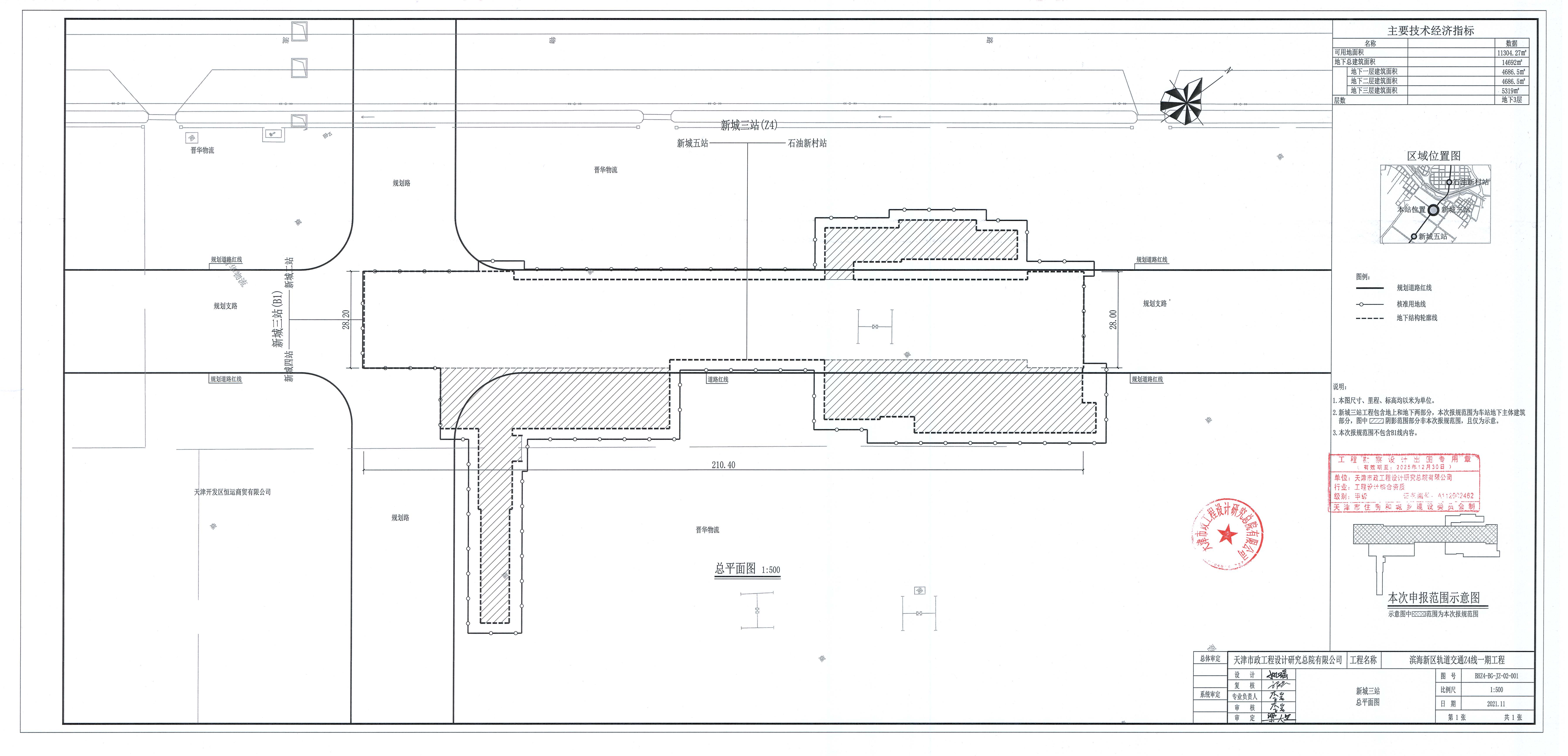
(滨海新区)关于滨海新区轨道交通Z4线一期工程新城三站项目建筑设计方案总平面图的公示
来源:天津市规划和自然资源局滨海新区分局 时间:2021-12-03 13:41

依据《中华人民共和国城乡规划法》和住房和城乡建设部《关于城乡规划公开公示的规定》的有关要求,现将滨海新区轨道交通Z4线一期工程新城三站项目建筑设计方案总平面图进行公示。

公示时间为2021年12月3日至2021年12月13日,为期七个工作日。

项目名称:滨海新区轨道交通Z4线一期工程新城三站

项目位置:本站位于物流北路向北600米的规划道路交口处,车站位于规划路中,平行于规划路南北向敷设

建设单位:天津泰达城市轨道投资发展有限公司

设计单位:天津市市政工程设计研究院

项目简介:本工程为滨海新区轨道交通Z4线一期工程新城三站,是天津滨海新区轨道交通Z4线一期工程第二座车站,与规划B1线换乘。车站位于物流北路向北600米的规划道路交口处,车站位于规划路中,平行于规划路南北向敷设。车站共设置2组风亭、3个出入口、2个独立的安全出口(其中2号安全出口兼消防专用口,与C号出入口合建),B号出入口预留与地块接驳条件。

Z4线新城三站为地下三层岛式站台车站,站台宽13.6m,有效站台计算长度为135.6m。地下一层为站厅层,地下二层为设备层,地下三层为站台层。车站主体为双柱三跨,车站主体总长度(结构外缘)为210.4m,标准段(结构外缘)宽度为23.4m,标准段(结构外缘)高度为21.49m,基坑深度为-24.74m。

新城三站原建设工程规划许可证申报总建筑面积19741㎡,包括车站地下主体建筑、车站地下附属建筑;本次申报仅为车站地下主体建筑部分,建筑面积为14692㎡,不包含车站地下附属建筑及地面建筑部分。

公示期间,周边单位及个人如对公示内容发表意见,请以电子邮件或电话方式反馈。

信函请寄:滨海新区于家堡融和路681号宝策大厦裙房行政许可服务中心

邮编:300450

联系人:谢勇   

联系电话:022-66897929   (接听时间为 8:30—12:00,13:00-17:00)        

邮  箱:gzjbhxqgs@163.com

              天津市规划和自然资源局滨海新区分局

2021年12月3日

附图:建筑设计方案总平面图



附件下载:

相关新闻:

友情链接:
党政机关

关于本站| 版权信息| 网站地图| 使用帮助| 联系我们

主办单位:天津市规划和自然资源局 地址:天津市和平区曲阜道84号 邮编:300042

网站标识码:1200000077 备案编号:津ICP备19001981号 徽标  津公网安备12010102000518号

版权所有:天津市规划和自然资源局

关于本站|版权信息|网站地图|使用帮助|联系我们

主办单位:天津市规划和自然资源局

地址:天津市和平区曲阜道84号

网站标识码:1200000077

备案编号:津ICP备19001981号 版权所有:天津市规划和自然资源局

徽标津公网安备12010102000518号

党政机关