依据《中华人民共和国城乡规划法》和住房和城乡建设部《关于城乡规划公开公示的规定》的有关要求,现将中国石油天然气股份有限公司大港石化分公司国VI汽柴油质量升级项目15万吨/年烷基化装置项目建筑设计方案总平面图进行公示。
公示时间为2021年11月10日至2021年11月18日,为期七个工作日。
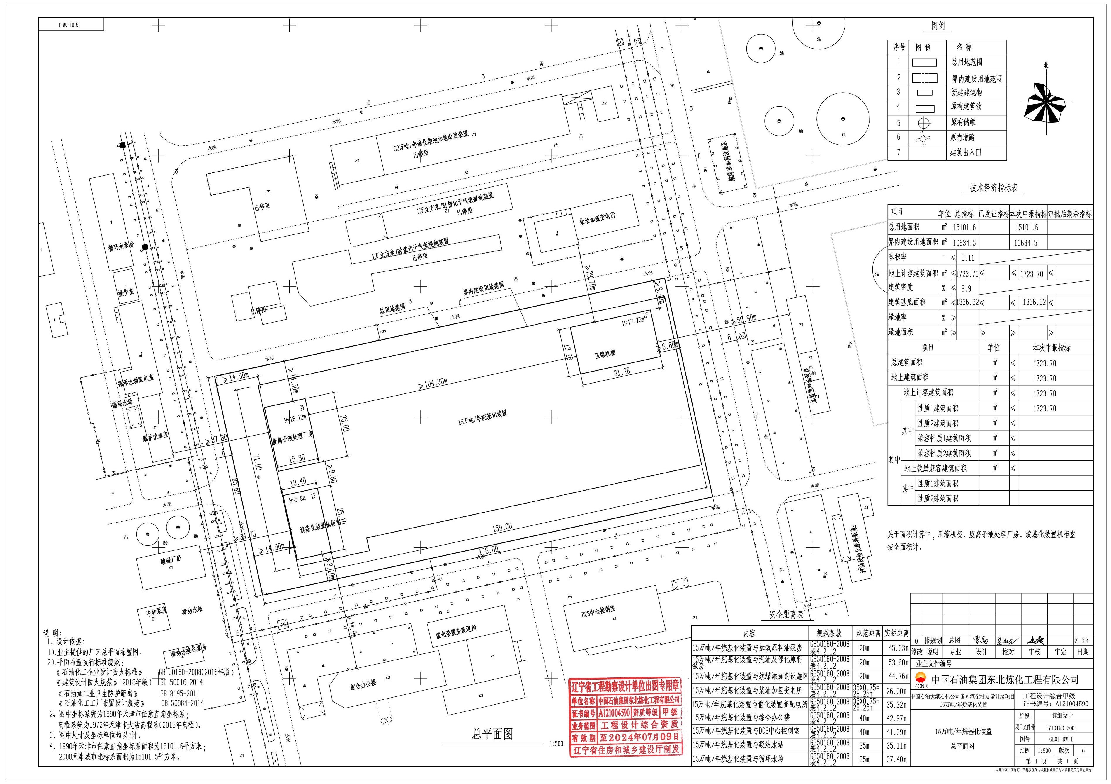
项目名称:中国石油天然气股份有限公司大港石化分公司国VI汽柴油质量升级项目15万吨/年烷基化装置
项目位置:天津市大港油田花园路东口中国石油天然气股份有限公司大港石化分公司厂区内
建设单位:中国石油天然气股份有限公司大港石化分公司
设计单位:中国石油集团东北炼化工程有限公司
项目简介:为满足国VI汽柴油质量升级要求,我公司拟实施国VI汽柴油质量升级项目15万吨/年烷基化装置,使公司汽柴油产品达到国VI标准要求。
该项目主要内容为15万吨/年烷基化装置,及配套的废离子液处理厂房、机柜室等。
项目规划总用地为15101.6m2,建筑面积为1723.70m2,建筑占地面积1336.92m2,容积率0.11,建筑密度8.9%。
公示期间,周边单位及个人如对公示内容发表意见,请以电子邮件或电话方式反馈。
信函请寄:滨海新区于家堡融和路681号宝策大厦裙房行政许可服务中心
邮编:300450
联系人:王森
联系电话:022-66897754 (接听时间为 8:30—12:00,13:00-17:00)
天津市规划和自然资源局滨海新区分局
2021年11 月10日
附图:建筑设计方案总平面图






津公网安备12010102000518号