依据《中华人民共和国城乡规划法》和住房和城乡建设部《关于城乡规划公开公示的规定》的有关要求,现将紫金庄园三期项目建筑设计方案总平面图进行公示。
公示时间为2021年9月7日至2021年9月15日,为期七个工作日。
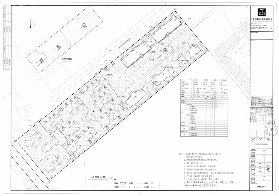
项目名称:紫金庄园三期
项目位置:天津市滨海新区大港通达街与安兴路交口西南侧
建设单位:天津凯华实业发展有限公司
设计单位:中国中建设计集团有限公司
项目简介(变更说明):
1. 原1-3号楼总建筑面积为2619.73平方米。调整后1-3号楼面建筑面积为2137.71平方米,共减少482.02平方米。
其中:1号楼原建筑面积886.63平方米。调整后建筑面积712.57平方米。
2号楼原建筑面积886.63平方米。调整后建筑面积712.57平方米。
3号楼原建筑面积864.47平方米。调整后建筑面积712.57平方米。
2. 原1-3号楼每栋3户共9户,本次变更户数未做调整。
3. 因在二期5#楼东侧增加循环道一条(已完成规划调整),现取消三期2#楼西侧循环路。
公示期间,周边单位及个人如对公示内容发表意见,请以电子邮件或电话方式反馈。
信函请寄:滨海新区于家堡融和路681号宝策大厦裙房行政许可服务中心
邮编:300450
联系人:许冬雪
联系电话:022-66897905 (接听时间为 8:30—12:00,13:00-17:00)
天津市规划和自然资源局滨海新区分局
2021年9月7日
附图:建筑设计方案总平面图
调整后图纸

调整前图纸






津公网安备12010102000518号