依据《中华人民共和国城乡规划法》和住房和城乡建设部《关于城乡规划公开公示的规定》的有关要求,现将中部新城北起步区天津港泰成置业沁芳苑二期围墙项目建筑设计方案总平面图进行公示。
公示时间为2021年8月27日至2021年9月6日,为期七个工作日。
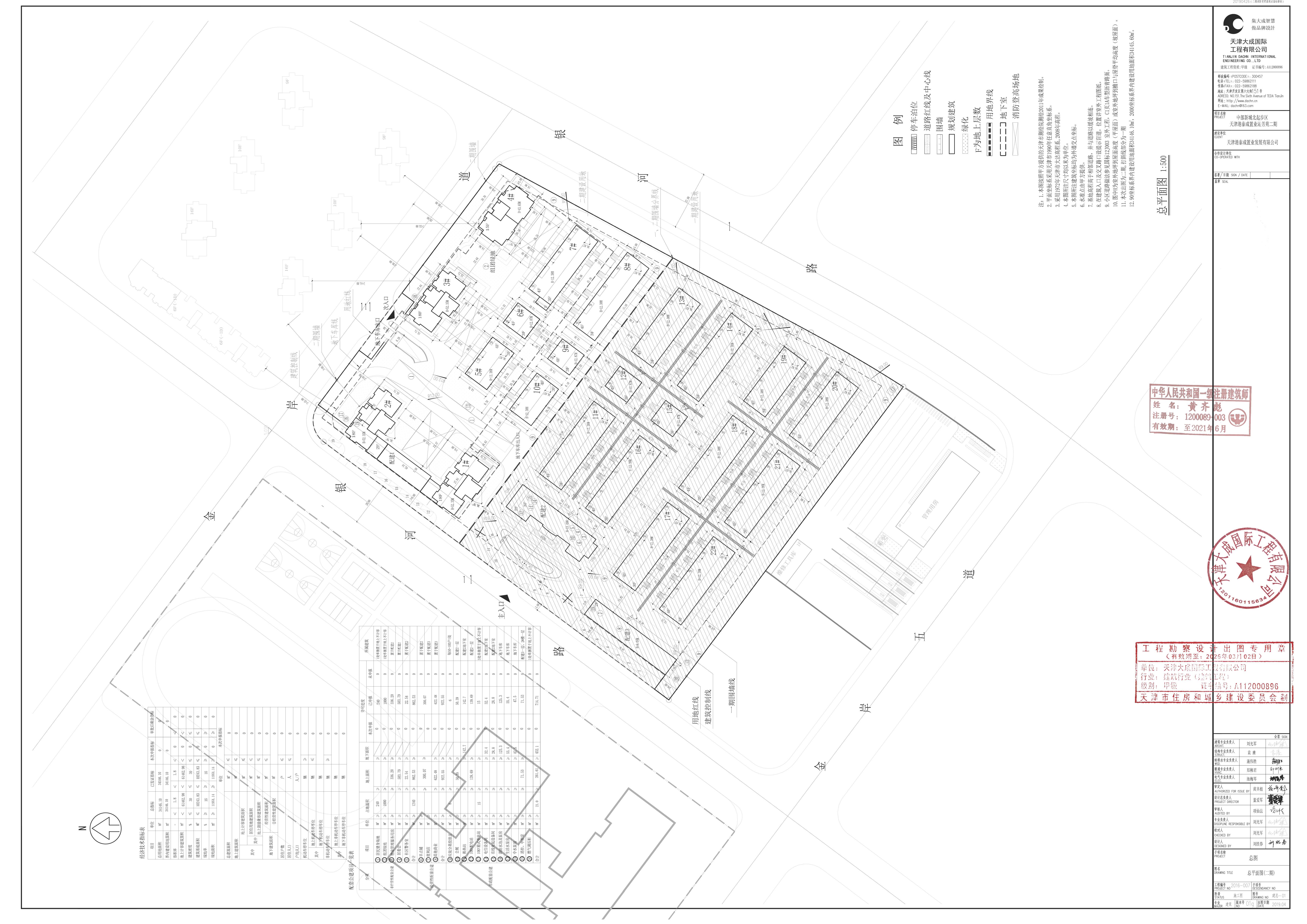
项目名称:中部新城北起步区天津港泰成置业沁芳苑二期围墙项目
项目位置:中部新城北起步区
建设单位:天津港泰成置业发展有限公司
设计单位:浙江东南未来建筑设计有限公司
项目简介:该工程位于中部新城北起步区内,项目四至为:东至银河一路、南至金岸五道、西至银河二路、北至金岸三道。项目占地面积13888.1平方米,总建筑面积38986.08平方米,建筑面积30376.79平方米,由10栋住宅楼、公建配套楼及地下车库组成。沁芳苑二期围墙采用铁艺围墙,建设总长度为242米。
公示期间,周边单位及个人如对公示内容发表意见,请以电子邮件或电话方式反馈。
信函请寄:滨海新区于家堡融和路681号宝策大厦裙房行政许可服务中心
邮编:300450
联系人:张升鹏
联系电话:022-66897815 (接听时间为 8:30—12:00,13:00-17:00)
天津市规划和自然资源局滨海新区分局
2021年8月27日
附图:建筑设计方案总平面图






津公网安备12010102000518号