依据《中华人民共和国城乡规划法》和住房和城乡建设部《关于城乡规划公开公示的规定》的有关要求,现将天津市滨海新区有机废弃物综合利用处置项目建筑设计方案总平面图进行公示。
公示时间为2021年6月3日至2021年6月11日,为期七个工作日。
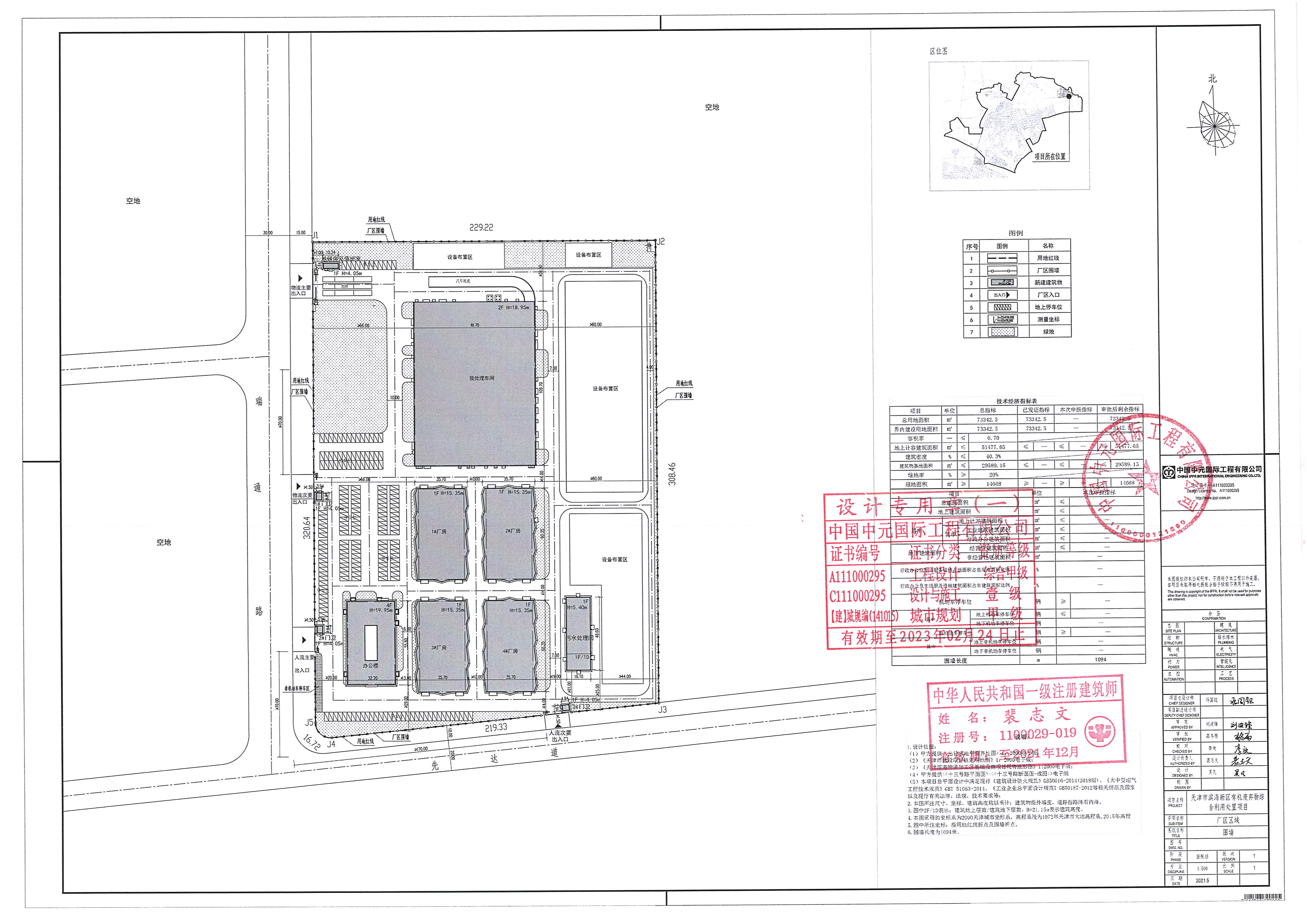
项目名称:天津市滨海新区有机废弃物综合利用处置项目
项目位置:滨海新区杨家泊镇物流加工区1号
建设单位:天津德丰利胜固体废弃物处理有限公司
设计单位:中国中元国际工程有限公司
项目简介: 天津市滨海新区有机废弃物综合利用处置项目位于天津市滨海新区瑞通路以东、先达道以北。项目建成后,日处理餐饮垃圾250t/d,厨余垃圾150t/d,地沟油50t/d,棕榈油、统一油共52t/d,肯德基油5t/d,炸货油6t/d,粪便100t/d,污泥300t/d。建设内容包括综合楼、污水处理系统(含综合泵房)、预处理车间、1#/2#/3#/4#标准化厂房、1#/2#/3#门卫、地磅房及值班室,其中设备布置区的布置要根据工艺要求确定。厂区建设用地面积73342.5平方米,用地性质为二类工业用地。用地长方型,东西长约229米,南北长约320米, 厂区西侧设置3个出入口,与瑞通路相接,厂区南侧设置一个出入口,与先达道路相接。
本项目采用铁艺花饰栏杆钢筋混凝土围墙,围墙做法参12J003-F4-3。钢筋混凝土围墙饰面采用浅灰色无机涂料,围墙总长度为1038m,高度2.2m。
公示期间,周边单位及个人如对公示内容发表意见,请以电子邮件或电话方式反馈。
信函请寄:滨海新区于家堡融和路681号宝策大厦裙房行政许可服务中心
邮编:300450
联系人:张升鹏
联系电话:022-66897815 (接听时间为 8:30—12:00,13:00-17:00)
天津市规划和自然资源局滨海新区分局
2021年6月3日
附图:建筑设计方案总平面图






津公网安备12010102000518号