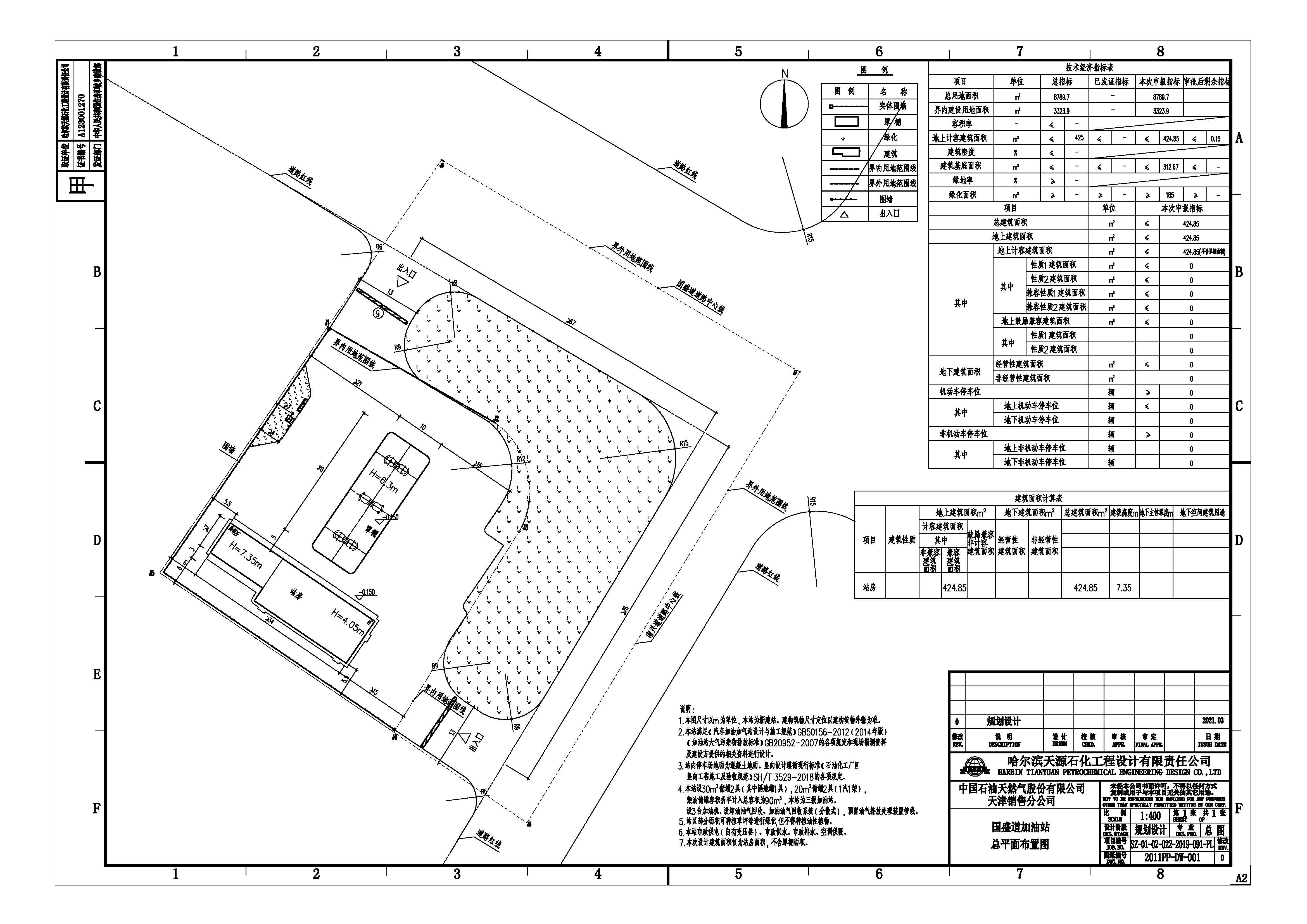
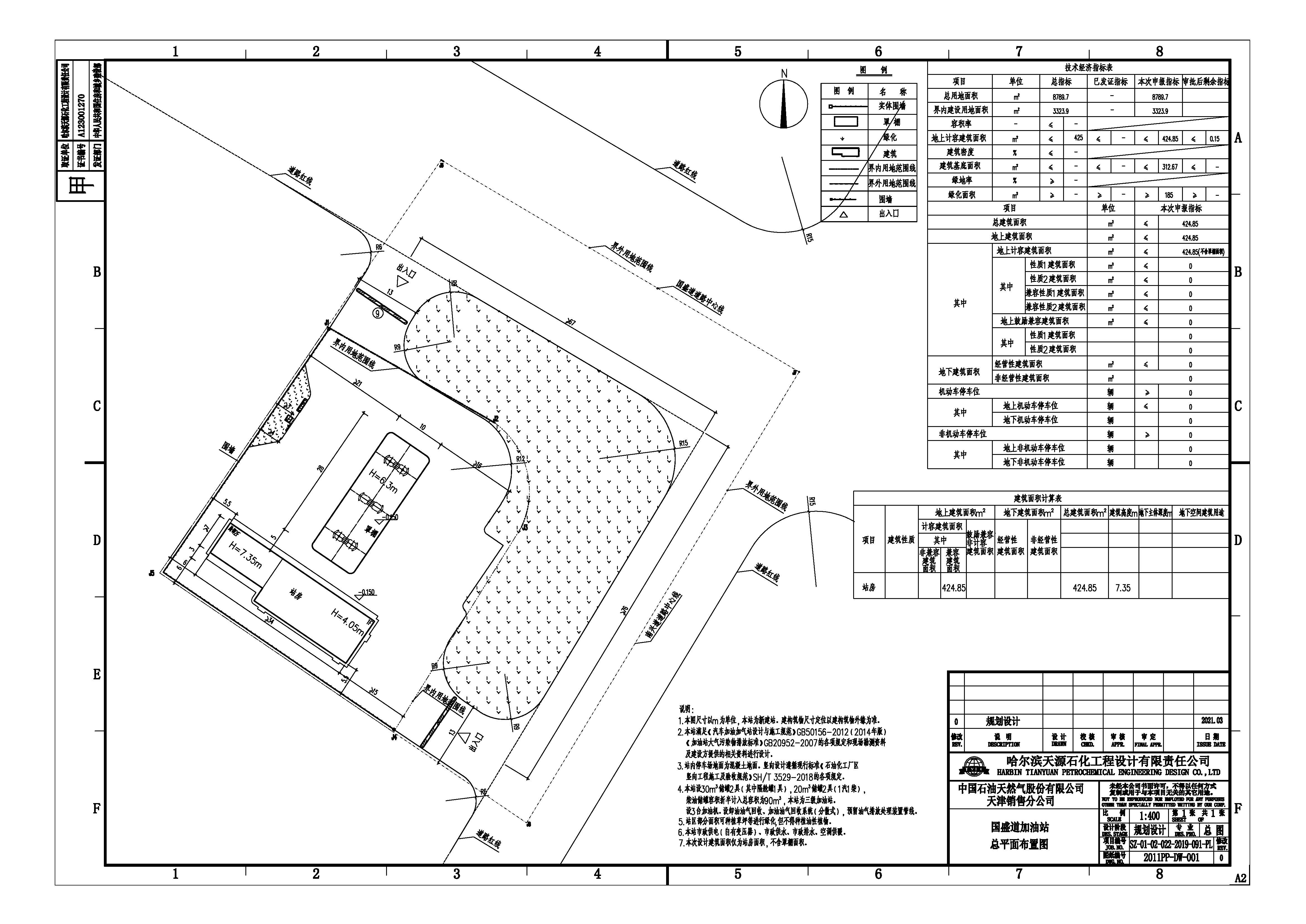
依据《中华人民共和国城乡规划法》和建设部《关于城乡规划公开公示的规定》等相关规定要求,现将该项目建设工程设计方案总平面图进行公示,内容如下:
项目名称:中国石油天然气股份有限公司天津石油分公司国盛道加油站项目
建设单位:中国石油天然气股份有限公司天津销售分公司
公示时间:2021年3月31日至2021年4月9日(7个工作日)
公示地点:中国石油天然气股份有限公司天津石油分公司国盛道加油站项目现场
公示内容:建设工程设计方案总平面图
组织单位:天津市规划和自然资源局津南分局
联系人:任焓玮 联系电话:88510862
公示期间,欢迎广大群众提出宝贵意见,逾期视为无意见。
备注1:该项目最终总平面以规划审批为准
天津市规划和自然资源局津南分局
2021年3月31日






津公网安备12010102000518号