依据《中华人民共和国城乡规划法》和住房和城乡建设部《关于城乡规划公开公示的规定》的有关要求,现将景旭名邸项目建筑设计方案总平面图进行公示。
公示时间为2020年10月30日至2020年11月9日,为期七个工作日。
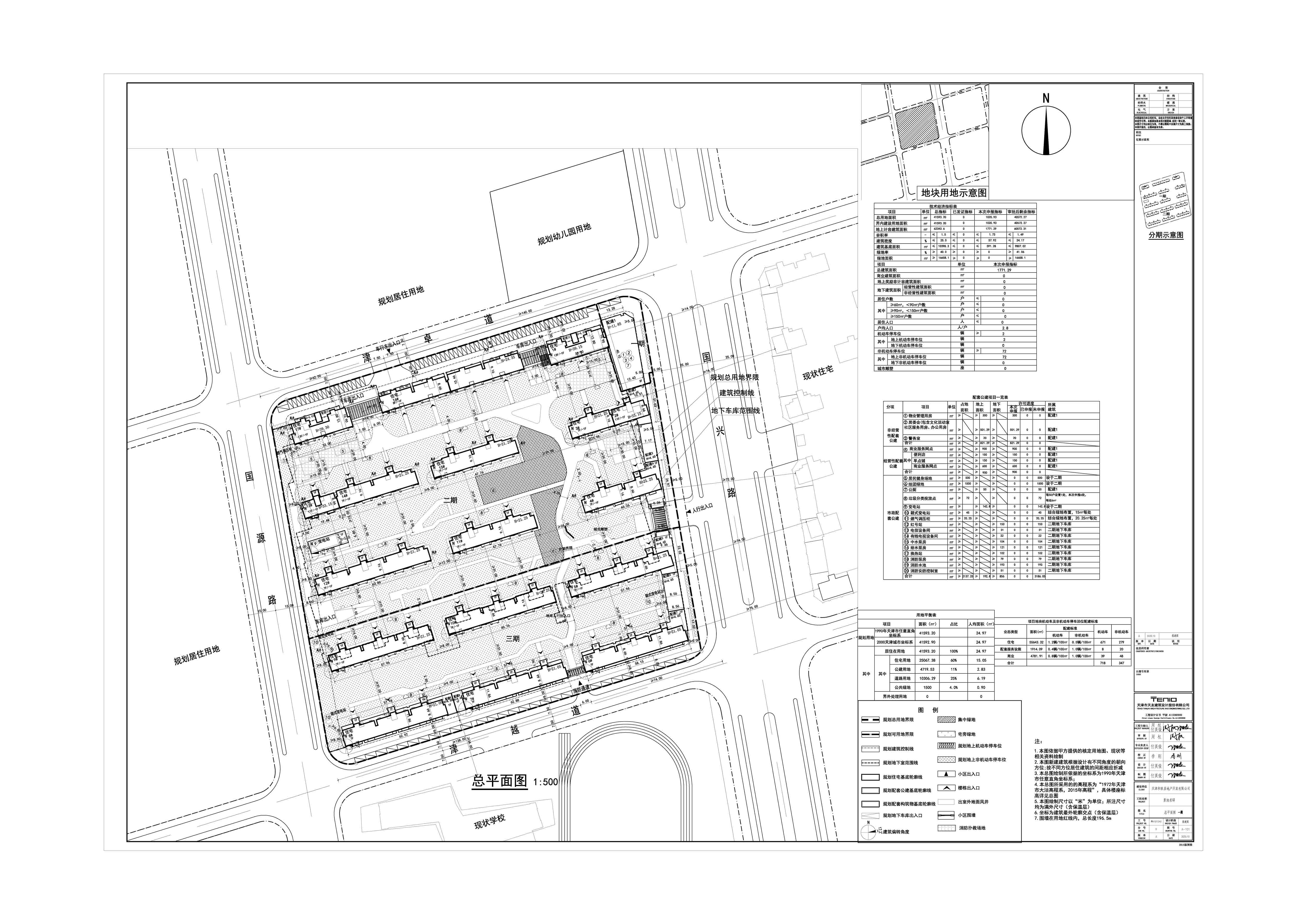
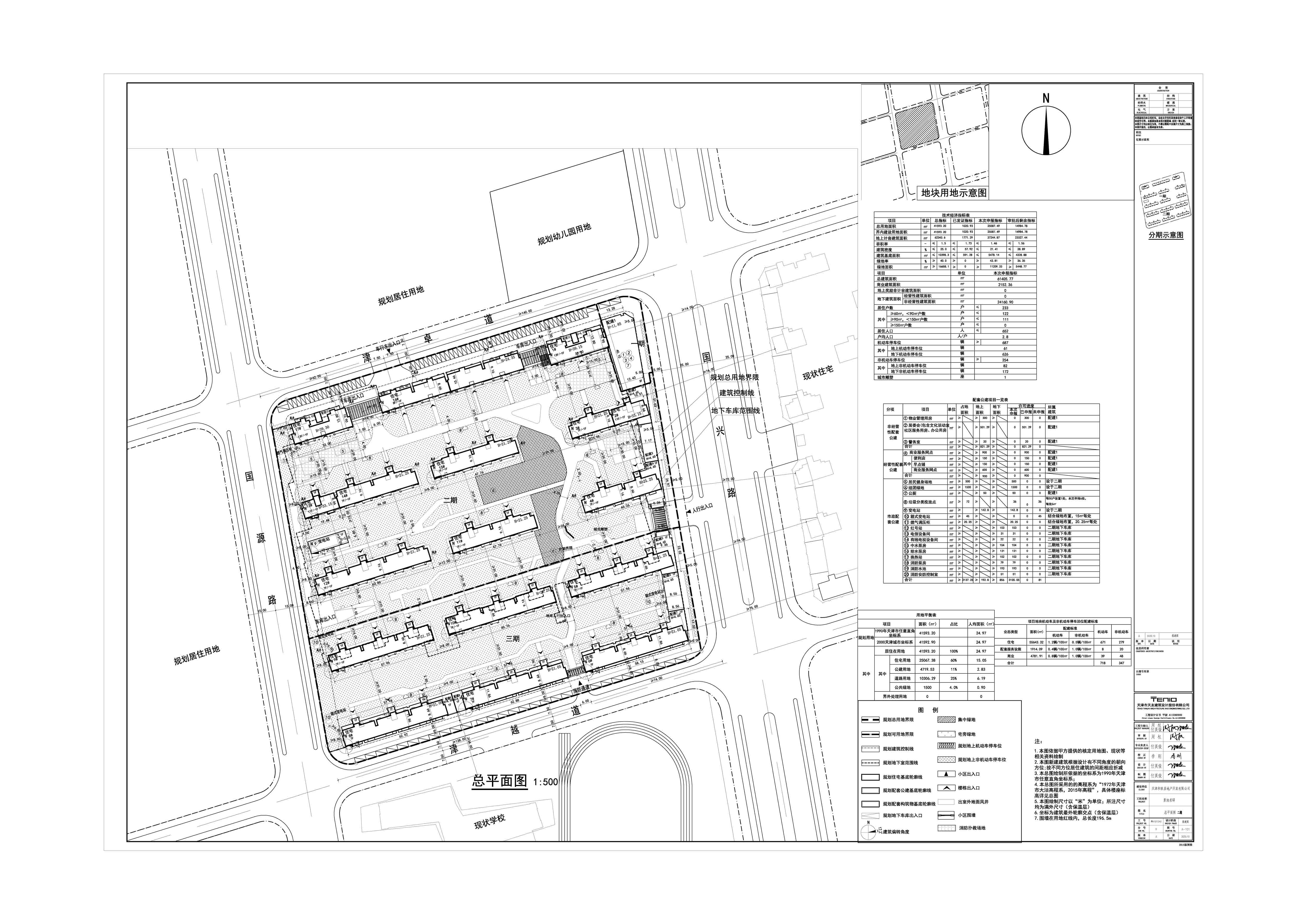
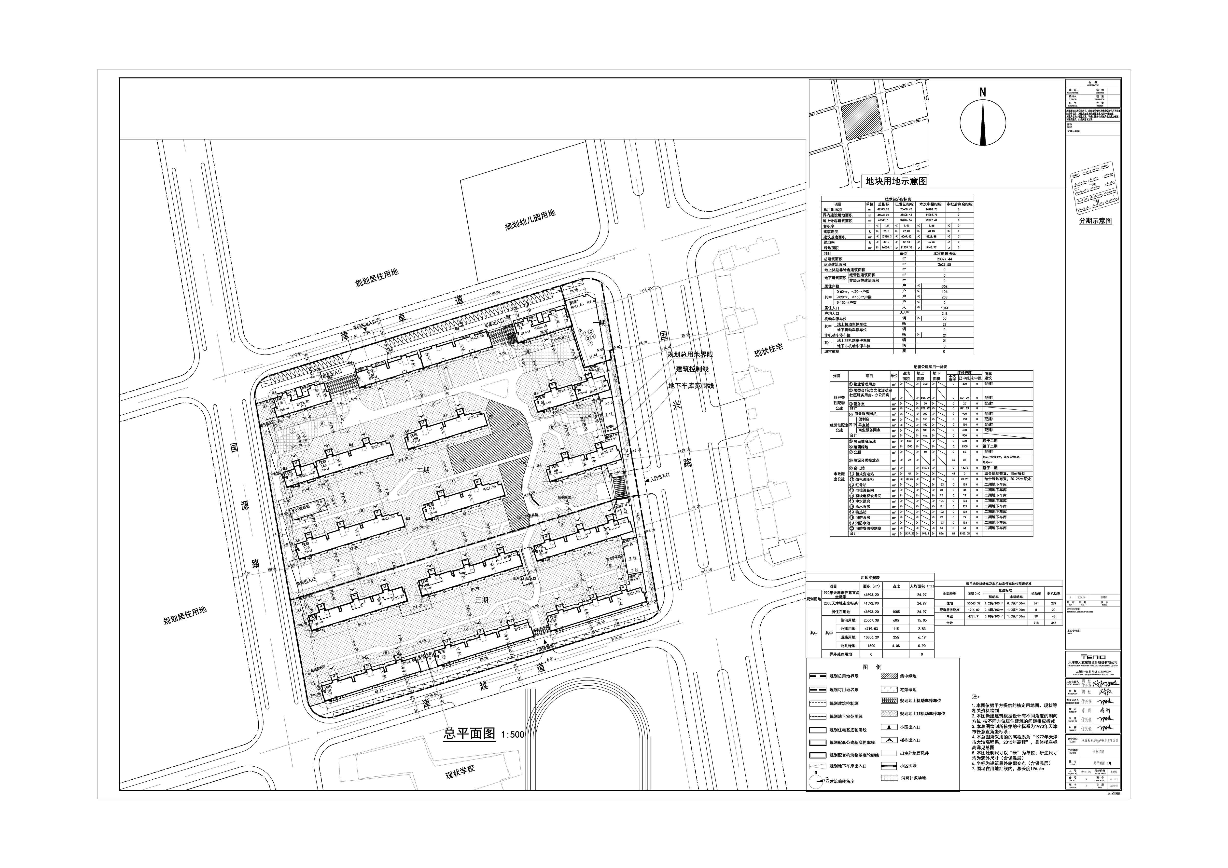
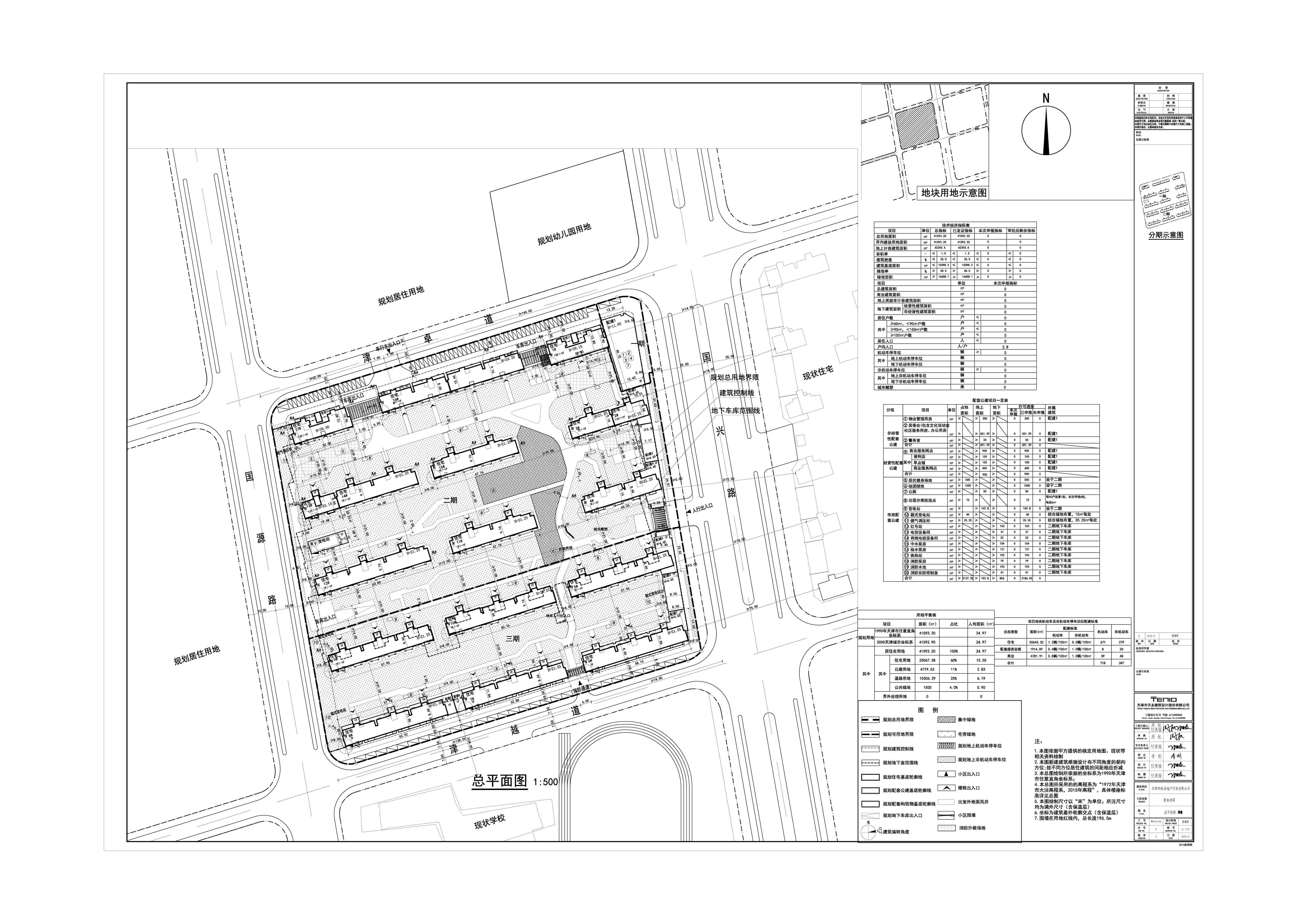
项目名称:景旭名邸
项目位置:滨海新区塘沽新城镇,东至国兴路、南至津越道、西至国源路、北至津卓道
建设单位:天津和胜房地产开发有限公司
设计单位:天津市天友建筑设计股份有限公司
项目简介(变更说明):
1、原一期规证拆分为一期、三期两个规证。
2、总图按规划验收要求套景观主要道路。
3、单元门头深化后局部调整。
4、17号楼屋顶水箱间造型调整。
5、新报围墙报规。
6、明确排风井位置,标明图例。
公示期间,周边单位及个人如对公示内容发表意见,请以电子邮件或电话方式反馈。
信函请寄:滨海新区于家堡融和路681号宝策大厦裙房行政许可服务中心
邮编:300450
联系人:许冬雪
联系电话:022-66897905 (接听时间为8:30-12:00,13:00-17:00)
天津市规划和自然资源局滨海新区分局
2020年10月30日
附图:建筑设计方案总平面图
调整后图纸
一期

二期

三期

围墙

调整前图纸






津公网安备12010102000518号