依据《中华人民共和国城乡规划法》和住房和城乡建设部《关于城乡规划公开公示的规定》的有关要求,现将欣嘉园5号地(欣丰苑)项目建筑设计方案总平面图进行公示。
公示时间为2020年10月19日至2020年10月27日,为期七个工作日。
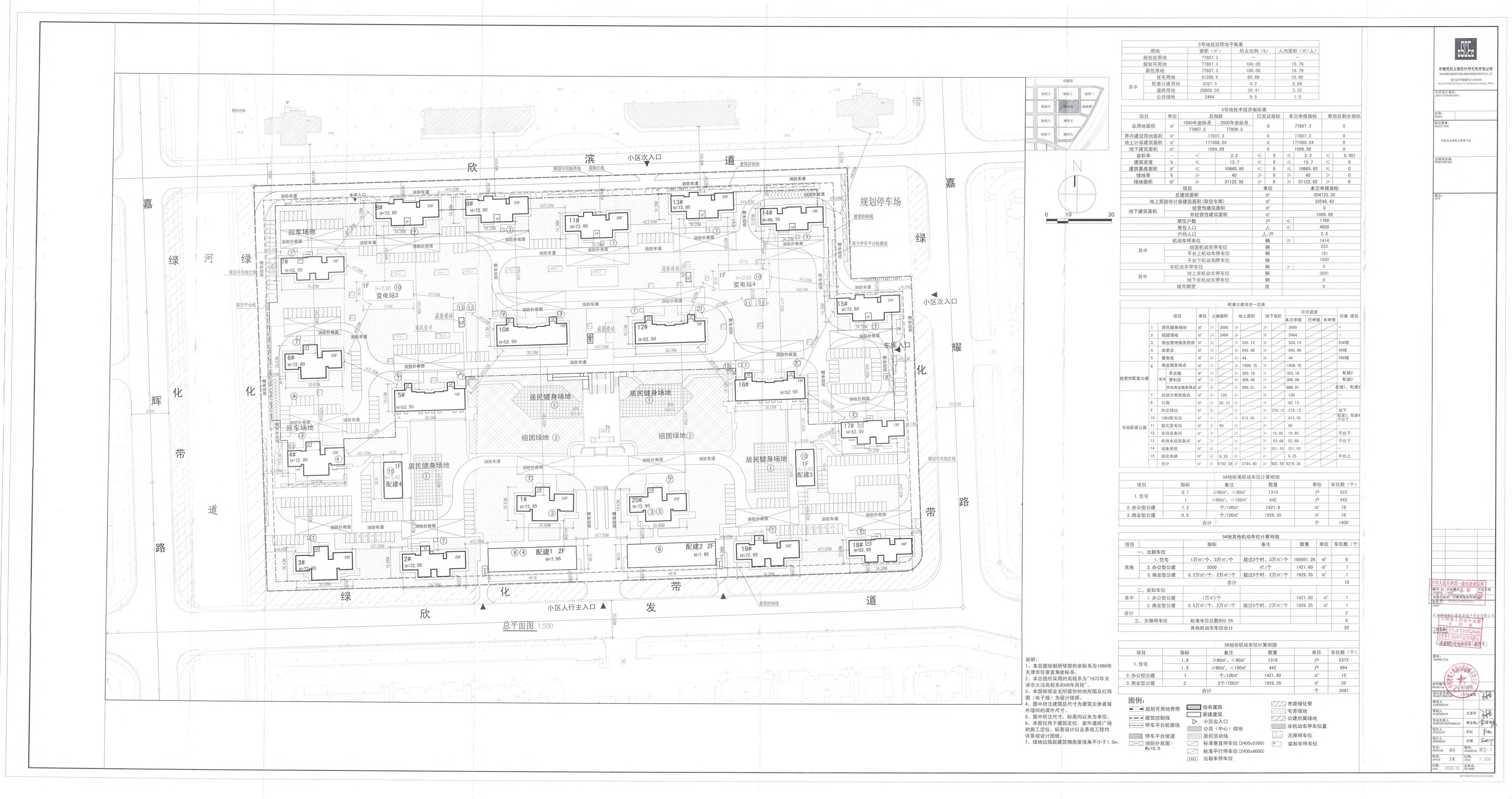
项目名称:欣嘉园5号地(欣丰苑)
项目位置:滨海新区核心区杨北公路以北、北塘水库以西。
建设单位:天津滨海新区建投房地产开发有限公司
设计单位:中国建筑上海设计研究院有限公司
项目简介(变更说明):
1、依据景观方案深化,配建4东侧、5#楼东侧、12#楼南侧各增加一处居民健身场地,居民健身场地面积由400㎡增加到2000㎡。
2、依据景观方案深化,局部调整机动车位的位置,减少小区中心区域机动车位,小区东西两侧增设机动车位。原工规图中,机动车位总数1419个;变更后地面机动车停车位233个,平台上动车停车位181个,平台下动车停车位1000个,机动车位总数1414个。地上非机动车停车位由3109个调整为3091个。
3、依据景观方案深化,16#楼西北侧增加观光电梯一部,建筑面积6.25㎡,因此调整引起指标变化:原工规图地上建筑面积为171081.79㎡,总建筑面积为204727.10㎡;变更后地上建筑面积为171088.04㎡,总建筑面积为204733.35㎡。
4、依据景观方案深化,小区中间增加大台阶,调整活动场地布局,架空平台中间绿化增加铺装与景观亭。
5、根据现场实际情况,在满足相关规范要求前提下,将组团绿地面积由7392㎡调整为2464㎡。
6、总图中的指标表依据最新报规格式进行填写,增设规划可用地面积1990、2000年坐标系面积对比表,规划可用地面积为77807.3㎡(1990年坐标系)、77806.3㎡(2000年坐标系)。
公示期间,周边单位及个人如对公示内容发表意见,请以电子邮件或电话方式反馈。
信函请寄:滨海新区于家堡融和路681号宝策大厦裙房行政许可服务中心
邮编:300450
联系人:张升鹏
联系电话:022-66897815 (接听时间为 8:30—12:00,13:00-17:00)
天津市规划和自然资源局滨海新区分局
2020年10月19日
附图:建筑设计方案总平面图
调整后图纸

调整前图纸






津公网安备12010102000518号