依据《中华人民共和国城乡规划法》和住房和城乡建设部《关于城乡规划公开公示的规定》的有关要求,现将汉沽茶淀街滨河幼儿园工程项目建筑设计方案总平面图进行公示。
公示时间为2020年10月13日至2020年10月21日,为期七个工作日。
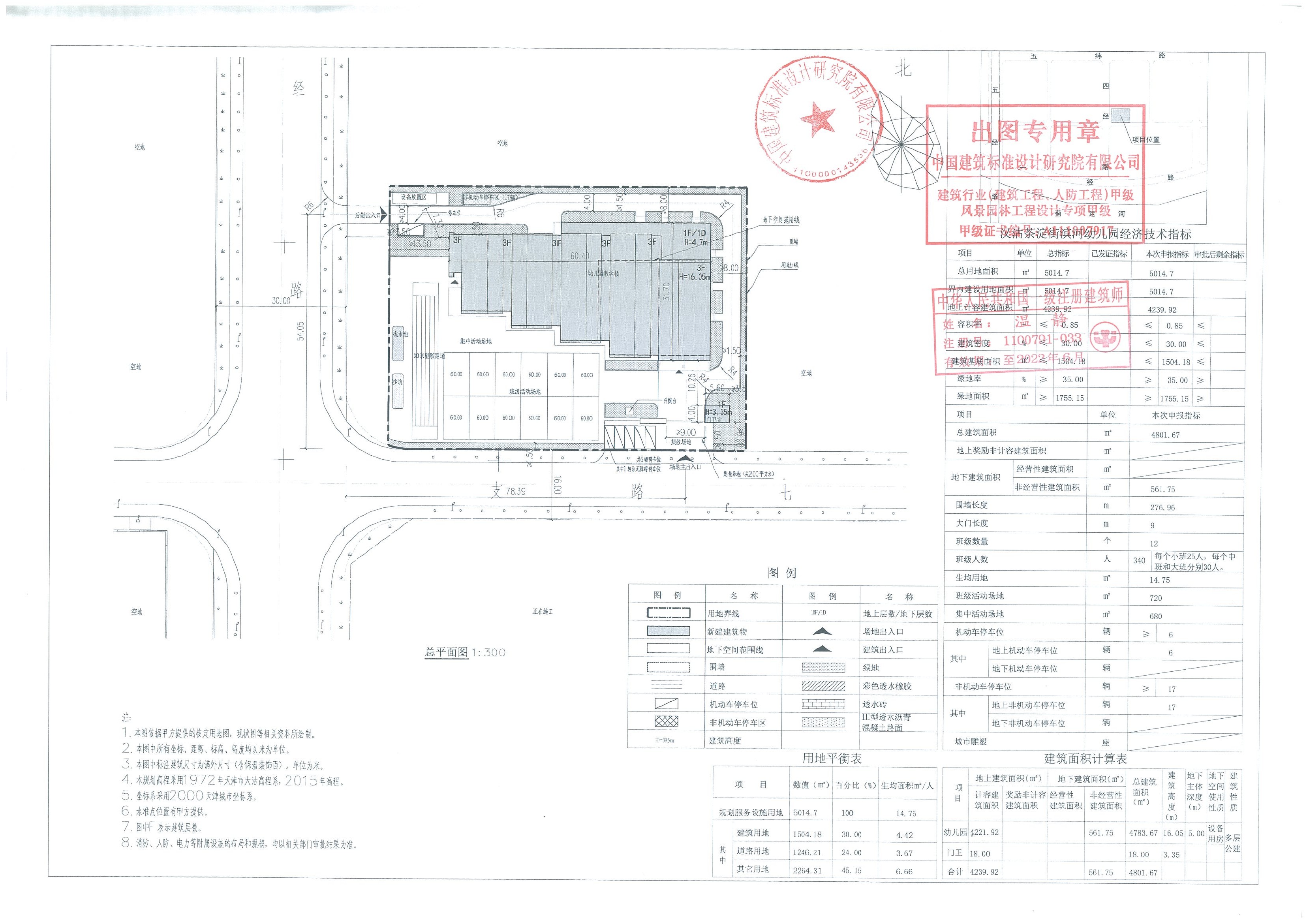
项目名称:汉沽茶淀街滨河幼儿园工程
项目位置:滨海新区汉沽河西地区四经路以东、支路七以北
建设单位:天津市滨海新区教育体育局
设计单位:中国建筑标准设计研究院有限公司
项目简介:该项目新建幼儿园综合楼及门卫,总用地面积5014.7平方米,总建筑面积4801.67平方米,其中幼儿园主楼总建筑面积4783.67平方米,其中地上建筑面积4221.92平方米,地下建筑面积561.75平方米;门卫总建筑面积18平方米,其中地上建筑面积18平方米,地下建筑面积0平方米;围墙276.96延米;大门9延米。
公示期间,周边单位及个人如对公示内容发表意见,请以电子邮件或电话方式反馈。
信函请寄:滨海新区于家堡融和路681号宝策大厦裙房行政许可服务中心
邮编:300450
联系人:张升鹏
联系电话:022-66897815 (接听时间为 8:30—12:00,13:00-17:00)
天津市规划和自然资源局滨海新区分局
2020年10月13日
附图:建筑设计方案总平面图






津公网安备12010102000518号