
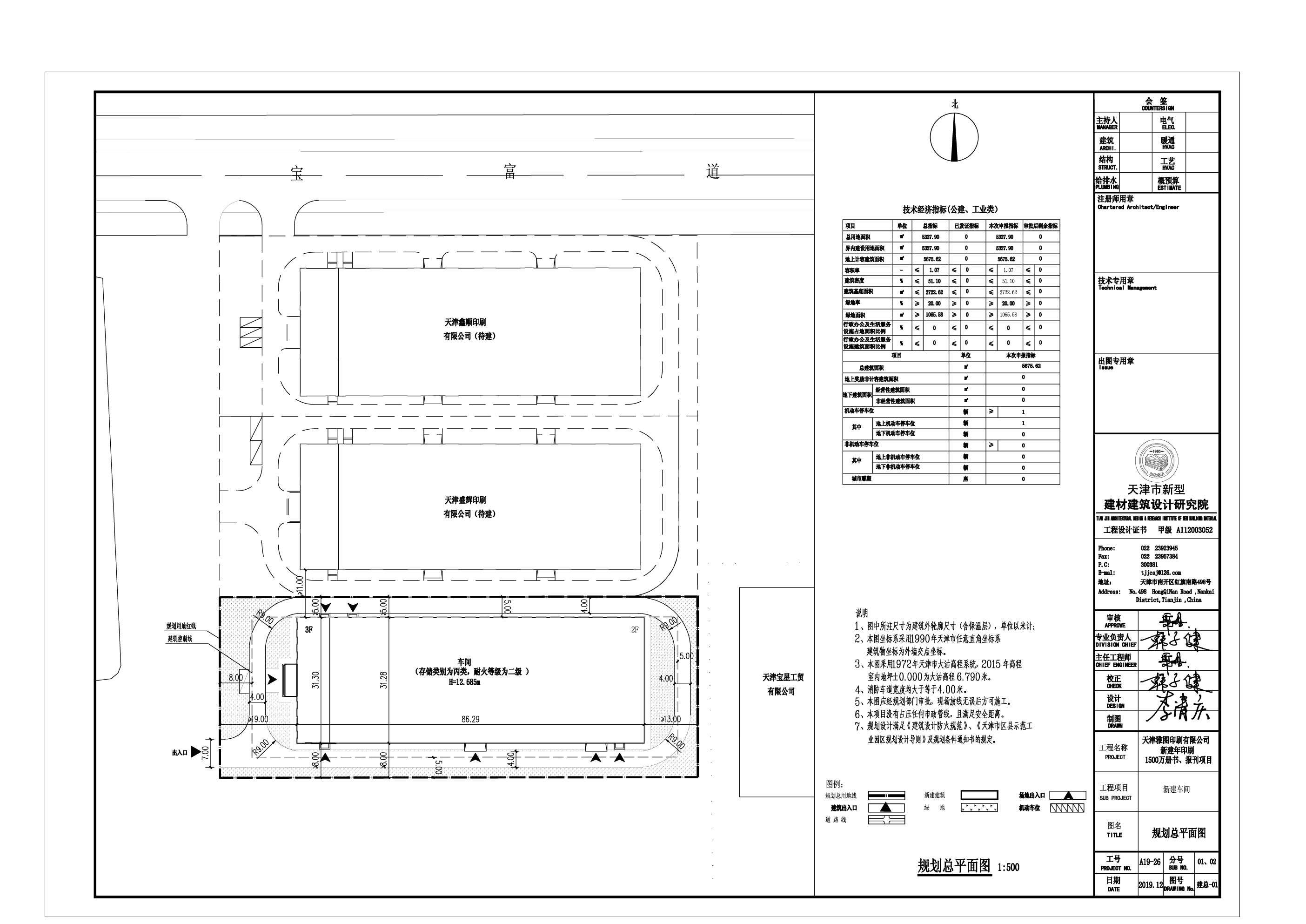
公示内容:依据《中华人民共和国城乡规划法》和住房城乡建设部《关于城乡规划公开公示的规定》等相关规定要求,现将天津雅图印刷有限公司车间建设工程设计方案总平面图公式,公示时间为7个工作日( 从2020年1月8日至2020年1月16日)。
建议意见反馈方式:可通过电子邮箱或信件反馈
电子邮箱:bdjg2020@163.com
邮寄地址:天津市宝坻区潮阳大道北侧(天津市规划与自然资源局宝坻分局)
邮政编码:301800
征求意见时间为7个工作日,逾期视为无意见。

公示内容:依据《中华人民共和国城乡规划法》和住房城乡建设部《关于城乡规划公开公示的规定》等相关规定要求,现将天津雅图印刷有限公司车间建设工程设计方案总平面图公式,公示时间为7个工作日( 从2020年1月8日至2020年1月16日)。
建议意见反馈方式:可通过电子邮箱或信件反馈
电子邮箱:bdjg2020@163.com
邮寄地址:天津市宝坻区潮阳大道北侧(天津市规划与自然资源局宝坻分局)
邮政编码:301800
征求意见时间为7个工作日,逾期视为无意见。
国务院相关部委
政府机关
局属单位网站
主办单位:天津市规划和自然资源局 地址:天津市和平区曲阜道84号 邮编:300042
网站标识码:1200000077 备案编号:津ICP备19001981号
津公网安备12010102000518号
版权所有:天津市规划和自然资源局