规划公示
依据《中华人民共和国城乡规划法》
的
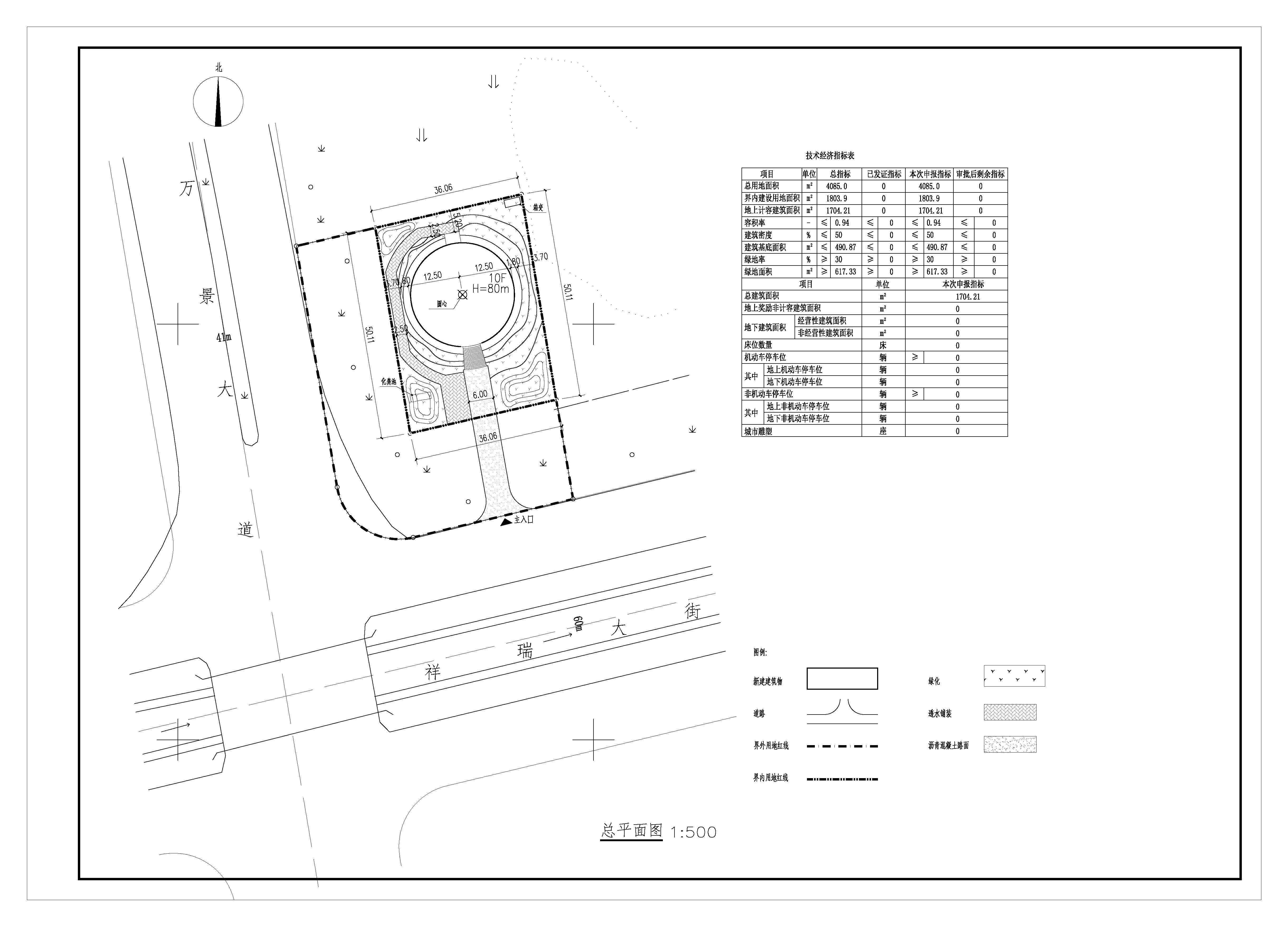
有关要求,现将天津市宝坻区气象局申报的建设工程设计方案总平面图批前公示,公示时间为2019年11月4日至11月12日,
7
个工作日,逾期视为无意见
.
建议意见反馈方式:
邮箱:
bdghjck@163.com

附件下载:
国务院相关部委
政府机关
局属单位网站
主办单位:天津市规划和自然资源局 地址:天津市和平区曲阜道84号 邮编:300042
网站标识码:1200000077 备案编号:津ICP备19001981号
津公网安备12010102000518号
版权所有:天津市规划和自然资源局