规划公布
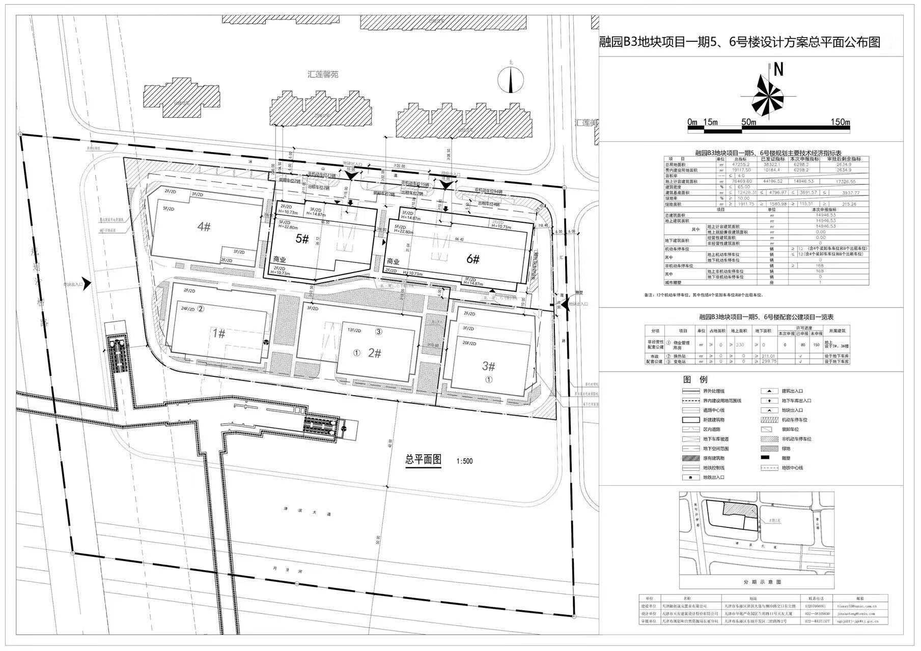
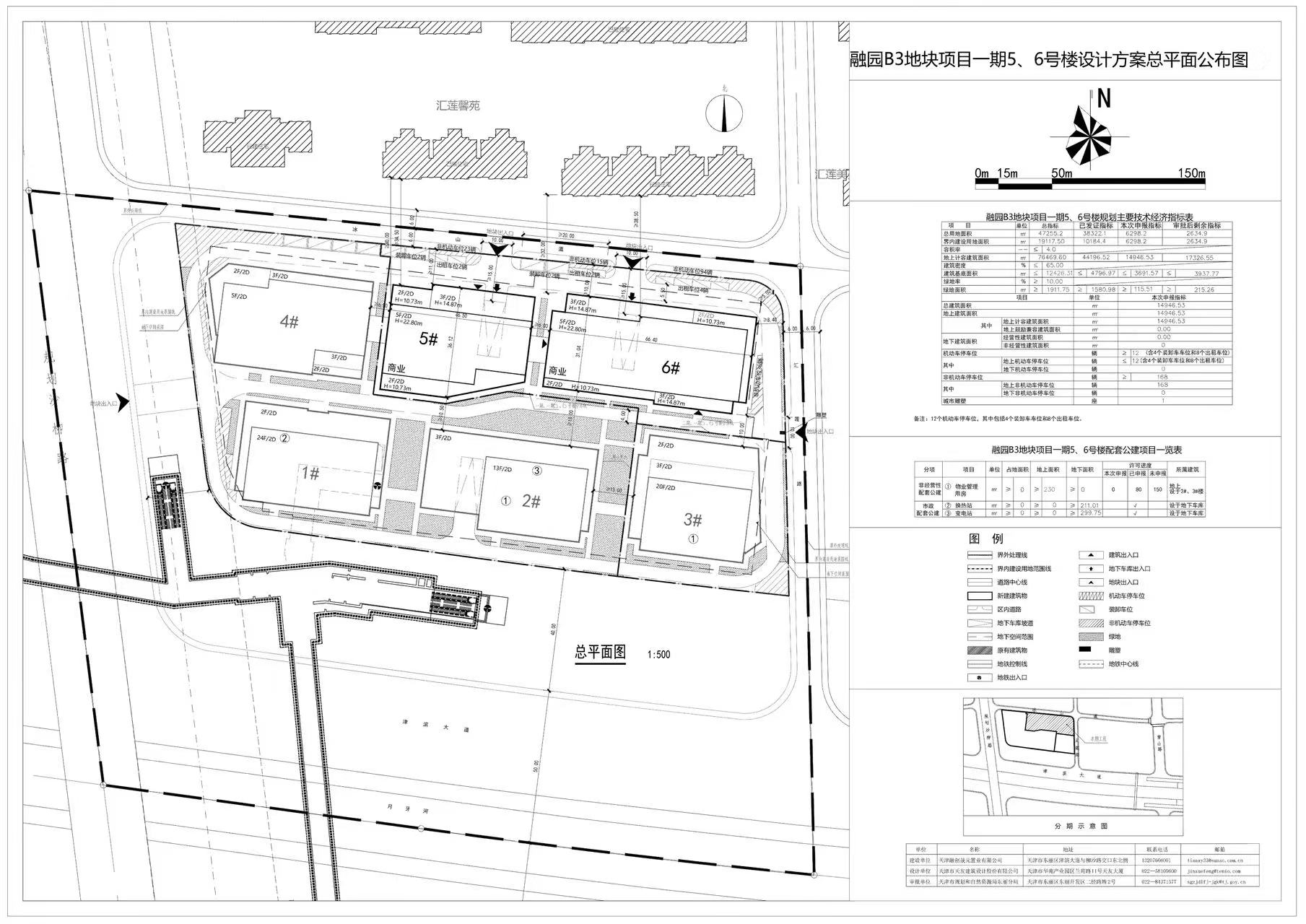
(东丽区)融园B3地块项目一期5、6号楼建筑工程设计方案总平面图公布
天津市规划和自然资源局东丽分局,依据《中华人民共和国城乡规划法》的有关要求,现将融园B3地块项目一期5、6号楼建筑工程设计方案总平面图进行公布,公布期限为信息发布之日起至建设项目规划验收合格为止。
通讯地址:天津市东丽开发区二经路增二号
联系电话:022-84371577
邮政编码:300300

天津市规划和自然资源局东丽分局
2026年1月7日
附件下载:





津公网安备12010102000518号