规划公布
(西青区)关于公布宇世达保障性住房一期项目建设工程设计方案总平面图的通知
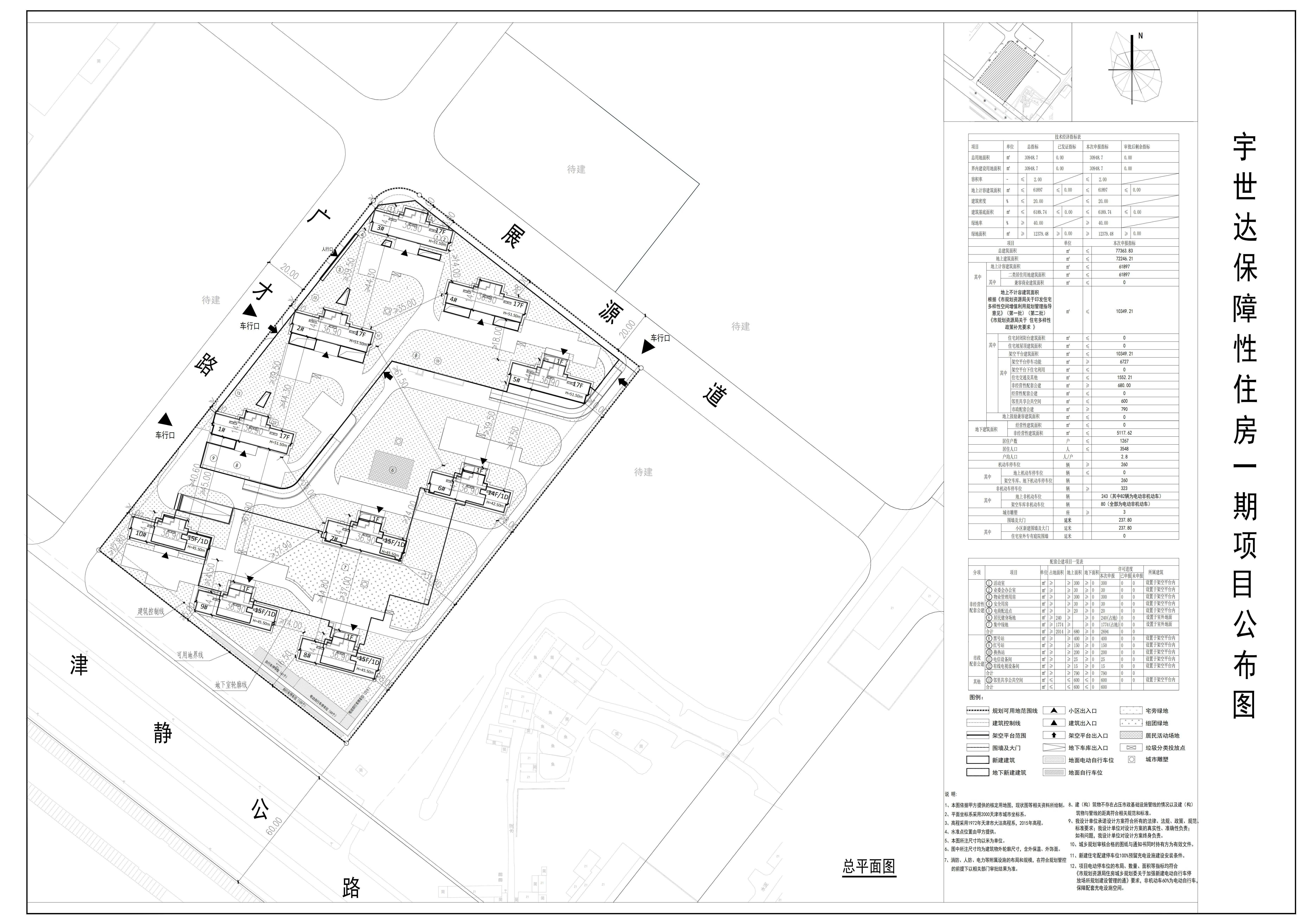
宇世达保障性住房一期项目建设工程设计方案总平面图已审批,审批时间为2025年12月4日,证书编号为2025西青建证0074。按照《中华人民共和国城乡规划法》、《天津市城乡规划条例》的要求,现将上述工程总平面图予以公布。
通讯地址:天津市西青区柳口路8号
联系电话:022-27395979
邮政编码:300380
天津市规划和自然资源局西青分局
2025年12月11日

附件下载:





津公网安备12010102000518号