规划公布
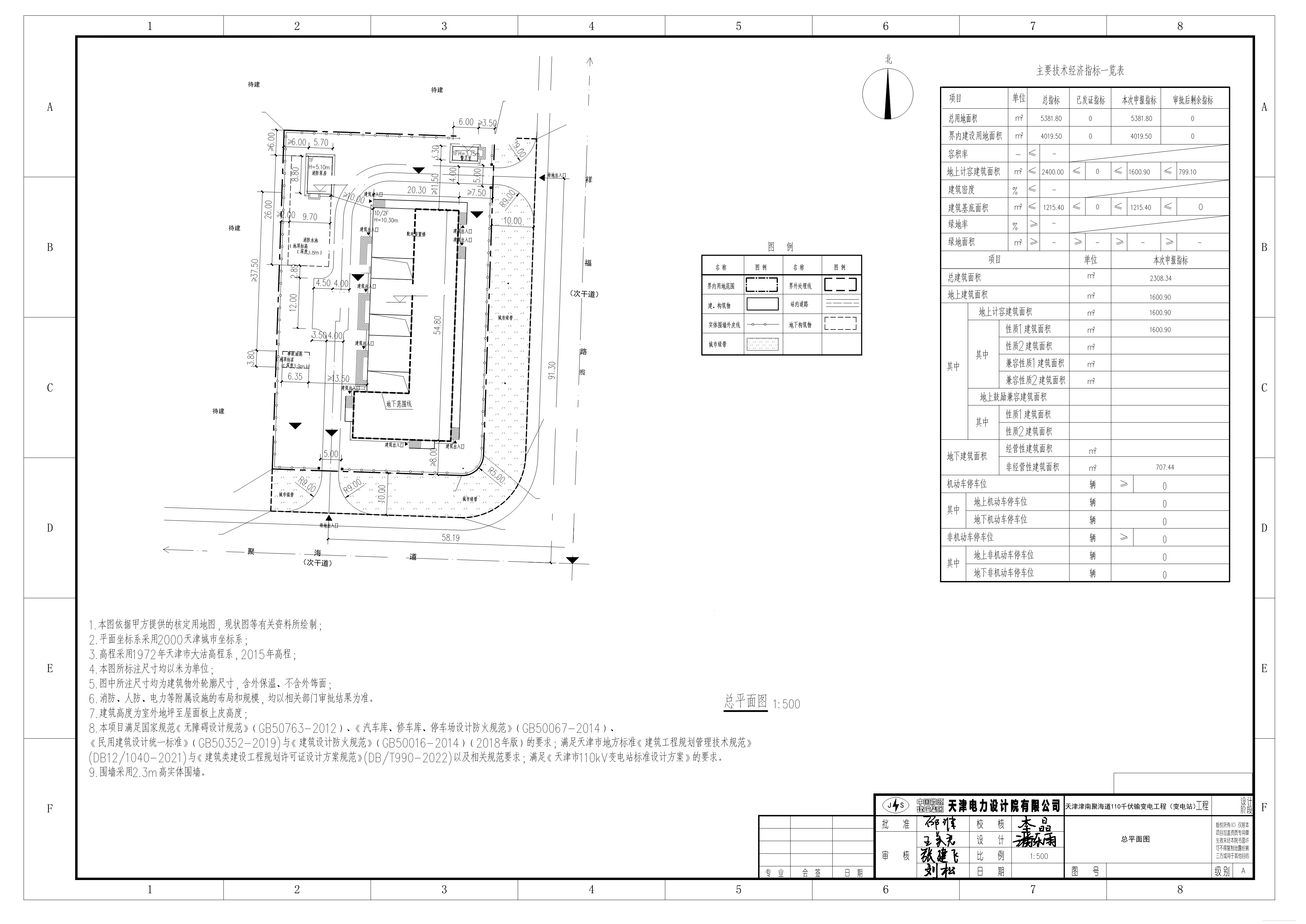
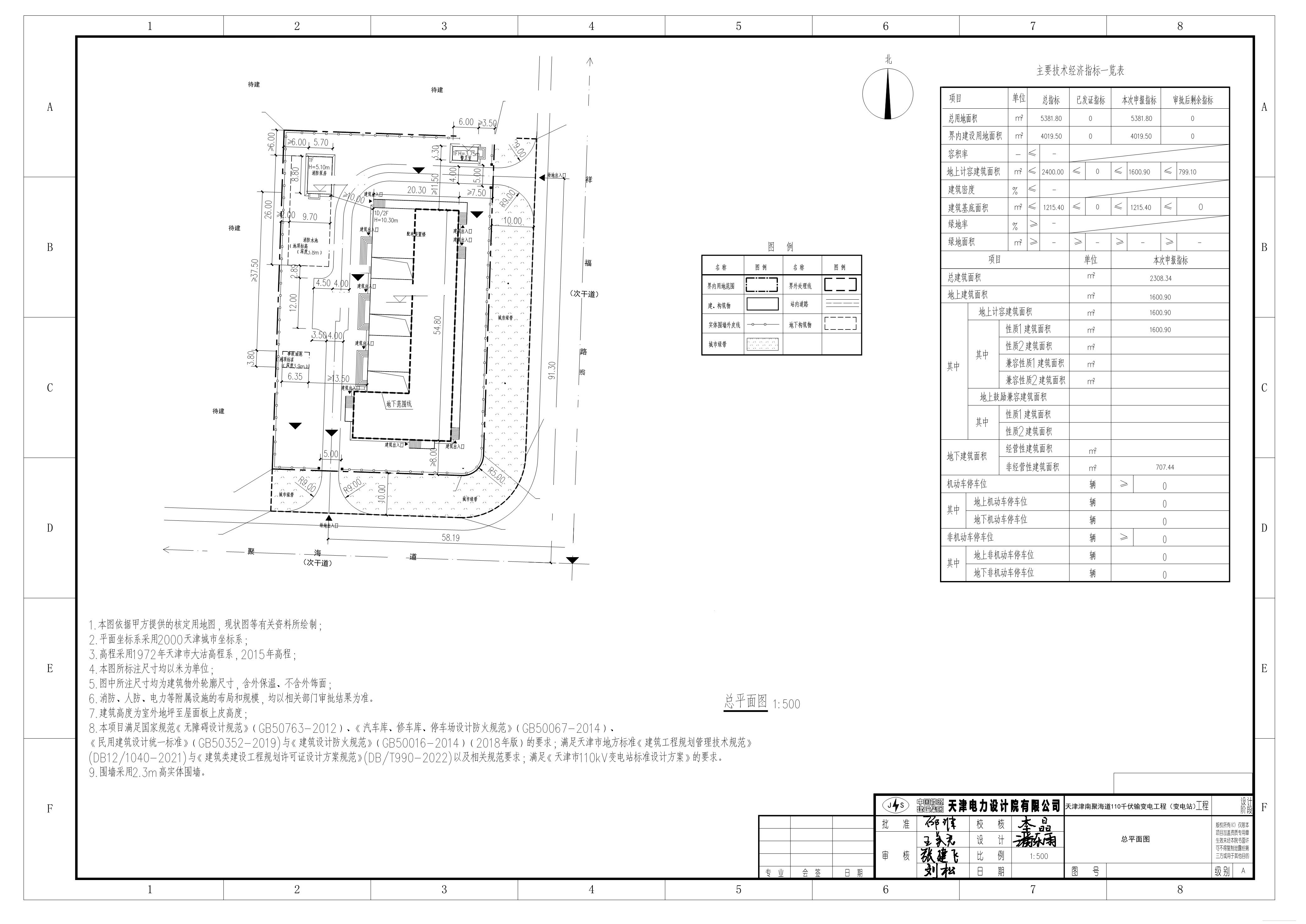
(津南区)国网天津市电力公司城南供电分公司天津津南聚海道110千伏输变电工程(变电站)建设工程设计方案总平面图的公布
依据《中华人民共和国城乡规划法》的有关要求,现将国网天津市电力公司城南供电分公司天津津南聚海道110千伏输变电工程(变电站)建设工程设计方案总平面图进行公布,公布期限为信息发布之日至建设项目规划验收合格为止。
通讯地址:天津市津南区南环路3号
联系电话:88510862
天津市规划和自然资源局津南分局
2025年3月13日






津公网安备12010102000518号