规划公布
(北辰区)关于北辰区青光示范小城镇二期农民安置用房韩家墅安置区1号地项目(2期)建筑工程设计方案总平面图的公布
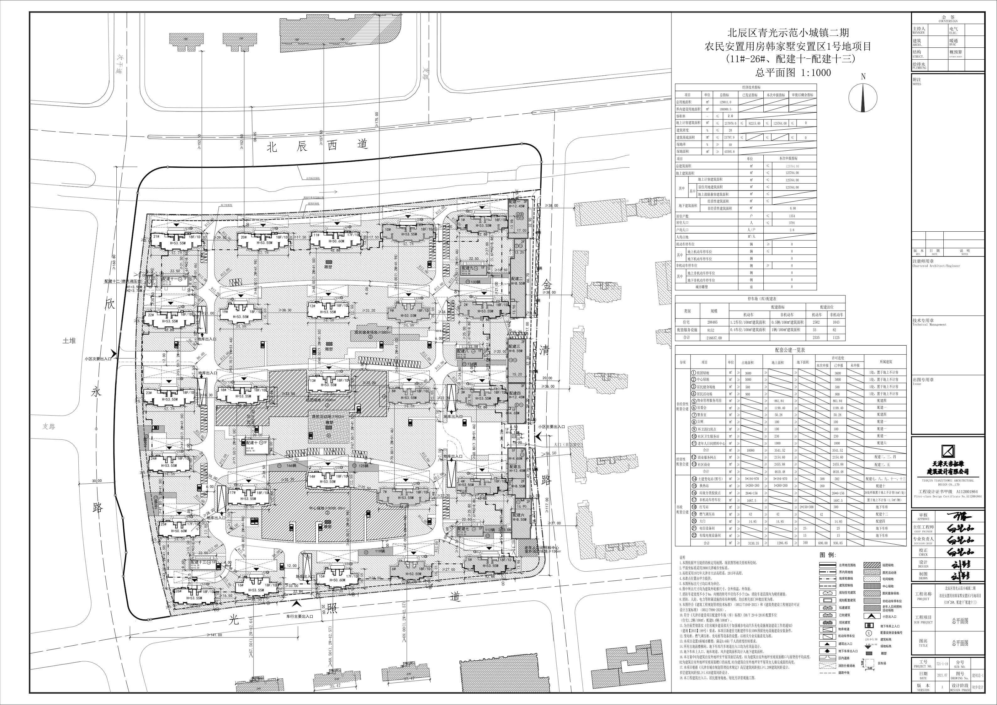
现将北辰区青光示范小城镇二期农民安置用房韩家墅安置区1号地项目(2期)建筑工程设计方案总平面图进行公布。
天津市规划和自然资源局北辰分局
2022年8月26日

现将北辰区青光示范小城镇二期农民安置用房韩家墅安置区1号地项目(2期)建筑工程设计方案总平面图进行公布。
天津市规划和自然资源局北辰分局
2022年8月26日

国务院相关部委
政府机关
局属单位网站
主办单位:天津市规划和自然资源局 地址:天津市和平区曲阜道84号 邮编:300042
网站标识码:1200000077 备案编号:津ICP备19001981号
津公网安备12010102000518号
版权所有:天津市规划和自然资源局