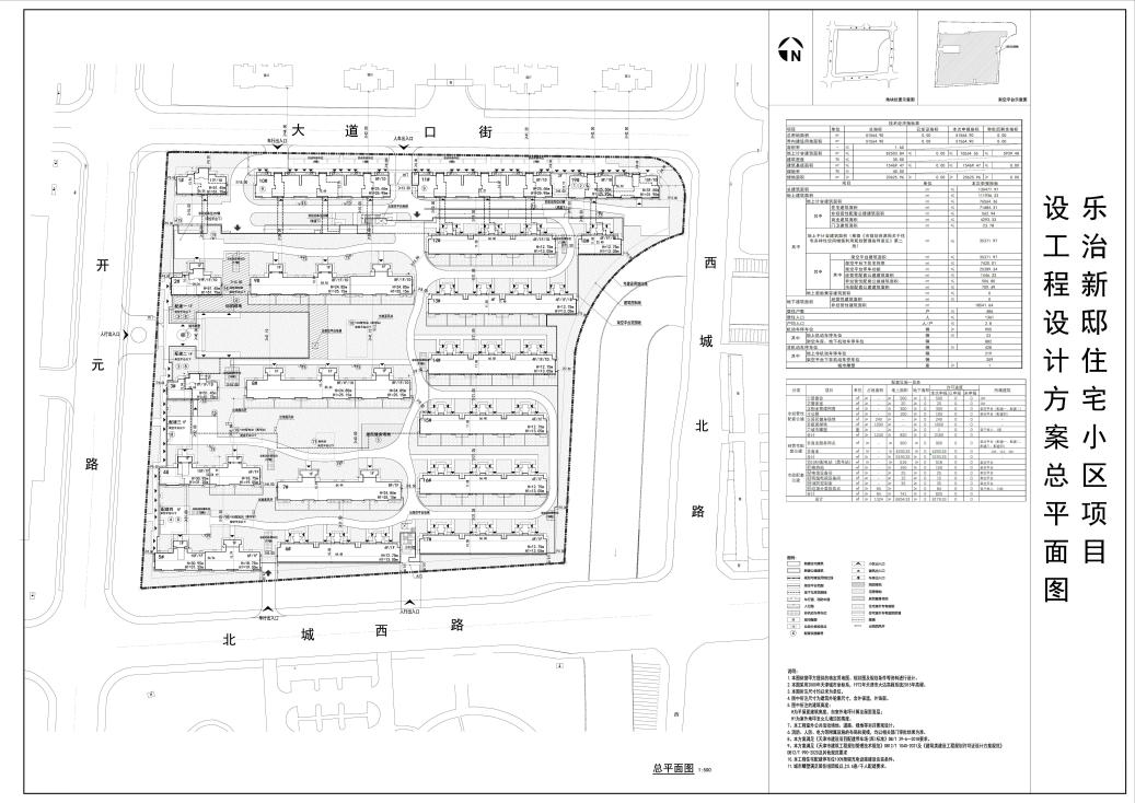
天津市规划和自然资源局宝坻分局于2024年8月19日核发了天津冠城锦辉房地产开发有限公司乐治新邸1#-19#楼、配建一-配建四、架空平台、地下车库、大门、围墙项目建设工程规划许可证。依据《中华人民共和国城乡规划法》及住房和城乡建设部《关于城乡规划公开公示的规定》的有关要求,现将该项目总平面图公布,公布期限为信息发布之日起至建设项目规划验收合格为止。
公示部门:天津市规划和自然资源局宝坻分局
建议意见反馈方式:可通过电子邮箱或信件反馈
邮寄地址:天津市宝坻区潮阳大道北侧(天津市规划和自然资源局宝坻分局)
邮编:301800
电子邮箱gzjbdfjjgk@tj.gov.cn






津公网安备12010102000518号