规划公布
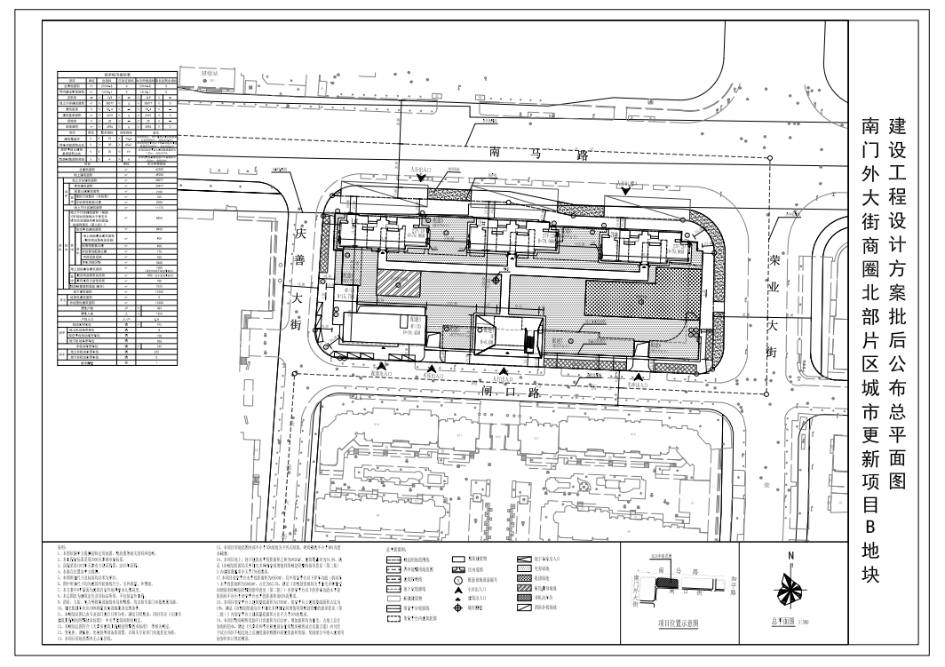
(和平区)南门外大街商圈北部片区城市更新项目B地块建设工程规划许可证设计方案总平面图公布
南门外大街商圈北部片区城市更新项目B地块建设工程规划许可证设计方案总平面图公布
依据《中华人民共和国城乡规划法》相关要求,现将南门外大街商圈北部片区城市更新项目B地块建设工程规划许可证设计方案总平面图进行公布,期限为发布之日至规划验收合格。
联系电话:022-23308213
联系地址:和平区岳阳道88号市规划资源局和平分局

附件下载:





津公网安备12010102000518号