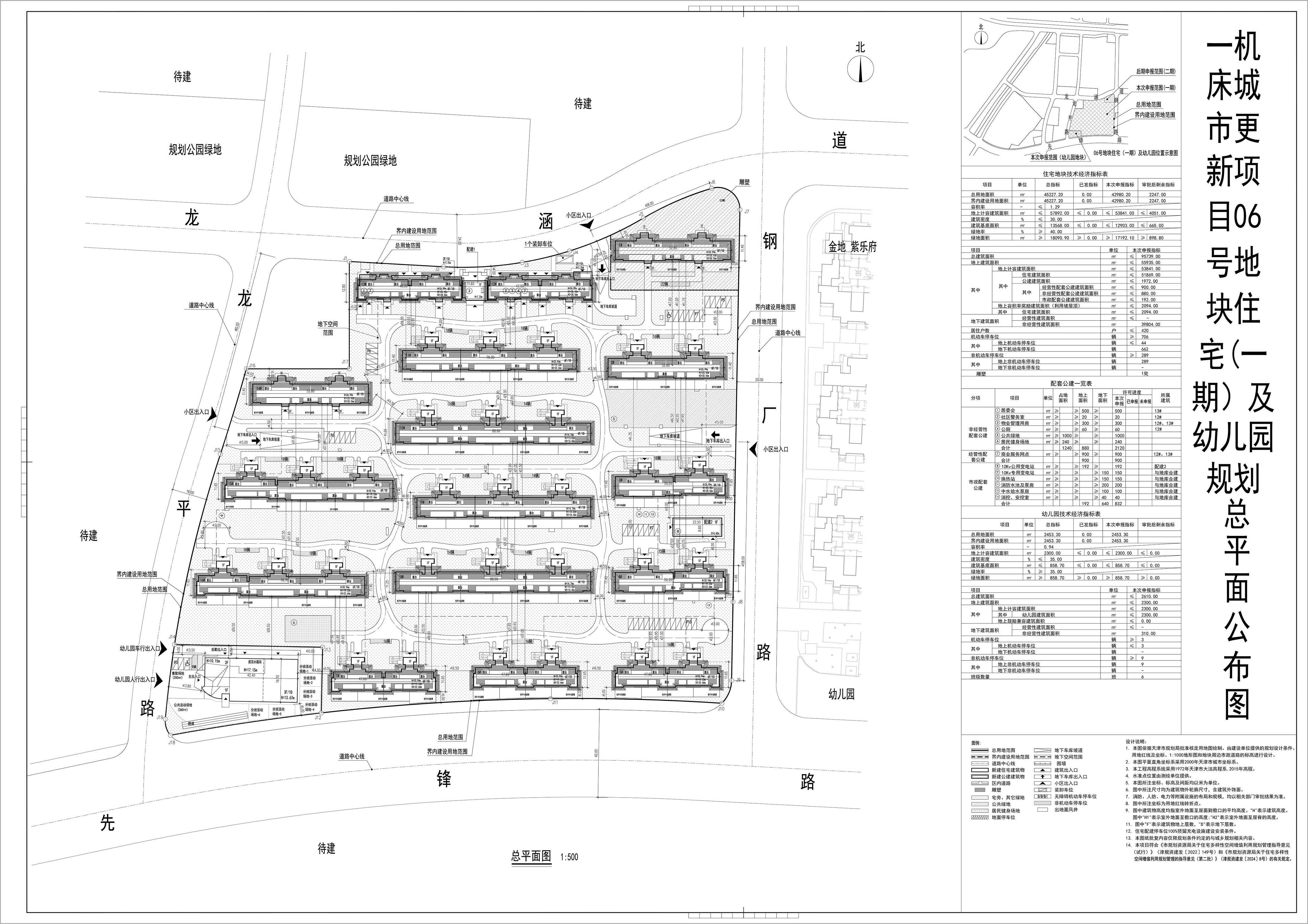
天津市规划和自然资源局河东分局于2024年4月3日核发了一机床城市更新项目06号地块住宅(一期)及幼儿园项目建设工程规划许可证,依据《中华人民共和国城乡规划法》及住房和城乡建设部《关于城乡规划公开公示的规定》的有关要求,现将该项目建设工程设计方案总平面图公布,公布时间至项目规划验收合格。
联系电话:24020235
天津市规划和自然资源局河东分局
2024年4月3日

天津市规划和自然资源局河东分局于2024年4月3日核发了一机床城市更新项目06号地块住宅(一期)及幼儿园项目建设工程规划许可证,依据《中华人民共和国城乡规划法》及住房和城乡建设部《关于城乡规划公开公示的规定》的有关要求,现将该项目建设工程设计方案总平面图公布,公布时间至项目规划验收合格。
联系电话:24020235
天津市规划和自然资源局河东分局
2024年4月3日

国务院相关部委
政府机关
局属单位网站
主办单位:天津市规划和自然资源局 地址:天津市和平区曲阜道84号 邮编:300042
网站标识码:1200000077 备案编号:津ICP备19001981号
津公网安备12010102000518号
版权所有:天津市规划和自然资源局