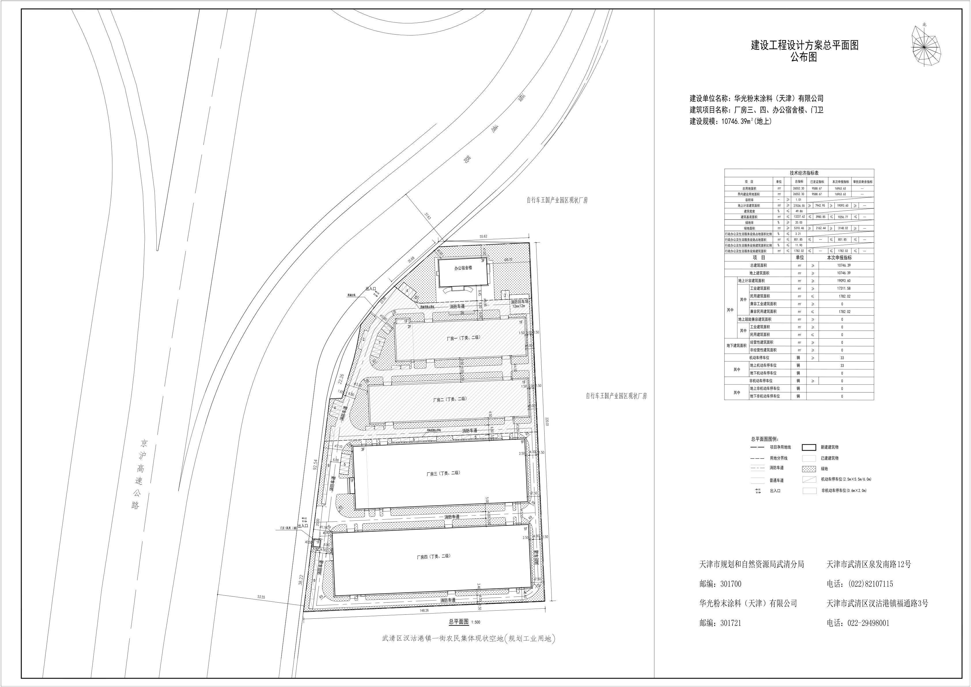
关于华光粉末涂料(天津)有限公司厂房三、四、办公宿舍楼、门卫项目
建设工程设计方案总平面图的公布
依据《中华人民共和国城乡规划法》《天津市城乡规划条例》等相关法律法规的有关要求,现将华光粉末涂料(天津)有限公司厂房三、四、办公宿舍楼、门卫项目建设工程设计方案总平面图进行公布,公布期限自《建设工程规划许可证》批后至建设项目规划核实合格为止。

天津市规划和自然资源局武清分局
2023年11月30日
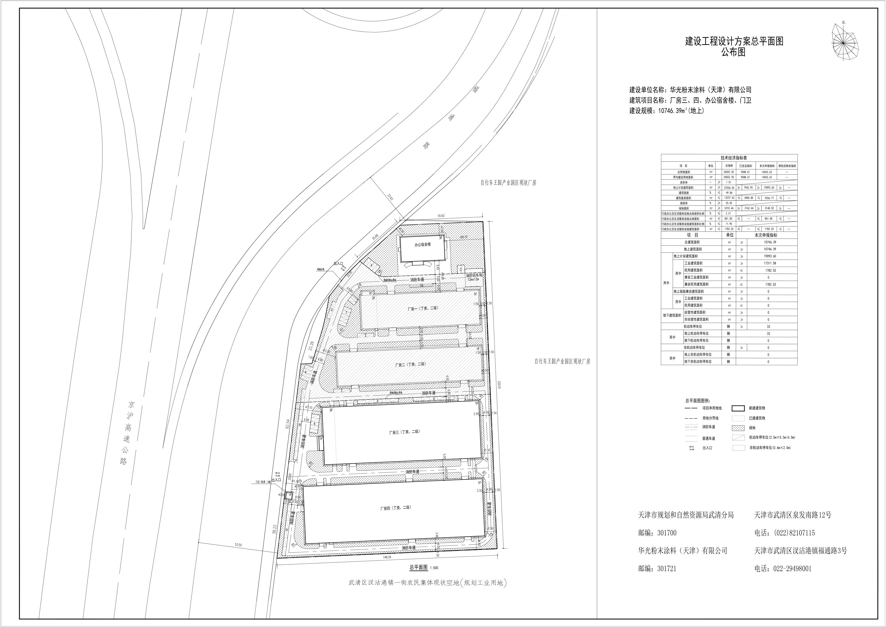
关于华光粉末涂料(天津)有限公司厂房三、四、办公宿舍楼、门卫项目
建设工程设计方案总平面图的公布
依据《中华人民共和国城乡规划法》《天津市城乡规划条例》等相关法律法规的有关要求,现将华光粉末涂料(天津)有限公司厂房三、四、办公宿舍楼、门卫项目建设工程设计方案总平面图进行公布,公布期限自《建设工程规划许可证》批后至建设项目规划核实合格为止。

天津市规划和自然资源局武清分局
2023年11月30日
国务院相关部委
政府机关
局属单位网站
主办单位:天津市规划和自然资源局 地址:天津市和平区曲阜道84号 邮编:300042
网站标识码:1200000077 备案编号:津ICP备19001981号
津公网安备12010102000518号
版权所有:天津市规划和自然资源局